













Book your tour. Save an average of $18,473. We'll handle the rest.
We collect exclusive builder offers, book your tours, and support you from start to housewarming.
- Confirmed tours
- Get matched & compare top deals
- Expert help, no pressure
- No added fees
Estimated value based on Jome data, T&C apply







Why tour with Jome?
- No pressure toursTour at your own pace with no sales pressure
- Expert guidanceGet insights from our home buying experts
- Exclusive accessSee homes and deals not available elsewhere
Jome is featured in
- Single-Family
- $405.56/sqft
- $1,008/annual HOA
- 0.21-acre lot
Home description
Contact builder today about Special Financing for this home - terms and conditions apply
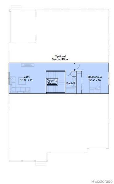
Welcome home to the Davis, where comfort and style meet in the heart of Erie. Imagine hosting friends in your open-concept kitchen or relaxing by the fireplace in the grand great room. The main floor makes life easy with a private office and a peaceful primary suite, while the upstairs loft serves as the perfect guest retreat or secondary living space. Step out onto the covered deck to take in the quiet open space. With energy-efficient solar and access to incredible parks and trails, this move-in-ready home is the perfect place to start your next chapter. Located in Erie, this home blends small-town charm with beautiful mountain views and outstanding amenities, including a 63,000-square-foot community center, a 20,000-square-foot library, scenic trails, parks, and convenient shopping and dining. A perfect balance of comfort, sophistication, and location awaits.
Coldwell Banker Realty 56, MLS REC1571614
May also be listed on the Lennar website
Information last verified by Jome: Today at 10:05 AM (February 27, 2026)
Home highlights
Restored prairie ecosystem near Denver with mountain views, bison herds, and miles of peaceful nature trails.
Book your tour. Save an average of $18,473. We'll handle the rest.
We collect exclusive builder offers, book your tours, and support you from start to housewarming.
- Confirmed tours
- Get matched & compare top deals
- Expert help, no pressure
- No added fees
Estimated value based on Jome data, T&C apply
Home details
- Property status:
- Pending/Under contract
- Collection:
- Sunset Village: The Grand
- Lot size (acres):
- 0.21
- Size:
- 2,175 sqft
- Stories:
- 2
- Beds:
- 3
- Baths:
- 2
- Garage spaces:
- 3
Construction details
- Builder Name:
- Lennar
- Completion Date:
- May, 2025
- Year Built:
- 2024
- Roof:
- Roof Gutter, Composition Roofing
Home features & finishes
- Appliances:
- Sprinkler System
- Construction Materials:
- CementFrameStone
- Cooling:
- Central Air
- Flooring:
- Vinyl FlooringCarpet FlooringTile Flooring
- Foundation Details:
- Slab
- Garage/Parking:
- GarageAttached Garage
- Interior Features:
- Ceiling-HighWalk-In ClosetFoyerPantryBreakfast BarStaircases
- Kitchen:
- DishwasherMicrowave OvenOvenRefrigeratorDisposalQuartz countertopKitchen IslandCooktopDouble Oven
- Laundry facilities:
- Laundry Facilities In UnitDryerWasherUtility/Laundry Room
- Pets:
- Cat(s) Only AllowedDog(s) Only Allowed
- Property amenities:
- BasementDeckBathtub in primaryPatioFireplaceSmart Home SystemPorch
- Rooms:
- Flex RoomPrimary Bedroom On MainKitchenNookOffice/StudyFamily RoomLiving RoomBreakfast AreaOpen Concept FloorplanPrimary Bedroom Downstairs
- Security system:
- Smoke DetectorCarbon Monoxide Detector
Room details
Dining Room
Bedroom 1
Great Room

Get a consultation with our New Homes Expert
- See how your home builds wealth
- Plan your home-buying roadmap
- Discover hidden gems
Utility information
- Heating:
- Forced Air Heating
- Utilities:
- Electricity Available, Natural Gas Available

Community details
Sunset Village
by Lennar, Erie, CO
- 4 plans
- 2,175 - 4,018 sqft
View Sunset Village details
Floor plans in Sunset Village
About the builder - Lennar

- 1,759communities on Jome
- 6,530homes on Jome
Neighborhood
Home address
Schools in St. Vrain Valley School District RE 1J
GreatSchools’ Summary Rating calculation is based on 4 of the school’s themed ratings, including test scores, student/academic progress, college readiness, and equity. This information should only be used as a reference. Jome is not affiliated with GreatSchools and does not endorse or guarantee this information. Please reach out to schools directly to verify all information and enrollment eligibility. Data provided by GreatSchools.org © 2025
Places of interest
Getting around
Air quality
Noise level
A Soundscore™ rating is a number between 50 (very loud) and 100 (very quiet) that tells you how loud a location is due to environmental noise.

Considering this home?
Our expert will guide your tour, in-person or virtual
Need more information?
Text or call (888) 488-9243
Financials
Estimated monthly payment
Let us help you find your dream home
How many bedrooms are you looking for?
Similar homes nearby
Recently added communities in this area
Nearby communities in Erie
New homes in nearby cities
More New Homes in Erie, CO
Coldwell Banker Realty 56, MLS REC1571614
The content relating to real estate for sale in this Web site comes in part from the Internet Data eXchange (“IDX”) program of METROLIST, INC., DBA RECOLORADO® Real estate listings held by brokers other than NewHomesMate LLC, DBA Jome are marked with the IDX Logo. This information is being provided for the consumers’ personal, non-commercial use and may not be used for any other purpose. All information subject to change and should be independently verified. This publication is designed to provide information with regard to the subject matter covered. It is displayed with the understanding that the publisher and authors are not engaged in rendering real estate, legal, accounting, tax, or other professional services and that the publisher and authors are not offering such advice in this publication. If real estate, legal, or other expert assistance is required, the services of a competent, professional person should be sought. The information contained in this publication is subject to change without notice. METROLIST, INC., DBA RECOLORADO MAKES NO WARRANTY OF ANY KIND WITH REGARD TO THIS MATERIAL, INCLUDING, BUT NOT LIMITED TO, THE IMPLIED WARRANTIES OF MERCHANTABILITY AND FITNESS FOR A PARTICULAR PURPOSE. METROLIST, INC., DBA RECOLORADO SHALL NOT BE LIABLE FOR ERRORS CONTAINED HEREIN OR FOR ANY DAMAGES IN CONNECTION WITH THE FURNISHING, PERFORMANCE, OR USE OF THIS MATERIAL. PUBLISHER'S NOTICE: All real estate advertised herein is subject to the Federal Fair Housing Act and the Colorado Fair Housing Act, which Acts make it illegal to make or publish any advertisement that indicates any preference, limitation, or discrimination based on race, color, religion, sex, handicap, familial status, or national origin. METROLIST, INC., DBA RECOLORADO will not knowingly accept any advertising for real estate that is in violation of the law. All persons are hereby informed that all dwellings advertised are available on an equal opportunity basis. © 2025 METROLIST, INC., DBA RECOLORADO® - All Rights Reserved. 6455 S. Yosemite St., Suite 500, Greenwood Village, CO 80111 USA. ALL RIGHTS RESERVED WORLDWIDE. No part of this publication may be reproduced, adapted, translated, stored in a retrieval system or transmitted in any form or by any means, electronic, mechanical, photocopying, recording, or otherwise, without the prior written permission of the publisher. The information contained herein including but not limited to all text, photographs, digital images, virtual tours, may be seeded and monitored for protection and tracking.
Read moreLast checked Feb 27, 4:00 pm
- Jome
- New homes search
- Colorado
- Denver Metropolitan Area
- Weld County
- Erie
- Sunset Village
- Sunset Village: The Grand
- 1199 Morning Side Dr, Erie, CO 80516
































