




- 4 bd
- 1.5 ba
- 2,184 sqft
3231 E 152Nd Cir, Thornton, CO 80602
- Single-Family
- $272.39/sqft
- $1,200/annual HOA
- 0.14-acre lot
New Homes for Sale Near 3231 E 152Nd Cir, Thornton, CO 80602
About this Home
Special financing available, contact builder representative for more details. Terms and conditions apply – ask for detailsDiscover modern comfort at East Creek Farm, where thoughtful design meets effortless living. This inviting two-story home features a chef-inspired kitchen with a spacious eat-in island, flowing seamlessly into the dining nook and sunlit great room—perfect for entertaining or cozy nights in. A main-floor office offers the flexibility to work, create, or unwind. Upstairs, retreat to the serene primary suite with a spa-like bath, plus three additional bedrooms and a convenient upstairs laundry room. Fully electric and energy-efficient, this home delivers sustainable living with today’s modern style. Enjoy a connected lifestyle close to Denver Premium Outlets, Orchard Town Center, and endless outdoor fun at Thornton Trail Winds Park and Open Space. Available June 2026.
May also be listed on the Lennar website
Information last verified by Jome: Thursday at 10:01 AM (April 9, 2026)
Home details
- Property status:
- Sold
- Collection:
- Eastcreek Farm: The Camden
- Lot size (acres):
- 0.14
- Size:
- 2,184 sqft
- Stories:
- 2
- Beds:
- 4
- Baths:
- 1
- Half baths:
- 1
- Garage spaces:
- 2
Construction details
- Builder Name:
- Lennar
- Year Built:
- 2024
- Roof:
- Roof Gutter, Composition Roofing
Home features & finishes
- Construction Materials:
- FrameStone
- Cooling:
- Central Air
- Flooring:
- Vinyl FlooringCarpet Flooring
- Garage/Parking:
- GarageAttached Garage
- Interior Features:
- Ceiling-HighWalk-In ClosetFoyerPantryBreakfast Bar
- Kitchen:
- DishwasherMicrowave OvenOvenRefrigeratorDisposalQuartz countertopKitchen Island
- Laundry facilities:
- Laundry Facilities In UnitUtility/Laundry Room
- Property amenities:
- BasementPorch
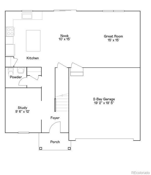
- Rooms:
- KitchenPowder RoomOffice/StudyFamily RoomBreakfast AreaOpen Concept FloorplanPrimary Bedroom Upstairs
- Security system:
- Smoke DetectorCarbon Monoxide Detector
Room details
Dining Room
Bedroom 1
Great Room
Utility information
- Sewer:
- Public Sewer
- Utilities:
- Electricity Available
- Water source:
- Public

Community details
Eastcreek Farm
by Lennar, Thornton, CO
- 9 homes
- 13 plans
- 1,099 - 2,590 sqft
View Eastcreek Farm details
More homes in Eastcreek Farm
- Home at address 15250 Clayton St, Thornton, CO 80602
Savings$524,400
Move-in ready- 4 bd
- 3 ba
- 1,867 sqft
15250 Clayton St, Thornton, CO 80602
- Home at address 15254 Clayton St, Thornton, CO 80602
Savings$524,900
Move-in ready- 4 bd
- 3 ba
- 1,862 sqft
15254 Clayton St, Thornton, CO 80602
- Home at address 15228 Adams Ct, Thornton, CO 80602
Savings$599,900
Under construction- 4 bd
- 2.5 ba
- 2,184 sqft
15228 Adams Ct, Thornton, CO 80602
- Home at address 3052 E 152Nd Cir, Thornton, CO 80602
Savings$604,900
Move-in ready- 4 bd
- 2.5 ba
- 2,184 sqft
3052 E 152Nd Cir, Thornton, CO 80602
- Home at address 3305 E 152Nd Cir, Thornton, CO 80602
Savings$639,900
Under construction- 4 bd
- 3 ba
- 2,590 sqft
3305 E 152Nd Cir, Thornton, CO 80602
- Home at address 3322 E 152Nd Cir, Thornton, CO 80602
Savings$639,900
Under construction- 4 bd
- 3 ba
- 2,590 sqft
3322 E 152Nd Cir, Thornton, CO 80602
Floor plans in Eastcreek Farm
About the builder - Lennar

- 1,915communities on Jome
- 7,060homes on Jome
Neighborhood
Home address
Schools in Adams 12 Five Star Schools
- Grades PK-PKPublicbright horizons preschool2.5 mi5321 e 136th avena
GreatSchools’ Summary Rating calculation is based on 4 of the school’s themed ratings, including test scores, student/academic progress, college readiness, and equity. This information should only be used as a reference. Jome is not affiliated with GreatSchools and does not endorse or guarantee this information. Please reach out to schools directly to verify all information and enrollment eligibility. Data provided by GreatSchools.org © 2025
Places of interest
Getting around
Air quality
Noise level
A Soundscore™ rating is a number between 50 (very loud) and 100 (very quiet) that tells you how loud a location is due to environmental noise.
Financials
Nearby communities in Thornton
Homes in Thornton by Lennar
Recently added communities in this area
Other Builders in Thornton, CO
Nearby sold homes
New homes in nearby cities
More New Homes in Thornton, CO
- Jome
- New homes search
- Colorado
- Denver Metropolitan Area
- Adams County
- Thornton
- Eastcreek Farm
- Eastcreek Farm: The Camden
- 3231 E 152Nd Cir, Thornton, CO 80602































































