



Book your tour. Save an average of $18,473. We'll handle the rest.
We collect exclusive builder offers, book your tours, and support you from start to housewarming.
- Confirmed tours
- Get matched & compare top deals
- Expert help, no pressure
- No added fees
Estimated value based on Jome data, T&C apply


- 5 bd
- 3.5 ba
- 3,246 sqft
5319 Front Porch Ln, Firestone, CO 80504
Why tour with Jome?
- No pressure toursTour at your own pace with no sales pressure
- Expert guidanceGet insights from our home buying experts
- Exclusive accessSee homes and deals not available elsewhere
Jome is featured in
- Single-Family
- Ready by April 2026
- $203.31/sqft
- 96 days on Jome
Home description
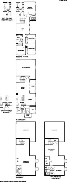
Explore this paired Nina 1 home. Included features: a welcoming covered entry; a convenient powder room; a gourmet kitchen showcasing a center island and a generous walk-in pantry; an adjacent dining area; a sizable great room with access to a serene covered patio; an immense loft; three secondary bedrooms; a shared full bath; a central laundry; a lavish primary suite offering a deluxe bath and an expansive walk-in closet; and a finished basement boasting a substantial recreation room, an additional bedroom, and a full bath. Learn more today!
May also be listed on the Richmond American Homes website
Information last verified by Jome: Today at 5:00 PM (April 3, 2026)
Book your tour. Save an average of $18,473. We'll handle the rest.
We collect exclusive builder offers, book your tours, and support you from start to housewarming.
- Confirmed tours
- Get matched & compare top deals
- Expert help, no pressure
- No added fees
Estimated value based on Jome data, T&C apply
Home details
- Property status:
- Under construction
- Size:
- 3,246 sqft
- Beds:
- 5
- Baths:
- 3
- Half baths:
- 1
- Garage spaces:
- 2
Construction details
- Builder Name:
- Richmond American Homes
- Completion Date:
- April, 2026
Home features & finishes
- Garage/Parking:
- Garage
- Rooms:
- Primary Bedroom Downstairs

Get a consultation with our New Homes Expert
- See how your home builds wealth
- Plan your home-buying roadmap
- Discover hidden gems

Community details
The Duos at Barefoot Village
by Richmond American Homes, Firestone, CO
- 4 homes
- 6 plans
- 2,074 - 3,246 sqft
View The Duos at Barefoot Village details
More homes in The Duos at Barefoot Village
- Home at address 5313 Front Porch Ln, Firestone, CO 80504

Nina 2 Duo
$644,950
- 5 bd
- 3.5 ba
- 3,240 sqft
5313 Front Porch Ln, Firestone, CO 80504
- Home at address 5327 Front Porch Ln, Firestone, CO 80504

Nina 3 Duo
$659,950
- 5 bd
- 3.5 ba
- 3,240 sqft
5327 Front Porch Ln, Firestone, CO 80504
Floor plans in The Duos at Barefoot Village
About the builder - Richmond American Homes
Neighborhood
Home address
Schools in St. Vrain Valley School District RE 1J
GreatSchools’ Summary Rating calculation is based on 4 of the school’s themed ratings, including test scores, student/academic progress, college readiness, and equity. This information should only be used as a reference. Jome is not affiliated with GreatSchools and does not endorse or guarantee this information. Please reach out to schools directly to verify all information and enrollment eligibility. Data provided by GreatSchools.org © 2025
Places of interest
Getting around
Air quality
Noise level
A Soundscore™ rating is a number between 50 (very loud) and 100 (very quiet) that tells you how loud a location is due to environmental noise.

Considering this home?
Our expert will guide your tour, in-person or virtual
Need more information?
Text or call (888) 545-5198
Financials
Estimated monthly payment
Let us help you find your dream home
How many bedrooms are you looking for?
Similar homes nearby
Recently added communities in this area
Nearby communities in Firestone
New homes in nearby cities
More New Homes in Firestone, CO
- Jome
- New homes search
- Colorado
- Denver Metropolitan Area
- Weld County
- Firestone
- The Duos at Barefoot Village
- 5319 Front Porch Ln, Firestone, CO 80504


































