














Book your tour. Save an average of $18,473. We'll handle the rest.
- Confirmed tours
- Get matched & compare top deals
- Expert help, no pressure
- No added fees
Estimated value based on Jome data, T&C apply




















- 4 bd
- 4 ba
- 3,236 sqft
5891 Aspenglow St, Longmont, CO 80504
Why tour with Jome?
- No pressure toursTour at your own pace with no sales pressure
- Expert guidanceGet insights from our home buying experts
- Exclusive accessSee homes and deals not available elsewhere
Jome is featured in
- Single-Family
- Quick move-in
- $239.49/sqft
- South facing
Home description
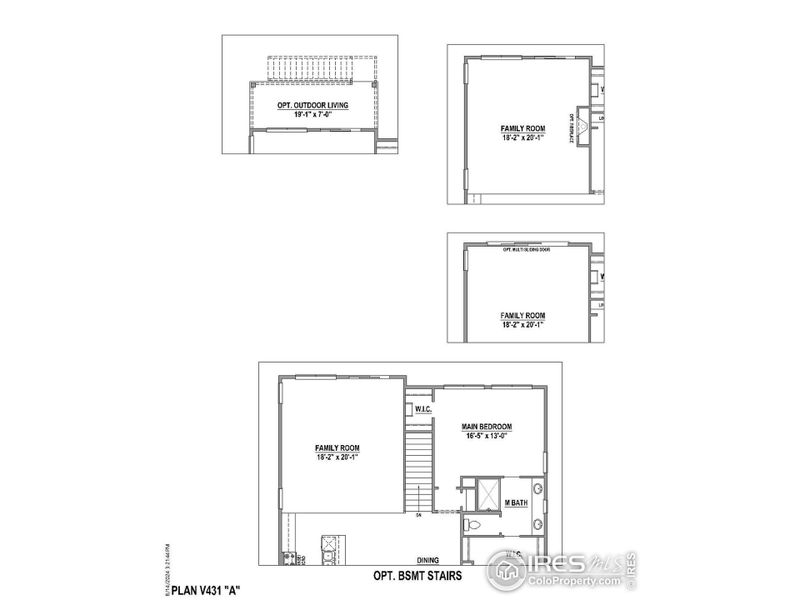
Large, and open ranch floor plan features 3,236 square feet of living space including a full finished basement. Enjoy 2 roomy bedrooms on the main level, plus a fireplace in the family room for cozy nights. Enjoy your charming front porch. The dining and kitchen area are open and bright, and the kitchen showcases a stunning center island with quartz counter tops. This home has a covered outdoor dining/entertaining space for warm summer nights. The finished basement includes a rec room, 2 full bathrooms and 2 additional bedrooms! Lots of upgraded modern finishes to enjoy. This South facing lot backs to open space! Enjoy the 3-car tandem garage for all of your toys. At The Lakes you can kayak, paddle board or fish. Get your steps in with miles of parks and trails winding through the neighborhoods, lakes and along the St. Vrain River. The Cove and Pool community hub offers an outdoor pool, grills, fire-pits, a pickleball court and much more! Come enjoy lake life at Barefoot Lakes! Finished Inventory Summer Special! Contact Sales Office for details
American Legend Homes LLC, MLS 1033867
May also be listed on the American Legend Homes website
Information last verified by Jome: Today at 5:08 AM (January 7, 2026)
Home highlights
Restored prairie ecosystem near Denver with mountain views, bison herds, and miles of peaceful nature trails.
Book your tour. Save an average of $18,473. We'll handle the rest.
We collect exclusive builder offers, book your tours, and support you from start to housewarming.
- Confirmed tours
- Get matched & compare top deals
- Expert help, no pressure
- No added fees
Estimated value based on Jome data, T&C apply
Home details
- Property status:
- Move-in ready
- Lot size (acres):
- 0.13
- Size:
- 3,236 sqft
- Stories:
- 1
- Beds:
- 4
- Baths:
- 4
- Garage spaces:
- 3
- Fence:
- Wood Fence, Partial Fence
- Facing direction:
- South
Construction details
- Builder Name:
- American Legend Homes
- Completion Date:
- May, 2025
- Year Built:
- 2025
- Roof:
- Composition Roofing
Home features & finishes
- Construction Materials:
- Wood FrameStone
- Cooling:
- Ceiling Fan(s)Central Air
- Flooring:
- Vinyl FlooringCarpet Flooring
- Garage/Parking:
- Door OpenerGarageAttached GarageTandem Parking
- Home amenities:
- Green Construction
- Interior Features:
- Walk-In ClosetFoyerPantry
- Kitchen:
- DishwasherMicrowave OvenDisposalGas CooktopSelf Cleaning OvenKitchen IslandGas Oven
- Laundry facilities:
- DryerWasherLaundry Facilities On Main LevelUtility/Laundry Room
- Lighting:
- Exterior Lighting
- Property amenities:
- PatioFireplacePorch
- Rooms:
- Primary Bedroom On MainKitchenPowder RoomDining RoomFamily RoomOpen Concept FloorplanSeparate Living and DiningPrimary Bedroom Downstairs
Room details
Master Bedroom
Kitchen
Dining Room

Get a consultation with our New Homes Expert
- See how your home builds wealth
- Plan your home-buying roadmap
- Discover hidden gems
Utility information
- Heating:
- Zoned Heating, Forced Air Heating, Hot Water Heating
- Utilities:
- Electricity Available, Natural Gas Available, HVAC, Cable Available, High Speed Internet Access

Community details
Barefoot Lakes
by American Legend Homes, Firestone, CO
- 6 homes
- 6 plans
- 1,816 - 3,236 sqft
View Barefoot Lakes details
Community amenities
- Playground
- Fitness Center/Exercise Area
- Club House
- Community Pool
- Park Nearby
- Business Center
More homes in Barefoot Lakes
- 5901 Aspenglow St, Longmont, CO 80504

Plan V435
$709,990
- 4 bd
- 3 ba
- 2,407 sqft
5901 Aspenglow St, Longmont, CO 80504
- 5881 Aspenglow St, Longmont, CO 80504

Plan V432
$792,990
- 4 bd
- 3.5 ba
- 2,966 sqft
5881 Aspenglow St, Longmont, CO 80504
- 5841 Aspenglow St, Firestone, CO 80504

Plan V433
$823,529
- 5 bd
- 3.5 ba
- 3,117 sqft
5841 Aspenglow St, Firestone, CO 80504
Floor plans in Barefoot Lakes
About the builder - American Legend Homes
Neighborhood
Home address
Schools in St. Vrain Valley School District RE 1J
GreatSchools’ Summary Rating calculation is based on 4 of the school’s themed ratings, including test scores, student/academic progress, college readiness, and equity. This information should only be used as a reference. Jome is not affiliated with GreatSchools and does not endorse or guarantee this information. Please reach out to schools directly to verify all information and enrollment eligibility. Data provided by GreatSchools.org © 2025
Places of interest
Getting around
Air quality

Considering this home?
Our expert will guide your tour, in-person or virtual
Need more information?
Text or call (888) 486-2818
Financials
Estimated monthly payment
Let us help you find your dream home
How many bedrooms are you looking for?
Similar homes nearby
Recently added communities in this area
Nearby communities in Longmont
New homes in nearby cities
More New Homes in Longmont, CO
American Legend Homes LLC, MLS 1033867
Information source: Information and Real Estate Services, LLC. Provided for limited non-commercial use only under IRES Rules © 2025 IRES, LLC. Listing information is provided exclusively for consumers' personal, non-commercial use and may not be used for any purpose other than to identify prospective properties consumers may be interested in purchasing. Information deemed reliable but not guaranteed by the MLS. Compensation information displayed on listing details is only applicable to other participants and subscribers of the source MLS.
Read moreLast checked Jan 7, 11:20 am
- Jome
- New homes search
- Colorado
- Denver Metropolitan Area
- Weld County
- Longmont
- Barefoot Lakes
- 5891 Aspenglow St, Longmont, CO 80504




























