



Book your tour. Save an average of $18,473. We'll handle the rest.
- Confirmed tours
- Get matched & compare top deals
- Expert help, no pressure
- No added fees
Estimated value based on Jome data, T&C apply
- 5 bd
- 2 ba
- 6,173 sqft
6150 Solano Pl, Castle Rock, CO 80108
Why tour with Jome?
- No pressure toursTour at your own pace with no sales pressure
- Expert guidanceGet insights from our home buying experts
- Exclusive accessSee homes and deals not available elsewhere
Jome is featured in
- Single-Family
- Quick move-in
- $253.61/sqft
- $1,200/annual HOA
Home description
!!When you purchase this home, you'll have the exciting opportunity to personalize it at our Design Center. Additional structural options and interior finishes may be offered. Please note that customization choices may affect the final price.!!
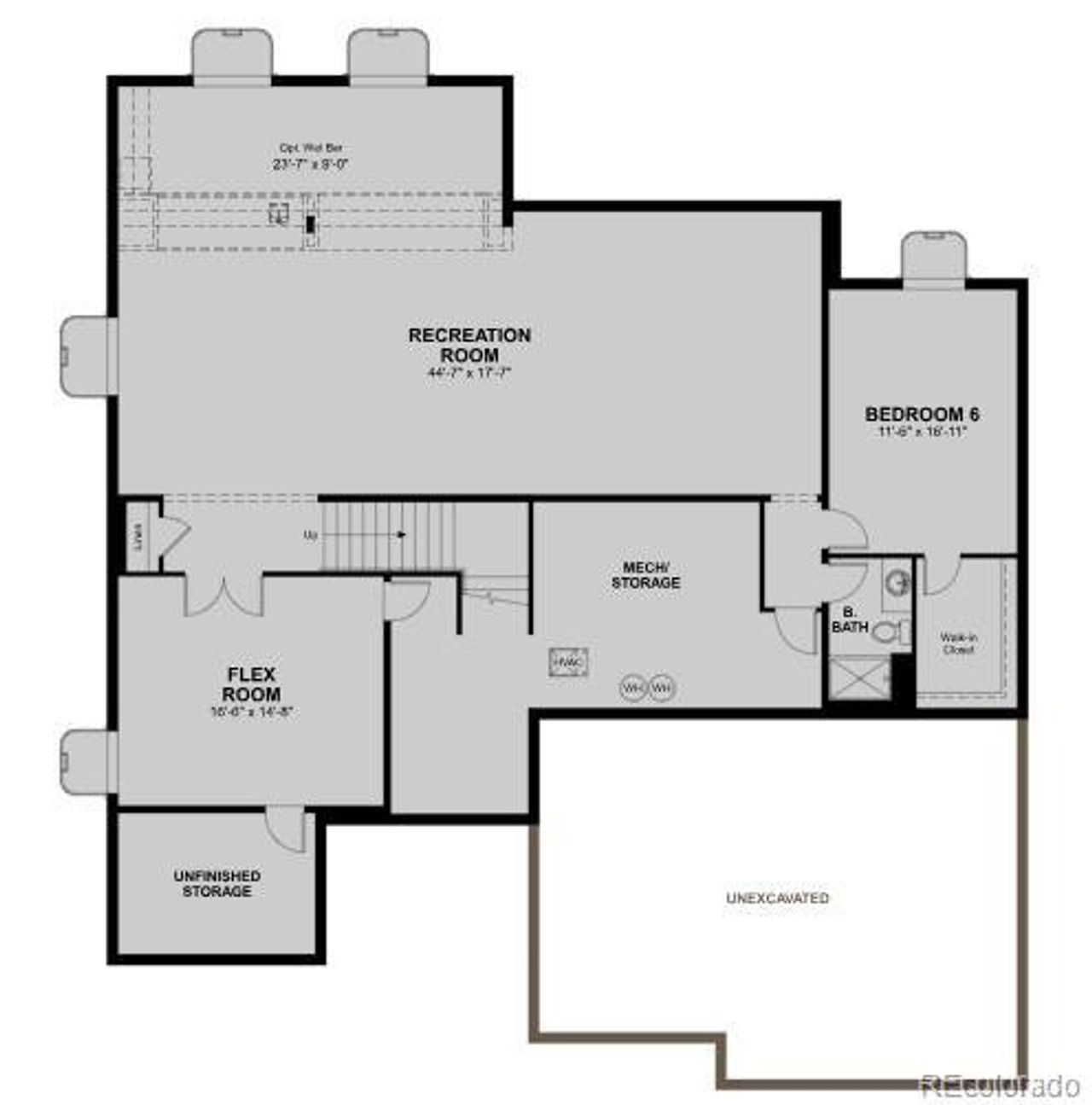
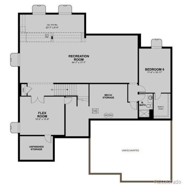
The impressive Harmon plan offers a wealth of exciting features, including a welcoming covered entry, formal living and dining rooms, and an inviting great room with a cozy fireplace. Just off the gourmet kitchen, which showcases a generous center island, are a built-in tech center and butler’s and walk-in pantries. A study, convenient laundry, and full bath complete the main floor. Upstairs, you’ll find three secondary bedrooms, two additional bathrooms, and a luxurious primary suite boasting a private retreat, an immense walk-in closet, and a deluxe bath with dual vanities, a shower, and a soaking tub. Personalize the Harmon with a professional kitchen, built-in bookcases at the great room, a bedroom in lieu of the study, a covered patio with center-meet or multi-slide doors, and/or a primary suite coffee bar.
Richmond Realty Inc, MLS REC8310448
May also be listed on the Richmond American Homes website
Information last verified by Jome: Yesterday at 10:11 AM (December 13, 2025)
Home highlights
Secure, family-friendly base with top-rated Aurora schools and easy access to Denver's amenities.
Book your tour. Save an average of $18,473. We'll handle the rest.
We collect exclusive builder offers, book your tours, and support you from start to housewarming.
- Confirmed tours
- Get matched & compare top deals
- Expert help, no pressure
- No added fees
Estimated value based on Jome data, T&C apply
Home details
- Property status:
- Move-in ready
- Lot size (acres):
- 1.00
- Size:
- 6,173 sqft
- Stories:
- 2
- Beds:
- 5
- Baths:
- 2
- Garage spaces:
- 3
Construction details
- Builder Name:
- Richmond American Homes
- Year Built:
- 2025
- Roof:
- Composition Roofing
Home features & finishes
- Appliances:
- Sprinkler System
- Construction Materials:
- Frame
- Cooling:
- Central Air
- Flooring:
- Vinyl FlooringCarpet Flooring
- Garage/Parking:
- GarageAttached Garage
- Interior Features:
- Ceiling-HighWalk-In ClosetFoyerPantryJack and Jill Bathroom
- Kitchen:
- Quartz countertopKitchen Island
- Property amenities:
- Cul-de-sacBasementFireplace
- Rooms:
- KitchenFamily RoomOpen Concept Floorplan
- Security system:
- Radon Detector

Get a consultation with our New Homes Expert
- See how your home builds wealth
- Plan your home-buying roadmap
- Discover hidden gems
Utility information
- Heating:
- Forced Air Heating

Community details
The Apex at Cobblestone Ranch
by Richmond American Homes, Castle Rock, CO
- 2 homes
- 5 plans
- 3,800 - 6,173 sqft
View The Apex at Cobblestone Ranch details
More homes in The Apex at Cobblestone Ranch
Floor plans in The Apex at Cobblestone Ranch
About the builder - Richmond American Homes
Neighborhood
Home address
- City:
- Castle Rock
- County:
- Douglas
- Zip Code:
- 80108
Schools in Douglas County School District RE-1
GreatSchools’ Summary Rating calculation is based on 4 of the school’s themed ratings, including test scores, student/academic progress, college readiness, and equity. This information should only be used as a reference. Jome is not affiliated with GreatSchools and does not endorse or guarantee this information. Please reach out to schools directly to verify all information and enrollment eligibility. Data provided by GreatSchools.org © 2025
Places of interest
Getting around
Air quality
Noise level
A Soundscore™ rating is a number between 50 (very loud) and 100 (very quiet) that tells you how loud a location is due to environmental noise.
Natural hazards risk
Climate hazards can impact homes and communities, with risks varying by location. These scores reflect the potential impact of natural disasters and climate-related risks on Douglas County
Provided by FEMA

Considering this home?
Our expert will guide your tour, in-person or virtual
Need more information?
Text or call (888) 486-2818
Financials
Estimated monthly payment
Let us help you find your dream home
How many bedrooms are you looking for?
Similar homes nearby
Recently added communities in this area
Nearby communities in Castle Rock
New homes in nearby cities
More New Homes in Castle Rock, CO
Richmond Realty Inc, MLS REC8310448
The content relating to real estate for sale in this Web site comes in part from the Internet Data eXchange (“IDX”) program of METROLIST, INC., DBA RECOLORADO® Real estate listings held by brokers other than NewHomesMate LLC, DBA Jome are marked with the IDX Logo. This information is being provided for the consumers’ personal, non-commercial use and may not be used for any other purpose. All information subject to change and should be independently verified. This publication is designed to provide information with regard to the subject matter covered. It is displayed with the understanding that the publisher and authors are not engaged in rendering real estate, legal, accounting, tax, or other professional services and that the publisher and authors are not offering such advice in this publication. If real estate, legal, or other expert assistance is required, the services of a competent, professional person should be sought. The information contained in this publication is subject to change without notice. METROLIST, INC., DBA RECOLORADO MAKES NO WARRANTY OF ANY KIND WITH REGARD TO THIS MATERIAL, INCLUDING, BUT NOT LIMITED TO, THE IMPLIED WARRANTIES OF MERCHANTABILITY AND FITNESS FOR A PARTICULAR PURPOSE. METROLIST, INC., DBA RECOLORADO SHALL NOT BE LIABLE FOR ERRORS CONTAINED HEREIN OR FOR ANY DAMAGES IN CONNECTION WITH THE FURNISHING, PERFORMANCE, OR USE OF THIS MATERIAL. PUBLISHER'S NOTICE: All real estate advertised herein is subject to the Federal Fair Housing Act and the Colorado Fair Housing Act, which Acts make it illegal to make or publish any advertisement that indicates any preference, limitation, or discrimination based on race, color, religion, sex, handicap, familial status, or national origin. METROLIST, INC., DBA RECOLORADO will not knowingly accept any advertising for real estate that is in violation of the law. All persons are hereby informed that all dwellings advertised are available on an equal opportunity basis. © 2025 METROLIST, INC., DBA RECOLORADO® - All Rights Reserved. 6455 S. Yosemite St., Suite 500, Greenwood Village, CO 80111 USA. ALL RIGHTS RESERVED WORLDWIDE. No part of this publication may be reproduced, adapted, translated, stored in a retrieval system or transmitted in any form or by any means, electronic, mechanical, photocopying, recording, or otherwise, without the prior written permission of the publisher. The information contained herein including but not limited to all text, photographs, digital images, virtual tours, may be seeded and monitored for protection and tracking.
Read moreLast checked Dec 13, 10:00 pm
- Jome
- New homes search
- Colorado
- Denver Metropolitan Area
- Douglas County
- Castle Rock
- The Apex at Cobblestone Ranch
- 6150 Solano Pl, Castle Rock, CO 80108




























