














Book your tour. Save an average of $18,473. We'll handle the rest.
- Confirmed tours
- Get matched & compare top deals
- Expert help, no pressure
- No added fees
Estimated value based on Jome data, T&C apply





- 2 bd
- 1.5 ba
- 2,015 sqft
1928 Grayside Cir, Castle Rock, CO 80109
Why tour with Jome?
- No pressure toursTour at your own pace with no sales pressure
- Expert guidanceGet insights from our home buying experts
- Exclusive accessSee homes and deals not available elsewhere
Jome is featured in
- Townhouse
- Quick move-in
- $310.17/sqft
- $2,724/annual HOA
Home description
READY NOW! BRAND NEW LOW-MAINTENANCE HOME! Main level offers 10-ft ceilings with 8-ft doors, main floor office, and covered rear deck. Design finishes include great room fireplace, Maple cabinetry with dove tail and soft close drawers, tiled kitchen backsplash, KitchenAid® appliances with a gas range & French-door refrigerator, quartz countertops with undermount sinks throughout, 12x24-in bath tile, and luxury EVP flooring.
Low-maintenance lock-and-leave lifestyle perfectly nestled on the west side of I-25 located minutes from downtown Castle Rock, shopping, restaurants, recreation, medical and everyday conveniences. Exclusive community park including covered pavilion, pickleball & cornhole courts, green space sports field and access to regional walking and biking trails at the Ridgeline Open Space. Your boutique new homebuilder in the Denver Area offering high quality features and Best-In-Class warranties.
RE/MAX Professionals, MLS REC6506014
May also be listed on the BLVD Builders website
Information last verified by Jome: Today at 10:06 AM (January 19, 2026)
Home highlights
Beloved Denver park with lakes, trails, gardens, and a lively neighborhood vibe near historic homes.
Book your tour. Save an average of $18,473. We'll handle the rest.
We collect exclusive builder offers, book your tours, and support you from start to housewarming.
- Confirmed tours
- Get matched & compare top deals
- Expert help, no pressure
- No added fees
Estimated value based on Jome data, T&C apply
Home details
- Property status:
- Move-in ready
- Neighborhood:
- Red Hawk
- Lot size (acres):
- 0.09
- Size:
- 2,015 sqft
- Stories:
- 1
- Beds:
- 2
- Baths:
- 1
- Half baths:
- 1
- Garage spaces:
- 2
- Fence:
- No Fence
- Facing direction:
- South
Construction details
- Builder Name:
- BLVD Builders
- Year Built:
- 2025
- Roof:
- Composition Roofing
Home features & finishes
- Construction Materials:
- CementFrameStone
- Cooling:
- Central Air
- Flooring:
- Vinyl FlooringCarpet FlooringTile Flooring
- Foundation Details:
- Slab
- Garage/Parking:
- GarageAttached Garage
- Interior Features:
- Ceiling-HighWalk-In ClosetPantry
- Kitchen:
- DishwasherMicrowave OvenRefrigeratorDisposalQuartz countertopSelf Cleaning OvenKitchen IslandKitchen Range
- Laundry facilities:
- Laundry Facilities In Unit
- Pets:
- Pets AllowedCat(s) Only AllowedDog(s) Only Allowed
- Property amenities:
- BasementDeckFireplacePorch
- Rooms:
- Primary Bedroom On MainKitchenFamily RoomOpen Concept FloorplanPrimary Bedroom Downstairs
- Security system:
- Radon DetectorSmoke DetectorCarbon Monoxide Detector
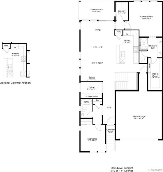
Room details
Kitchen
Bedroom 1
Great Room

Get a consultation with our New Homes Expert
- See how your home builds wealth
- Plan your home-buying roadmap
- Discover hidden gems
Utility information
- Heating:
- Water Heater, Forced Air Heating, Tankless water heater
- Utilities:
- Electricity Available, Natural Gas Available, Phone Available, Cable Available, High Speed Internet Access

Community details
Hillside at Castle Rock
by BLVD Builders, Castle Rock, CO
- 3 homes
- 6 plans
- 1,930 - 2,269 sqft
View Hillside at Castle Rock details
More homes in Hillside at Castle Rock
- Home at address 2011 Grayside Cir, Castle Rock, CO 80109

Home
$709,000
- 2 bd
- 1.5 ba
- 1,930 sqft
2011 Grayside Cir, Castle Rock, CO 80109
- Home at address 2021 Grayside Cir, Castle Rock, CO 80109

Home
$799,700
- 3 bd
- 1.5 ba
- 2,113 sqft
2021 Grayside Cir, Castle Rock, CO 80109
Floor plans in Hillside at Castle Rock
About the builder - BLVD Builders
Neighborhood
Home address
- Neighborhood:
- Red Hawk
- City:
- Castle Rock
Schools in Douglas County School District RE-1
- Grades PK-PKPubliccantril1.6 mi312 cantril streetna
GreatSchools’ Summary Rating calculation is based on 4 of the school’s themed ratings, including test scores, student/academic progress, college readiness, and equity. This information should only be used as a reference. Jome is not affiliated with GreatSchools and does not endorse or guarantee this information. Please reach out to schools directly to verify all information and enrollment eligibility. Data provided by GreatSchools.org © 2025
Places of interest
Getting around
Air quality
Noise level
A Soundscore™ rating is a number between 50 (very loud) and 100 (very quiet) that tells you how loud a location is due to environmental noise.

Considering this home?
Our expert will guide your tour, in-person or virtual
Need more information?
Text or call (888) 486-2818
Financials
Estimated monthly payment
Let us help you find your dream home
How many bedrooms are you looking for?
Similar homes nearby
Recently added communities in this area
Nearby communities in Castle Rock
New homes in nearby cities
More New Homes in Castle Rock, CO
RE/MAX Professionals, MLS REC6506014
The content relating to real estate for sale in this Web site comes in part from the Internet Data eXchange (“IDX”) program of METROLIST, INC., DBA RECOLORADO® Real estate listings held by brokers other than NewHomesMate LLC, DBA Jome are marked with the IDX Logo. This information is being provided for the consumers’ personal, non-commercial use and may not be used for any other purpose. All information subject to change and should be independently verified. This publication is designed to provide information with regard to the subject matter covered. It is displayed with the understanding that the publisher and authors are not engaged in rendering real estate, legal, accounting, tax, or other professional services and that the publisher and authors are not offering such advice in this publication. If real estate, legal, or other expert assistance is required, the services of a competent, professional person should be sought. The information contained in this publication is subject to change without notice. METROLIST, INC., DBA RECOLORADO MAKES NO WARRANTY OF ANY KIND WITH REGARD TO THIS MATERIAL, INCLUDING, BUT NOT LIMITED TO, THE IMPLIED WARRANTIES OF MERCHANTABILITY AND FITNESS FOR A PARTICULAR PURPOSE. METROLIST, INC., DBA RECOLORADO SHALL NOT BE LIABLE FOR ERRORS CONTAINED HEREIN OR FOR ANY DAMAGES IN CONNECTION WITH THE FURNISHING, PERFORMANCE, OR USE OF THIS MATERIAL. PUBLISHER'S NOTICE: All real estate advertised herein is subject to the Federal Fair Housing Act and the Colorado Fair Housing Act, which Acts make it illegal to make or publish any advertisement that indicates any preference, limitation, or discrimination based on race, color, religion, sex, handicap, familial status, or national origin. METROLIST, INC., DBA RECOLORADO will not knowingly accept any advertising for real estate that is in violation of the law. All persons are hereby informed that all dwellings advertised are available on an equal opportunity basis. © 2025 METROLIST, INC., DBA RECOLORADO® - All Rights Reserved. 6455 S. Yosemite St., Suite 500, Greenwood Village, CO 80111 USA. ALL RIGHTS RESERVED WORLDWIDE. No part of this publication may be reproduced, adapted, translated, stored in a retrieval system or transmitted in any form or by any means, electronic, mechanical, photocopying, recording, or otherwise, without the prior written permission of the publisher. The information contained herein including but not limited to all text, photographs, digital images, virtual tours, may be seeded and monitored for protection and tracking.
Read moreLast checked Jan 19, 4:00 pm
- Jome
- New homes search
- Colorado
- Denver Metropolitan Area
- Douglas County
- Castle Rock
- Hillside at Castle Rock
- 1928 Grayside Cir, Castle Rock, CO 80109



































