



Book your tour. Save an average of $18,473. We'll handle the rest.
We collect exclusive builder offers, book your tours, and support you from start to housewarming.
- Confirmed tours
- Get matched & compare top deals
- Expert help, no pressure
- No added fees
Estimated value based on Jome data, T&C apply


Why tour with Jome?
- No pressure toursTour at your own pace with no sales pressure
- Expert guidanceGet insights from our home buying experts
- Exclusive accessSee homes and deals not available elsewhere
Jome is featured in
- Single-Family
- Under construction
- $233.82/sqft
- South facing
Home description
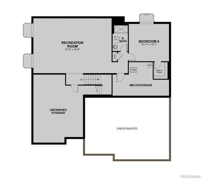
**!!PERSONALIZATION AVAILABLE!!**This Dillon II features a dramatic two-story entry. A formal dining room rests at the front of the home and offers a more formal space for meals and conversation. An expansive great room welcomes you to relax with a fireplace. Beyond, the gourmet kitchen features a large island and walk-in pantry. A convenient powder room rests outside a spacious study and the mudroom leading to the 3-car garage. Retreat upstairs to find views to the first floor, along with three secondary bedrooms, one with a private bath and a shared bath that make perfect accommodations for family or guests. The primary suite is nearby and showcases a private deluxe bath and a walk-in closet. If that wasn’t enough, this home includes a finished basement that boasts a wide-open rec room and a basement bedroom with a shared bath. When you purchase this home, you'll have the exciting opportunity to personalize it at our Design Center. Please note that customization choices may affect the final price.
Richmond Realty Inc, MLS REC7575042
May also be listed on the Richmond American Homes website
Information last verified by Jome: Yesterday at 10:04 AM (March 20, 2026)
Book your tour. Save an average of $18,473. We'll handle the rest.
We collect exclusive builder offers, book your tours, and support you from start to housewarming.
- Confirmed tours
- Get matched & compare top deals
- Expert help, no pressure
- No added fees
Estimated value based on Jome data, T&C apply
Home details
- Property status:
- Under construction
- Lot size (acres):
- 0.17
- Size:
- 4,159 sqft
- Stories:
- 2
- Beds:
- 5
- Baths:
- 2
- Half baths:
- 1
- Garage spaces:
- 3
- Facing direction:
- South
Construction details
- Builder Name:
- Richmond American Homes
- Year Built:
- 2025
- Roof:
- Composition Roofing
Home features & finishes
- Appliances:
- Sprinkler System
- Construction Materials:
- Frame
- Cooling:
- Central Air
- Foundation Details:
- Slab
- Garage/Parking:
- GarageAttached Garage
- Interior Features:
- Walk-In ClosetPantry
- Kitchen:
- Kitchen Island
- Property amenities:
- BasementLandscapingFireplace
- Rooms:
- KitchenFamily RoomOpen Concept Floorplan
- Security system:
- Radon Detector
Room details
Kitchen
Dining Room
Bedroom 1

Get a consultation with our New Homes Expert
- See how your home builds wealth
- Plan your home-buying roadmap
- Discover hidden gems
Utility information
- Heating:
- Forced Air Heating

Community details
Kitchel Lake
by Richmond American Homes, Timnath, CO
- 10 homes
- 5 plans
- 2,347 - 4,804 sqft
View Kitchel Lake details
More homes in Kitchel Lake
- Home at address 6120 Oban Rd, Timnath, CO 80547

Hemingway
Savings$819,950
- 5 bd
- 3.5 ba
- 3,660 sqft
6120 Oban Rd, Timnath, CO 80547
- Home at address 1353 Alyssa Dr, Timnath, CO 80547

Dillon II
Savings$932,950
- 5 bd
- 4.5 ba
- 4,150 sqft
1353 Alyssa Dr, Timnath, CO 80547
- Home at address 1220 Kitchel Lake Pkwy, Timnath, CO 80547

Dillon II
Savings$949,950
- 5 bd
- 4.5 ba
- 4,150 sqft
1220 Kitchel Lake Pkwy, Timnath, CO 80547
- Home at address 1162 Weller St, Timnath, CO 80547

Home
Savings$989,950
- 6 bd
- 3.5 ba
- 4,804 sqft
1162 Weller St, Timnath, CO 80547
- Home at address 1162 Weller St, Timnath, CO 80525

Daley
Savings$989,950
- 6 bd
- 5.5 ba
- 4,800 sqft
1162 Weller St, Timnath, CO 80525
- Home at address 6126 Oban Rd, Timnath, CO 80525

Dillon II
Savings$999,950
- 6 bd
- 5 ba
- 4,150 sqft
6126 Oban Rd, Timnath, CO 80525
Floor plans in Kitchel Lake
About the builder - Richmond American Homes
Neighborhood
Home address
Schools in Poudre School District R-1
- Grades 06-11Publictimnath middle-high school1.3 mi4700 east prospect roadna
GreatSchools’ Summary Rating calculation is based on 4 of the school’s themed ratings, including test scores, student/academic progress, college readiness, and equity. This information should only be used as a reference. Jome is not affiliated with GreatSchools and does not endorse or guarantee this information. Please reach out to schools directly to verify all information and enrollment eligibility. Data provided by GreatSchools.org © 2025
Places of interest
Getting around
Air quality
Noise level
A Soundscore™ rating is a number between 50 (very loud) and 100 (very quiet) that tells you how loud a location is due to environmental noise.

Considering this home?
Our expert will guide your tour, in-person or virtual
Need more information?
Text or call (888) 545-5198
Financials
Estimated monthly payment
Let us help you find your dream home
How many bedrooms are you looking for?
Similar homes nearby
Recently added communities in this area
Nearby communities in Timnath
New homes in nearby cities
More New Homes in Timnath, CO
Richmond Realty Inc, MLS REC7575042
The content relating to real estate for sale in this Web site comes in part from the Internet Data eXchange (“IDX”) program of METROLIST, INC., DBA RECOLORADO® Real estate listings held by brokers other than NewHomesMate LLC, DBA Jome are marked with the IDX Logo. This information is being provided for the consumers’ personal, non-commercial use and may not be used for any other purpose. All information subject to change and should be independently verified. This publication is designed to provide information with regard to the subject matter covered. It is displayed with the understanding that the publisher and authors are not engaged in rendering real estate, legal, accounting, tax, or other professional services and that the publisher and authors are not offering such advice in this publication. If real estate, legal, or other expert assistance is required, the services of a competent, professional person should be sought. The information contained in this publication is subject to change without notice. METROLIST, INC., DBA RECOLORADO MAKES NO WARRANTY OF ANY KIND WITH REGARD TO THIS MATERIAL, INCLUDING, BUT NOT LIMITED TO, THE IMPLIED WARRANTIES OF MERCHANTABILITY AND FITNESS FOR A PARTICULAR PURPOSE. METROLIST, INC., DBA RECOLORADO SHALL NOT BE LIABLE FOR ERRORS CONTAINED HEREIN OR FOR ANY DAMAGES IN CONNECTION WITH THE FURNISHING, PERFORMANCE, OR USE OF THIS MATERIAL. PUBLISHER'S NOTICE: All real estate advertised herein is subject to the Federal Fair Housing Act and the Colorado Fair Housing Act, which Acts make it illegal to make or publish any advertisement that indicates any preference, limitation, or discrimination based on race, color, religion, sex, handicap, familial status, or national origin. METROLIST, INC., DBA RECOLORADO will not knowingly accept any advertising for real estate that is in violation of the law. All persons are hereby informed that all dwellings advertised are available on an equal opportunity basis. © 2025 METROLIST, INC., DBA RECOLORADO® - All Rights Reserved. 6455 S. Yosemite St., Suite 500, Greenwood Village, CO 80111 USA. ALL RIGHTS RESERVED WORLDWIDE. No part of this publication may be reproduced, adapted, translated, stored in a retrieval system or transmitted in any form or by any means, electronic, mechanical, photocopying, recording, or otherwise, without the prior written permission of the publisher. The information contained herein including but not limited to all text, photographs, digital images, virtual tours, may be seeded and monitored for protection and tracking.
Read moreLast checked Mar 21, 4:00 am
- Jome
- New homes search
- Colorado
- Denver Metropolitan Area
- Larimer County
- Timnath
- Kitchel Lake
- 6030 Oban Rd, Timnath, CO 80547





























