














Book your tour. Save an average of $18,473. We'll handle the rest.
- Confirmed tours
- Get matched & compare top deals
- Expert help, no pressure
- No added fees
Estimated value based on Jome data, T&C apply





































- 4 bd
- 2.5 ba
- 2,771 sqft
4297 Ridgewalk Pt, Castle Rock, CO 80108
Why tour with Jome?
- No pressure toursTour at your own pace with no sales pressure
- Expert guidanceGet insights from our home buying experts
- Exclusive accessSee homes and deals not available elsewhere
Jome is featured in
- Single-Family
- Quick move-in
- $306.38/sqft
- $1,200/annual HOA
Home description
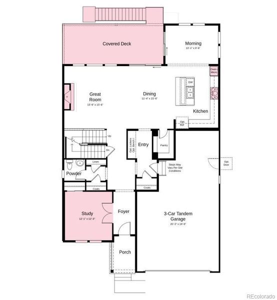
New Construction - Ready Now! Built by America's Most Trusted Homebuilder. Welcome to the Silverthorne at 4297 Ridgewalk Point in Macanta City Collection! Step through the front porch into a welcoming foyer with a study and half bath nearby. The open kitchen, dining area, and two-story great room with a fireplace create a warm and connected space. A morning room just off the kitchen is perfect for soaking in Colorado sunshine. Thoughtful touches like a walk-in pantry, garage entry, and extra storage make daily life easier. Upstairs, the primary suite features a spa-inspired bath and walk-in closet. Three additional bedrooms, a shared bath, and a laundry room complete the second floor. A basement adds even more space for storage or a home gym. At Macanta in Castle Rock, enjoy over 1,000 acres of open space and trails, plus The Spoke amenity center with fitness, pools, co-working spaces, and more. You're close to charming downtown, top schools, and major highways. Additional Highlights Include: Fireplace at great room, covered outdoor living, and study. MLS#7245875
RE/MAX Professionals, MLS REC7245875
May also be listed on the Taylor Morrison website
Information last verified by Jome: Yesterday at 10:06 AM (December 18, 2025)
Home highlights
Secure, family-friendly base with top-rated Aurora schools and easy access to Denver's amenities.
Book your tour. Save an average of $18,473. We'll handle the rest.
We collect exclusive builder offers, book your tours, and support you from start to housewarming.
- Confirmed tours
- Get matched & compare top deals
- Expert help, no pressure
- No added fees
Estimated value based on Jome data, T&C apply
Home details
- Property status:
- Move-in ready
- Lot size (acres):
- 0.13
- Size:
- 2,771 sqft
- Stories:
- 2
- Beds:
- 4
- Baths:
- 2.5
- Garage spaces:
- 3
- Fence:
- Partial Fence
- Facing direction:
- East
Construction details
- Builder Name:
- Taylor Morrison
- Completion Date:
- October, 2025
- Year Built:
- 2025
- Roof:
- Composition Roofing
Home features & finishes
- Appliances:
- Sprinkler System
- Construction Materials:
- Frame
- Cooling:
- Central Air
- Flooring:
- Vinyl FlooringCarpet FlooringTile Flooring
- Foundation Details:
- Slab
- Garage/Parking:
- GarageAttached GarageTandem Parking
- Interior Features:
- Ceiling-HighWalk-In ClosetFoyerPantry
- Kitchen:
- DishwasherMicrowave OvenOvenQuartz countertopCook TopKitchen Island
- Laundry facilities:
- Laundry Facilities In UnitUtility/Laundry Room
- Pets:
- Cat(s) Only AllowedDog(s) Only Allowed
- Property amenities:
- Cul-de-sacBasementDeckGas Log FireplacePatioFireplaceYardPorch
- Rooms:
- Flex RoomKitchenTwo-Story Great RoomDining RoomFamily RoomOpen Concept FloorplanPrimary Bedroom Upstairs
- Security system:
- Smoke DetectorCarbon Monoxide Detector

Get a consultation with our New Homes Expert
- See how your home builds wealth
- Plan your home-buying roadmap
- Discover hidden gems
Utility information
- Heating:
- Water Heater
- Utilities:
- Natural Gas Available

Community details
Macanta City Collection
by Taylor Morrison, Castle Rock, CO
- 13 homes
- 7 plans
- 2,061 - 2,975 sqft
View Macanta City Collection details
Community amenities
- Mountain(s) View
More homes in Macanta City Collection
Floor plans in Macanta City Collection
About the builder - Taylor Morrison
Neighborhood
Home address
- City:
- Castle Rock
- County:
- Douglas
- Zip Code:
- 80108
Schools in Douglas County School District RE-1
- Grades PK-PKPublicearly childhood center2.5 mi3950 trail boss lanena
GreatSchools’ Summary Rating calculation is based on 4 of the school’s themed ratings, including test scores, student/academic progress, college readiness, and equity. This information should only be used as a reference. Jome is not affiliated with GreatSchools and does not endorse or guarantee this information. Please reach out to schools directly to verify all information and enrollment eligibility. Data provided by GreatSchools.org © 2025
Places of interest
Getting around
Air quality
Noise level
A Soundscore™ rating is a number between 50 (very loud) and 100 (very quiet) that tells you how loud a location is due to environmental noise.
Natural hazards risk
Climate hazards can impact homes and communities, with risks varying by location. These scores reflect the potential impact of natural disasters and climate-related risks on Douglas County
Provided by FEMA

Considering this home?
Our expert will guide your tour, in-person or virtual
Need more information?
Text or call (888) 486-2818
Financials
Estimated monthly payment
Let us help you find your dream home
How many bedrooms are you looking for?
Similar homes nearby
Recently added communities in this area
Nearby communities in Castle Rock
New homes in nearby cities
More New Homes in Castle Rock, CO
RE/MAX Professionals, MLS REC7245875
The content relating to real estate for sale in this Web site comes in part from the Internet Data eXchange (“IDX”) program of METROLIST, INC., DBA RECOLORADO® Real estate listings held by brokers other than NewHomesMate LLC, DBA Jome are marked with the IDX Logo. This information is being provided for the consumers’ personal, non-commercial use and may not be used for any other purpose. All information subject to change and should be independently verified. This publication is designed to provide information with regard to the subject matter covered. It is displayed with the understanding that the publisher and authors are not engaged in rendering real estate, legal, accounting, tax, or other professional services and that the publisher and authors are not offering such advice in this publication. If real estate, legal, or other expert assistance is required, the services of a competent, professional person should be sought. The information contained in this publication is subject to change without notice. METROLIST, INC., DBA RECOLORADO MAKES NO WARRANTY OF ANY KIND WITH REGARD TO THIS MATERIAL, INCLUDING, BUT NOT LIMITED TO, THE IMPLIED WARRANTIES OF MERCHANTABILITY AND FITNESS FOR A PARTICULAR PURPOSE. METROLIST, INC., DBA RECOLORADO SHALL NOT BE LIABLE FOR ERRORS CONTAINED HEREIN OR FOR ANY DAMAGES IN CONNECTION WITH THE FURNISHING, PERFORMANCE, OR USE OF THIS MATERIAL. PUBLISHER'S NOTICE: All real estate advertised herein is subject to the Federal Fair Housing Act and the Colorado Fair Housing Act, which Acts make it illegal to make or publish any advertisement that indicates any preference, limitation, or discrimination based on race, color, religion, sex, handicap, familial status, or national origin. METROLIST, INC., DBA RECOLORADO will not knowingly accept any advertising for real estate that is in violation of the law. All persons are hereby informed that all dwellings advertised are available on an equal opportunity basis. © 2025 METROLIST, INC., DBA RECOLORADO® - All Rights Reserved. 6455 S. Yosemite St., Suite 500, Greenwood Village, CO 80111 USA. ALL RIGHTS RESERVED WORLDWIDE. No part of this publication may be reproduced, adapted, translated, stored in a retrieval system or transmitted in any form or by any means, electronic, mechanical, photocopying, recording, or otherwise, without the prior written permission of the publisher. The information contained herein including but not limited to all text, photographs, digital images, virtual tours, may be seeded and monitored for protection and tracking.
Read moreLast checked Dec 19, 4:00 am
- Jome
- New homes search
- Colorado
- Denver Metropolitan Area
- Douglas County
- Castle Rock
- Macanta City Collection
- 4297 Ridgewalk Pt, Castle Rock, CO 80108







































