














Book your tour. Save an average of $18,473. We'll handle the rest.
- Confirmed tours
- Get matched & compare top deals
- Expert help, no pressure
- No added fees
Estimated value based on Jome data, T&C apply




- 1 bd
- 1 ba
- 499 sqft
1680 N Sheridan Blvd, Unit 102, Denver, CO 80204
Why tour with Jome?
- No pressure toursTour at your own pace with no sales pressure
- Expert guidanceGet insights from our home buying experts
- Exclusive accessSee homes and deals not available elsewhere
Jome is featured in
- Condo
- Under construction
- $580.14/sqft
- $4,668/annual HOA
Home description
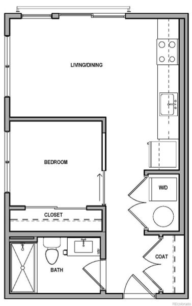
Wake up just steps from the park & lake in a thoughtfully designed urban flat. This premium ground-floor east-facing flat will be ready for a September closing. Step inside the Starla floor plan—a bright and open one-bedroom, one-bathroom layout thoughtfully crafted for everyday living. The kitchen flows effortlessly into the dining and living areas, creating a connected space for relaxing or hosting. Enjoy the convenience of in unit washer and dryer hookups and generous closet space. Finished with Kohler fixtures and low-maintenance materials, this flat is the perfect complement to an active, on-the-go lifestyle—just moments from Sloan’s Lake trails, local coffee shops, breweries, and more. To schedule a tour or learn more, reach out at (720) 656-4512 or email sales@lokalhomes.com. *Please note: Photos shown are of a different unit with a similar floor plan and Colorado Complete finish package. Views may vary. Contact the Community Sales Manager for more details specific to this home.
Landmark Residential Brokerage, MLS REC8379873
May also be listed on the Lokal Homes website
Information last verified by Jome: Today at 10:02 AM (December 5, 2025)
Home highlights
Popular Denver lake offering mountain views, trails, and a vibrant community near the city’s westside neighborhoods.
Book your tour. Save an average of $18,473. We'll handle the rest.
We collect exclusive builder offers, book your tours, and support you from start to housewarming.
- Confirmed tours
- Get matched & compare top deals
- Expert help, no pressure
- No added fees
Estimated value based on Jome data, T&C apply
Home details
- Property status:
- Under construction
- Neighborhood:
- West Colfax
- Size:
- 499 sqft
- Stories:
- 1
- Beds:
- 1
- Baths:
- 1
- Fence:
- No Fence
- Facing direction:
- Southwest
Construction details
- Builder Name:
- Lokal Homes
- Year Built:
- 2025
- Roof:
- Membrane Roofing
Home features & finishes
- Appliances:
- Sprinkler System
- Construction Materials:
- CementBrickFrameWood Siding
- Cooling:
- Central Air
- Flooring:
- Wood FlooringVinyl Flooring
- Foundation Details:
- Structural
- Garage/Parking:
- Car Charging Stations
- Home amenities:
- Green Construction
- Interior Features:
- Ceiling-HighWalk-In ClosetFoyer
- Kitchen:
- DishwasherMicrowave OvenOvenRefrigeratorDisposalQuartz countertopSelf Cleaning OvenGranite countertopKitchen IslandKitchen Range
- Laundry facilities:
- Laundry Facilities In Unit
- Lighting:
- Exterior LightingLighting
- Pets:
- Cat(s) Only Allowed
- Property amenities:
- PatioSmart Home System
- Rooms:
- Primary Bedroom On MainOpen Concept FloorplanPrimary Bedroom Downstairs
- Security system:
- Smoke DetectorCarbon Monoxide Detector
Utility information
- Heating:
- Water Heater, Forced Air Heating
- Utilities:
- Electricity Available, Internet Cable, Phone Available, HVAC, Cable Available, High Speed Internet Access
About the builder - Lokal Homes
Neighborhood
Home address
Schools in Denver County School District 1
GreatSchools’ Summary Rating calculation is based on 4 of the school’s themed ratings, including test scores, student/academic progress, college readiness, and equity. This information should only be used as a reference. Jome is not affiliated with GreatSchools and does not endorse or guarantee this information. Please reach out to schools directly to verify all information and enrollment eligibility. Data provided by GreatSchools.org © 2025
Places of interest
Getting around
5 nearby routes: 5 bus, 0 rail, 0 otherAir quality
Noise level
A Soundscore™ rating is a number between 50 (very loud) and 100 (very quiet) that tells you how loud a location is due to environmental noise.
Natural hazards risk
Climate hazards can impact homes and communities, with risks varying by location. These scores reflect the potential impact of natural disasters and climate-related risks on Denver County
Provided by FEMA

Considering this home?
Our expert will guide your tour, in-person or virtual
Need more information?
Text or call (888) 486-2818
Financials
Similar homes nearby
Recently added communities in this area
Nearby communities in Denver
New homes in nearby cities
More New Homes in Denver, CO
Landmark Residential Brokerage, MLS REC8379873
The content relating to real estate for sale in this Web site comes in part from the Internet Data eXchange (“IDX”) program of METROLIST, INC., DBA RECOLORADO® Real estate listings held by brokers other than NewHomesMate LLC, DBA Jome are marked with the IDX Logo. This information is being provided for the consumers’ personal, non-commercial use and may not be used for any other purpose. All information subject to change and should be independently verified. This publication is designed to provide information with regard to the subject matter covered. It is displayed with the understanding that the publisher and authors are not engaged in rendering real estate, legal, accounting, tax, or other professional services and that the publisher and authors are not offering such advice in this publication. If real estate, legal, or other expert assistance is required, the services of a competent, professional person should be sought. The information contained in this publication is subject to change without notice. METROLIST, INC., DBA RECOLORADO MAKES NO WARRANTY OF ANY KIND WITH REGARD TO THIS MATERIAL, INCLUDING, BUT NOT LIMITED TO, THE IMPLIED WARRANTIES OF MERCHANTABILITY AND FITNESS FOR A PARTICULAR PURPOSE. METROLIST, INC., DBA RECOLORADO SHALL NOT BE LIABLE FOR ERRORS CONTAINED HEREIN OR FOR ANY DAMAGES IN CONNECTION WITH THE FURNISHING, PERFORMANCE, OR USE OF THIS MATERIAL. PUBLISHER'S NOTICE: All real estate advertised herein is subject to the Federal Fair Housing Act and the Colorado Fair Housing Act, which Acts make it illegal to make or publish any advertisement that indicates any preference, limitation, or discrimination based on race, color, religion, sex, handicap, familial status, or national origin. METROLIST, INC., DBA RECOLORADO will not knowingly accept any advertising for real estate that is in violation of the law. All persons are hereby informed that all dwellings advertised are available on an equal opportunity basis. © 2025 METROLIST, INC., DBA RECOLORADO® - All Rights Reserved. 6455 S. Yosemite St., Suite 500, Greenwood Village, CO 80111 USA. ALL RIGHTS RESERVED WORLDWIDE. No part of this publication may be reproduced, adapted, translated, stored in a retrieval system or transmitted in any form or by any means, electronic, mechanical, photocopying, recording, or otherwise, without the prior written permission of the publisher. The information contained herein including but not limited to all text, photographs, digital images, virtual tours, may be seeded and monitored for protection and tracking.
Read moreLast checked Dec 5, 10:00 am
- Home
- New homes
- Colorado
- Denver Metropolitan Area
- Denver County
- Denver
- 1680 N Sheridan Blvd, Unit 102, Denver, CO 80204






















