






















































- 4 bd
- 2.5 ba
- 3,057 sqft
1543 Glencoe St, Denver, CO 80220
- Multi-Family
- $402.36/sqft
- East facing
- 0.07-acre lot
New Homes for Sale Near 1543 Glencoe St, Denver, CO 80220
About this Home
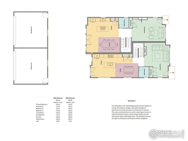
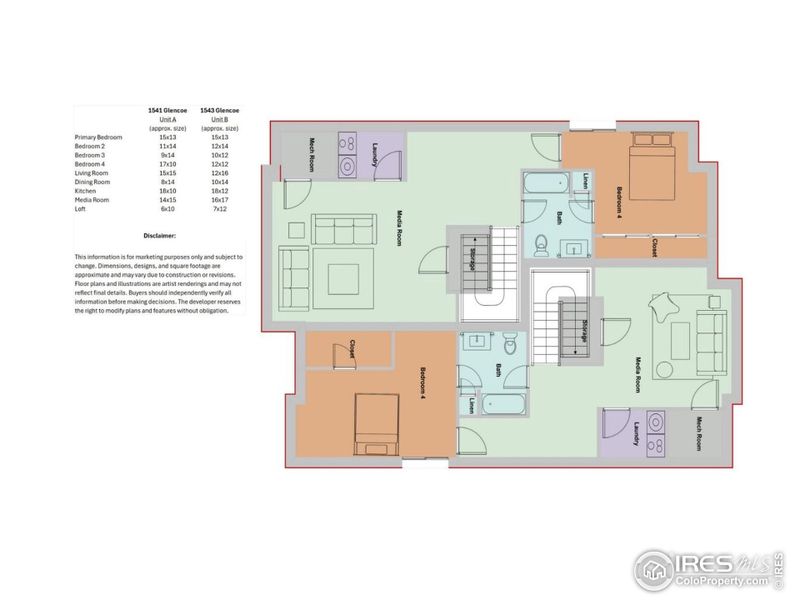
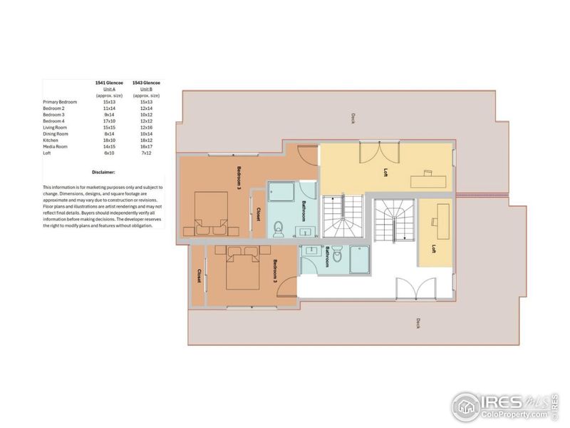
Experience the energy of South Park Hill, one of Denver's most desirable neighborhoods known for its lush, tree-lined streets and its enviable location near City Park. This newly built duplex offers refined urban living, featuring a private rooftop deck with peaceful mountain views-the perfect spot to start your day with coffee or unwind as the sun sets. The home combines city convenience with neighborhood charm, placing you near walking trails, Jazz in the Park, and popular local spots like Jett Sushi and Lucina. Downtown Denver is just minutes away. Inside, the open-concept main level offers seamless flow and modern elegance. The spacious living room centers around a sleek fireplace and transitions into a generous dining area. The chef's kitchen impresses with a statement island, quartz countertops, and Thermador appliances-including a vent hood and pot filler designed with the culinary enthusiast in mind. French doors open to a fenced backyard with a private patio and grassy area-ideal for relaxing, entertaining, or giving pets space to roam. Upstairs, you'll find a serene primary suite complete with a spa-like five-piece bath and a walk-in closet. A second bedroom, full bath, and a convenient laundry room complete this level. The top floor adds extra versatility with a bright bonus room, an additional bedroom and bath, and access to the rooftop deck-your front-row seat to mountain sunsets. A fully finished basement extends your living space with a media room, fourth bedroom, full bath, and a second laundry area-ideal for guests or multigenerational living. Located near the Denver Zoo, the Museum of Nature & Science, top schools, charming cafes, and Marczyk Fine Foods, this home offers a well-connected lifestyle. A two-car garage, prewired for EV charging, and a home warranty add extra peace of mind. Looking for a similar layout? Be sure to check out 1541 Glencoe.
Compass - Boulder, MLS 1043300
Information last verified by Jome: Wednesday at 5:07 AM (February 4, 2026)
Home details
- Property status:
- Sold
- Neighborhood:
- South Park Hill
- Lot size (acres):
- 0.07
- Size:
- 3,057 sqft
- Stories:
- 3+
- Beds:
- 4
- Baths:
- 2
- Half baths:
- 1
- Garage spaces:
- 2
- Facing direction:
- East
Construction details
- Year Built:
- 2025
- Roof:
- Metal Roofing, Rubber Roofing
Home features & finishes
- Appliances:
- Sprinkler System
- Construction Materials:
- Cement
- Cooling:
- Ceiling Fan(s)Central Air
- Flooring:
- Wood FlooringCarpet FlooringTile Flooring
- Garage/Parking:
- Door OpenerGarage
- Interior Features:
- Ceiling-HighWalk-In ClosetPantryLoft
- Kitchen:
- DishwasherMicrowave OvenRefrigeratorDisposalGas CooktopQuartz countertopKitchen IslandCooktopGas OvenKitchen Range
- Laundry facilities:
- Laundry Facilities On Upper LevelDryerWasher
- Lighting:
- Exterior Lighting
- Property amenities:
- BasementBalconyDeckLandscapingElectric FireplacePatioFireplaceYard
- Rooms:
- KitchenDining RoomLiving RoomOpen Concept FloorplanSeparate Living and Dining
- Security system:
- Smoke DetectorCarbon Monoxide Detector
Room details
Master Bedroom
Kitchen
Dining Room
Utility information
- Heating:
- Water Heater, Forced Air Heating, Tankless water heater
- Utilities:
- Natural Gas Available
Community amenities
- Mountain(s) View
Neighborhood
Home address
- Neighborhood:
- South Park Hill
- City:
- Denver
Schools in Denver County School District 1
GreatSchools’ Summary Rating calculation is based on 4 of the school’s themed ratings, including test scores, student/academic progress, college readiness, and equity. This information should only be used as a reference. Jome is not affiliated with GreatSchools and does not endorse or guarantee this information. Please reach out to schools directly to verify all information and enrollment eligibility. Data provided by GreatSchools.org © 2025
Places of interest
Getting around
6 nearby routes: 6 bus, 0 rail, 0 otherAir quality
Noise level
A Soundscore™ rating is a number between 50 (very loud) and 100 (very quiet) that tells you how loud a location is due to environmental noise.
Natural hazards risk
Provided by FEMA
Financials
Nearby communities in Denver
Homes in Denver Neighborhoods
- West Colfax
- Sloan Lake
- Highland
- Berkeley
- Cherry Creek
- Five Points
- Washington Park
- Dia
- Virginia Village
- Harvey Park South
- Overland
- Rosedale
- University Park
- University Hills
- Central Business District
- Sunnyside
- Belcaro
- Villa Park
- Hilltop
- Cory - Merrill
- Hale
- Jefferson Park
- University
- Windsor
- Montclair
- City Park West
- Westwood
- Northeast Park Hill
- Gateway - Green Valley Ranch
- Regis
- Clayton
- Washington Park West
- Skyland
- Platt Park
- South Park Hill
- Cole
- Chaffee Park
- Lowry Field
- West Highland
- Stapleton
Recently added communities in this area
Other Builders in Denver, CO
Nearby sold homes
New homes in nearby cities
More New Homes in Denver, CO
Compass - Boulder, MLS 1043300
Information source: Information and Real Estate Services, LLC. Provided for limited non-commercial use only under IRES Rules © 2025 IRES, LLC. Listing information is provided exclusively for consumers' personal, non-commercial use and may not be used for any purpose other than to identify prospective properties consumers may be interested in purchasing. Information deemed reliable but not guaranteed by the MLS. Compensation information displayed on listing details is only applicable to other participants and subscribers of the source MLS.
Read moreLast checked Apr 1, 12:20 am
- Jome
- New homes search
- Colorado
- Denver Metropolitan Area
- Denver County
- Denver
- 1543 Glencoe St, Denver, CO 80220






















































