














Book your tour. Save an average of $18,473. We'll handle the rest.
We collect exclusive builder offers, book your tours, and support you from start to housewarming.
- Confirmed tours
- Get matched & compare top deals
- Expert help, no pressure
- No added fees
Estimated value based on Jome data, T&C apply
























Why tour with Jome?
- No pressure toursTour at your own pace with no sales pressure
- Expert guidanceGet insights from our home buying experts
- Exclusive accessSee homes and deals not available elsewhere
Jome is featured in
- Single-Family
- Quick move-in
- $367.79/sqft
- $1,140/annual HOA
Home description
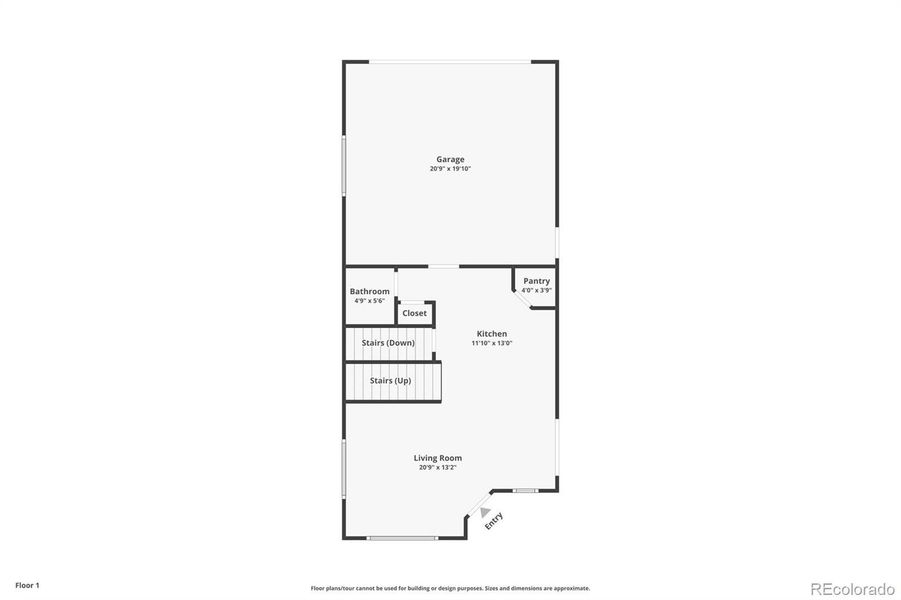
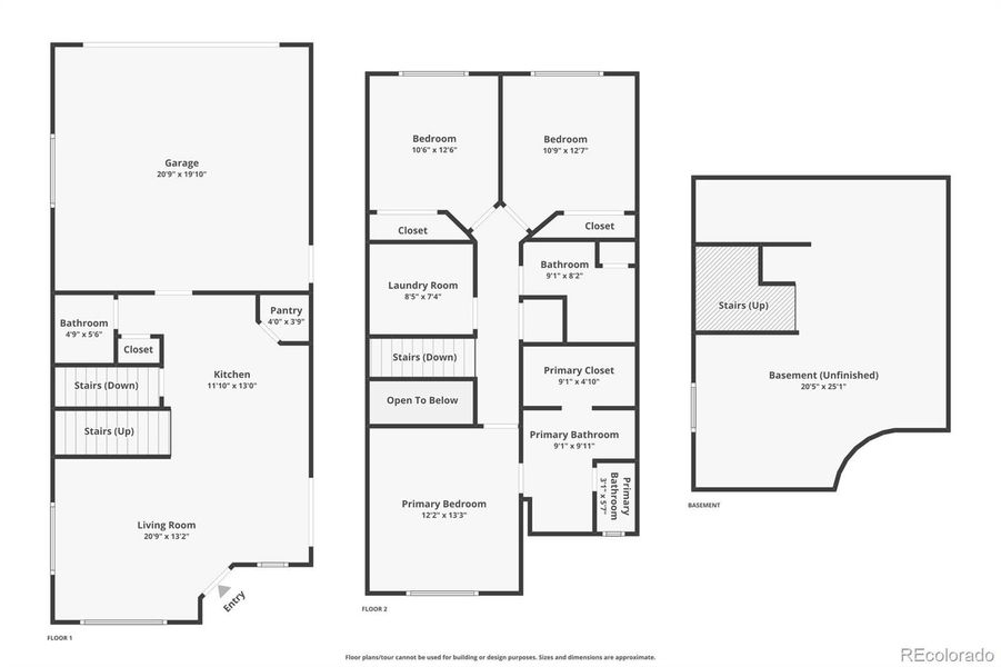
Terrific Single Family Located Near Pioneer Park in HOT Berthoud! $5,000 Seller Credit! This Stunning 2024 CB Signature Homes “Jackson” Model! Built in 2025 and Enhanced w/ Over $20,000 In Post-Closing Improvements, This Move-In-Ready Home Is A Rare Opportunity In The Sold-Out Fickel Farm Community. Bright & Open Floor Plan w/ High Ceilings, Luxury Vinyl Flooring, & Abundant Natural Light. The Kitchen Is The Heart Of The Home, Featuring A Large Granite Island, Upgraded Cabinetry, Stainless Appliances, & A Spacious Pantry. The Open Dining & Living Areas Flow Seamlessly To The Backyard—Perfect For Entertaining Or Enjoying Quiet Colorado Evenings. Upstairs, The Primary Suite Offers A Walk-In Closet & Elegant En-Suite Bath w/ Dual Vanities. Two Additional Bedrooms, A Full Hall Bath, & Convenient Upper-Level Laundry Complete The Layout. The Unfinished Basement Provides Endless Possibilities—Ready To Add More Livable Square Footage, A Gym, Or The Ultimate Man Cave! The Attached Two-Car Garage Includes An EV Charging Station. Outside, The Sellers Have Already Invested In Full Fencing, Sprinklers, & Lush Backyard Sod, Creating A Private Oasis Ready For Family Fun. Located Steps From Pioneer Park, w/ Community Trails & Open Spaces Just Around The Corner, This Home Is Ideal For Families & Outdoor Enthusiasts Alike. Why Wait Or Settle For A Paired Home At Nearly The Same Price? Enjoy A Detached Single-Family Residence w/ Upgraded Finishes, Modern Systems, & Thoughtful Owner Enhancements—Without The Hassle Of Building. Don’t Miss This Exceptional Value In Fickel Farm, Where Prices Are Bound To Go UP!!! Schedule Your Showing Today!
Corriere Group LLC, MLS REC6388964
May also be listed on the CB Signature Homes website
Information last verified by Jome: Yesterday at 10:03 AM (February 27, 2026)
Book your tour. Save an average of $18,473. We'll handle the rest.
We collect exclusive builder offers, book your tours, and support you from start to housewarming.
- Confirmed tours
- Get matched & compare top deals
- Expert help, no pressure
- No added fees
Estimated value based on Jome data, T&C apply
Home details
- Property status:
- Move-in ready
- Lot size (acres):
- 0.13
- Size:
- 1,400 sqft
- Stories:
- 2
- Beds:
- 3
- Baths:
- 1
- Half baths:
- 1
- Garage spaces:
- 2
Construction details
- Builder Name:
- CB Signature Homes
- Year Built:
- 2024
- Roof:
- Roof Gutter, Composition Roofing
Home features & finishes
- Appliances:
- Sprinkler System
- Construction Materials:
- Wood FrameCementFrameStone
- Cooling:
- Central Air
- Flooring:
- Vinyl FlooringCarpet Flooring
- Foundation Details:
- Slab
- Garage/Parking:
- Door OpenerGarageAttached GarageCar Charging Stations
- Interior Features:
- Ceiling-HighWalk-In ClosetPantry
- Kitchen:
- DishwasherMicrowave OvenOvenRefrigeratorDisposalGranite countertopKitchen IslandKitchen RangeElectric Oven
- Laundry facilities:
- Laundry Facilities On Upper LevelDryerWasher
- Pets:
- Cat(s) Only AllowedDog(s) Only Allowed
- Property amenities:
- BasementLandscapingPatioYardPorch
- Rooms:
- KitchenOpen Concept Floorplan
- Security system:
- Smoke Detector
Room details
Kitchen
Dining Room
Living Room

Get a consultation with our New Homes Expert
- See how your home builds wealth
- Plan your home-buying roadmap
- Discover hidden gems
Utility information
- Heating:
- Forced Air Heating
- Utilities:
- Electricity Available, Natural Gas Available

Community details
Fickel Farm
by CB Signature Homes, Berthoud, CO
- 1 home
- 6 plans
- 1,075 - 1,409 sqft
View Fickel Farm details
Community amenities
- Mountain(s) View
Floor plans in Fickel Farm
About the builder - CB Signature Homes
Neighborhood
Home address
Schools in Thompson School District R-2J
- Grades PK-PKPublicberthoud early childhood1.0 mi950 massachusettsna
GreatSchools’ Summary Rating calculation is based on 4 of the school’s themed ratings, including test scores, student/academic progress, college readiness, and equity. This information should only be used as a reference. Jome is not affiliated with GreatSchools and does not endorse or guarantee this information. Please reach out to schools directly to verify all information and enrollment eligibility. Data provided by GreatSchools.org © 2025
Places of interest
Getting around
Air quality
Noise level
A Soundscore™ rating is a number between 50 (very loud) and 100 (very quiet) that tells you how loud a location is due to environmental noise.

Considering this home?
Our expert will guide your tour, in-person or virtual
Need more information?
Text or call (888) 488-9243
Financials
Estimated monthly payment
Let us help you find your dream home
How many bedrooms are you looking for?
Similar homes nearby
Recently added communities in this area
Nearby communities in Berthoud
New homes in nearby cities
More New Homes in Berthoud, CO
Corriere Group LLC, MLS REC6388964
The content relating to real estate for sale in this Web site comes in part from the Internet Data eXchange (“IDX”) program of METROLIST, INC., DBA RECOLORADO® Real estate listings held by brokers other than NewHomesMate LLC, DBA Jome are marked with the IDX Logo. This information is being provided for the consumers’ personal, non-commercial use and may not be used for any other purpose. All information subject to change and should be independently verified. This publication is designed to provide information with regard to the subject matter covered. It is displayed with the understanding that the publisher and authors are not engaged in rendering real estate, legal, accounting, tax, or other professional services and that the publisher and authors are not offering such advice in this publication. If real estate, legal, or other expert assistance is required, the services of a competent, professional person should be sought. The information contained in this publication is subject to change without notice. METROLIST, INC., DBA RECOLORADO MAKES NO WARRANTY OF ANY KIND WITH REGARD TO THIS MATERIAL, INCLUDING, BUT NOT LIMITED TO, THE IMPLIED WARRANTIES OF MERCHANTABILITY AND FITNESS FOR A PARTICULAR PURPOSE. METROLIST, INC., DBA RECOLORADO SHALL NOT BE LIABLE FOR ERRORS CONTAINED HEREIN OR FOR ANY DAMAGES IN CONNECTION WITH THE FURNISHING, PERFORMANCE, OR USE OF THIS MATERIAL. PUBLISHER'S NOTICE: All real estate advertised herein is subject to the Federal Fair Housing Act and the Colorado Fair Housing Act, which Acts make it illegal to make or publish any advertisement that indicates any preference, limitation, or discrimination based on race, color, religion, sex, handicap, familial status, or national origin. METROLIST, INC., DBA RECOLORADO will not knowingly accept any advertising for real estate that is in violation of the law. All persons are hereby informed that all dwellings advertised are available on an equal opportunity basis. © 2025 METROLIST, INC., DBA RECOLORADO® - All Rights Reserved. 6455 S. Yosemite St., Suite 500, Greenwood Village, CO 80111 USA. ALL RIGHTS RESERVED WORLDWIDE. No part of this publication may be reproduced, adapted, translated, stored in a retrieval system or transmitted in any form or by any means, electronic, mechanical, photocopying, recording, or otherwise, without the prior written permission of the publisher. The information contained herein including but not limited to all text, photographs, digital images, virtual tours, may be seeded and monitored for protection and tracking.
Read moreLast checked Feb 27, 10:00 pm
- Jome
- New homes search
- Colorado
- Denver Metropolitan Area
- Larimer County
- Berthoud
- Fickel Farm
- 339 Fickel Farm Trl, Berthoud, CO 80513































