




Book your tour. Save an average of $18,473. We'll handle the rest.
- Confirmed tours
- Get matched & compare top deals
- Expert help, no pressure
- No added fees
Estimated value based on Jome data, T&C apply
- 4 bd
- 2.5 ba
- 2,680 sqft
45917 Bluebird Ave, Bennett, CO 80102
Why tour with Jome?
- No pressure toursTour at your own pace with no sales pressure
- Expert guidanceGet insights from our home buying experts
- Exclusive accessSee homes and deals not available elsewhere
Jome is featured in
- Single-Family
- 411 days on Jome
Home description
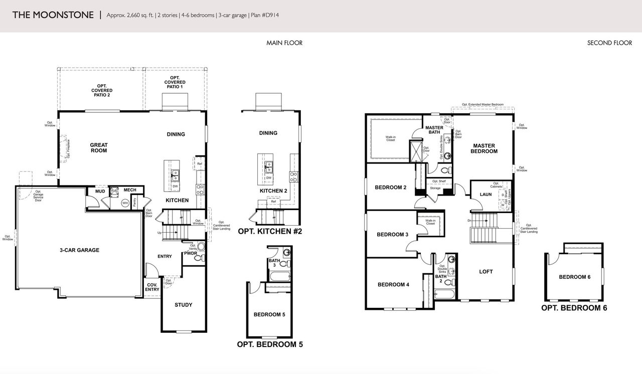
Discover the Moonstone in Horizon Village, an outstanding community designed by Richmond American Homes in the city of Bennett. This newly constructed home uses high-quality materials and finishes to create a luxurious ambiance you'll love coming home to for years.
Located at 45917 Bluebird Avenue, Bennett, CO 80102 in the prestigious Horizon Village, you'll find a collection of other new construction homes created with various layouts, along with a welcoming community of neighbors and a variety of amenities to enrich your lifestyle.
The Moonstone is a beautiful 2-story home with 4 spacious bedrooms, and 2.5 modern bathrooms spread over 2,680 square feet. This home also includes a garage with 3 spaces for parking vehicles, extra storage, or hobby essentials.
You'll love the convenience of being close to fantastic shopping, top-notch dining options, entertainment, and opportunities for outdoor adventures. Plus, Horizon Village is zoned to the reputable Bennett School District 29-J, providing easy access to the best schools in the area.
Does Moonstone sound like your dream home? Work with Jome to make it a reality. Contact a New Construction Specialist to take the first step towards a lifestyle of convenience and luxury in this wonderfully located crafted home.
May also be listed on the Richmond American Homes website
Information last verified by Jome: Monday at 7:20 PM (November 18, 2024)
Home highlights
Secure, family-friendly base with top-rated Aurora schools and easy access to Denver's amenities.
Book your tour. Save an average of $18,473. We'll handle the rest.
We collect exclusive builder offers, book your tours, and support you from start to housewarming.
- Confirmed tours
- Get matched & compare top deals
- Expert help, no pressure
- No added fees
Estimated value based on Jome data, T&C apply
Home details
- Property status:
- Not available
- Size:
- 2,680 sqft
- Stories:
- 2
- Beds:
- 4
- Baths:
- 2.5
- Garage spaces:
- 3
Construction details
- Builder Name:
- Richmond American Homes
Home features & finishes
- Garage/Parking:
- GarageAttached Garage
- Interior Features:
- Walk-In Closet
- Laundry facilities:
- Utility/Laundry Room
- Property amenities:
- Porch
- Rooms:
- KitchenDining RoomFamily RoomOpen Concept FloorplanPrimary Bedroom Upstairs

Community details
Horizon Village
by Richmond American Homes, Bennett, CO
- 3 homes
- 5 plans
- 1,740 - 2,695 sqft
View Horizon Village details
More homes in Horizon Village
Floor plans in Horizon Village
About the builder - Richmond American Homes
Neighborhood
Home address
Schools in Bennett School District 29-J
- Grades PK-PKPublicbennett preschool0.3 mi805 washington wayna
GreatSchools’ Summary Rating calculation is based on 4 of the school’s themed ratings, including test scores, student/academic progress, college readiness, and equity. This information should only be used as a reference. Jome is not affiliated with GreatSchools and does not endorse or guarantee this information. Please reach out to schools directly to verify all information and enrollment eligibility. Data provided by GreatSchools.org © 2025
Places of interest
Getting around
Natural hazards risk
Climate hazards can impact homes and communities, with risks varying by location. These scores reflect the potential impact of natural disasters and climate-related risks on Adams County
Provided by FEMA

Considering this home?
Our expert will guide your tour, in-person or virtual
Need more information?
Text or call (888) 486-2818
Financials
Similar homes nearby
Recently added communities in this area
Nearby communities in Bennett
New homes in nearby cities
More New Homes in Bennett, CO
- Jome
- New homes search
- Colorado
- Denver Metropolitan Area
- Adams County
- Bennett
- Horizon Village
- 45917 Bluebird Ave, Bennett, CO 80102
































