



Book your tour. Save an average of $18,473. We'll handle the rest.
- Confirmed tours
- Get matched & compare top deals
- Expert help, no pressure
- No added fees
Estimated value based on Jome data, T&C apply
- 5 bd
- 3.5 ba
- 4,140 sqft
7384 S Waterloo Way, Aurora, CO 80016
Why tour with Jome?
- No pressure toursTour at your own pace with no sales pressure
- Expert guidanceGet insights from our home buying experts
- Exclusive accessSee homes and deals not available elsewhere
Jome is featured in
- Single-Family
- $205.3/sqft
- $1,620/annual HOA
- 515 days on Jome
Home description
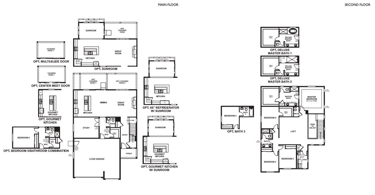
Discover this must-see Yorktown home. Included features: a welcoming porch; a large great room with a fireplace; a gourmet kitchen offering quartz countertops, a center island, and stainless-steel appliances; a quiet study; an airy loft; an impressive primary suite showcasing a spacious walk-in closet and a private bath; a convenient laundry; a finished basement boasting a bedroom, a bathroom, a storage area and an expansive rec room; a mudroom and a 2-car garage.
May also be listed on the Richmond American Homes website
Information last verified by Jome: Friday at 12:38 PM (November 8, 2024)
Home highlights
Secure, family-friendly base with top-rated Aurora schools and easy access to Denver's amenities.
Book your tour. Save an average of $18,473. We'll handle the rest.
We collect exclusive builder offers, book your tours, and support you from start to housewarming.
- Confirmed tours
- Get matched & compare top deals
- Expert help, no pressure
- No added fees
Estimated value based on Jome data, T&C apply
Home details
- Property status:
- Not available
- Size:
- 4,140 sqft
- Stories:
- 2
- Beds:
- 5
- Baths:
- 3.5
- Garage spaces:
- 2
Construction details
- Builder Name:
- Richmond American Homes
Home features & finishes
- Garage/Parking:
- GarageAttached Garage
- Interior Features:
- Walk-In Closet
- Laundry facilities:
- Utility/Laundry Room
- Property amenities:
- Porch
- Rooms:
- Primary Bedroom On MainKitchenDining RoomFamily RoomPrimary Bedroom DownstairsPrimary Bedroom Upstairs

Get a consultation with our New Homes Expert
- See how your home builds wealth
- Plan your home-buying roadmap
- Discover hidden gems

Community details
Mead at Southshore
by Richmond American Homes, Aurora, CO
View Mead at Southshore details
About the builder - Richmond American Homes
Neighborhood
Home address
Schools in Cherry Creek School District 5
GreatSchools’ Summary Rating calculation is based on 4 of the school’s themed ratings, including test scores, student/academic progress, college readiness, and equity. This information should only be used as a reference. Jome is not affiliated with GreatSchools and does not endorse or guarantee this information. Please reach out to schools directly to verify all information and enrollment eligibility. Data provided by GreatSchools.org © 2025
Places of interest
Getting around
Air quality
Noise level
A Soundscore™ rating is a number between 50 (very loud) and 100 (very quiet) that tells you how loud a location is due to environmental noise.
Natural hazards risk
Climate hazards can impact homes and communities, with risks varying by location. These scores reflect the potential impact of natural disasters and climate-related risks on Arapahoe County
Provided by FEMA

Considering this home?
Our expert will guide your tour, in-person or virtual
Need more information?
Text or call (888) 486-2818
Financials
Let us help you find your dream home
How many bedrooms are you looking for?
Similar homes nearby
Recently added communities in this area
Nearby communities in Aurora
New homes in nearby cities
More New Homes in Aurora, CO
- Jome
- New homes search
- Colorado
- Denver Metropolitan Area
- Arapahoe County
- Aurora
- Mead at Southshore
- 7384 S Waterloo Way, Aurora, CO 80016



























