














Book your tour. Save an average of $18,473. We'll handle the rest.
- Confirmed tours
- Get matched & compare top deals
- Expert help, no pressure
- No added fees
Estimated value based on Jome data, T&C apply


































- 2 bd
- 1.5 ba
- 1,356 sqft
5128 W 26Th Ave, Unit 311, Denver, CO 80212
Why tour with Jome?
- No pressure toursTour at your own pace with no sales pressure
- Expert guidanceGet insights from our home buying experts
- Exclusive accessSee homes and deals not available elsewhere
Jome is featured in
- Townhouse
- Quick move-in
- $553.1/sqft
- $432/annual HOA
Home description
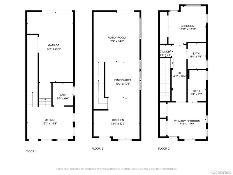
Welcome to this brand-new luxury townhome offering the best of Denver living with stunning views of Sloan’s Lake, the Rocky Mountains, and the vibrant downtown skyline. Designed across three levels with an expansive fourth-floor rooftop deck, this home blends modern style with thoughtful functionality, creating the perfect balance for both entertaining and everyday living. The main level opens with a versatile office highlighted by luxury vinyl flooring and recessed lighting—an ideal space for working from home or creative pursuits—paired with a stylish powder bath for convenience. Upstairs, the second level is the heart of the home, featuring a bright open-concept design where the family room and dining area flow seamlessly into the gourmet kitchen. The kitchen showcases quartz countertops, stainless steel Samsung appliances, a striking tile backsplash, and soft-close cabinetry, all illuminated by recessed lighting for a sleek and inviting atmosphere. On the third level, the private primary suite offers a serene retreat with dual closets, recessed lighting, and a spa-inspired bathroom complete with light gray soft-close cabinetry, quartz countertops, black accents, and a beautifully tiled walk-in shower. A secondary bedroom with an oversized closet also enjoys its own full en suite bath with tub and quartz-topped vanity, creating a perfect guest suite or secondary living space. A conveniently located laundry area completes this floor. Crowning this remarkable residence is the expansive rooftop deck, where panoramic views stretch from Sloan’s Lake to the Front Range and across the glittering downtown skyline. Whether hosting friends, enjoying sunrise coffee, or watching the sun dip behind the mountains, this rooftop defines Denver living at its finest. Just steps from Sloan’s Lake, trails, and green spaces, and minutes from Denver’s best dining, shopping, and nightlife, this townhome offers a lifestyle that is truly unmatched. WELCOME HOME!
Coldwell Banker Realty 18, MLS REC8564899
May also be listed on the RedT Homes website
Information last verified by Jome: Today at 10:05 AM (December 5, 2025)
Home highlights
Popular Denver lake offering mountain views, trails, and a vibrant community near the city’s westside neighborhoods.
Special attention is paid to environmental friendliness, energy efficiency, water use and materials.
Book your tour. Save an average of $18,473. We'll handle the rest.
We collect exclusive builder offers, book your tours, and support you from start to housewarming.
- Confirmed tours
- Get matched & compare top deals
- Expert help, no pressure
- No added fees
Estimated value based on Jome data, T&C apply
Home details
- Property status:
- Move-in ready
- Neighborhood:
- Sloan Lake
- Lot size (acres):
- 0.04
- Size:
- 1,356 sqft
- Stories:
- 3+
- Beds:
- 2
- Baths:
- 1.5
- Garage spaces:
- 1
- Fence:
- No Fence
- Facing direction:
- North
Construction details
- Builder Name:
- RedT Homes
- Year Built:
- 2024
- Roof:
- Membrane Roofing
Home features & finishes
- Construction Materials:
- CementStone
- Cooling:
- Ceiling Fan(s)Central Air
- Flooring:
- Wood FlooringVinyl FlooringCarpet FlooringTile Flooring
- Foundation Details:
- Structural
- Garage/Parking:
- GarageAttached Garage
- Interior Features:
- Foyer
- Kitchen:
- DishwasherMicrowave OvenOvenRefrigeratorDisposalQuartz countertopSelf Cleaning OvenCook Top
- Laundry facilities:
- Laundry Facilities In Unit
- Lighting:
- Exterior LightingLighting
- Property amenities:
- Deck
- Rooms:
- Open Concept Floorplan
- Security system:
- Carbon Monoxide Detector
Utility information
- Heating:
- Forced Air Heating
- Utilities:
- Electricity Available, Phone Available, Cable Available

Community details
Sloan's View Townhomes
by RedT Homes, Denver, CO
- 4 homes
- 1,356 - 1,606 sqft
View Sloan's View Townhomes details
Community amenities
- City View
- Waterfront View
- Mountain(s) View
More homes in Sloan's View Townhomes
About the builder - RedT Homes
Neighborhood
Home address
Schools in Denver County School District 1
GreatSchools’ Summary Rating calculation is based on 4 of the school’s themed ratings, including test scores, student/academic progress, college readiness, and equity. This information should only be used as a reference. Jome is not affiliated with GreatSchools and does not endorse or guarantee this information. Please reach out to schools directly to verify all information and enrollment eligibility. Data provided by GreatSchools.org © 2025
Places of interest
Getting around
3 nearby routes: 3 bus, 0 rail, 0 otherAir quality
Noise level
A Soundscore™ rating is a number between 50 (very loud) and 100 (very quiet) that tells you how loud a location is due to environmental noise.
Natural hazards risk
Climate hazards can impact homes and communities, with risks varying by location. These scores reflect the potential impact of natural disasters and climate-related risks on Denver County
Provided by FEMA

Considering this home?
Our expert will guide your tour, in-person or virtual
Need more information?
Text or call (888) 486-2818
Financials
Estimated monthly payment
Similar homes nearby
Recently added communities in this area
Nearby communities in Denver
New homes in nearby cities
More New Homes in Denver, CO
Coldwell Banker Realty 18, MLS REC8564899
The content relating to real estate for sale in this Web site comes in part from the Internet Data eXchange (“IDX”) program of METROLIST, INC., DBA RECOLORADO® Real estate listings held by brokers other than NewHomesMate LLC, DBA Jome are marked with the IDX Logo. This information is being provided for the consumers’ personal, non-commercial use and may not be used for any other purpose. All information subject to change and should be independently verified. This publication is designed to provide information with regard to the subject matter covered. It is displayed with the understanding that the publisher and authors are not engaged in rendering real estate, legal, accounting, tax, or other professional services and that the publisher and authors are not offering such advice in this publication. If real estate, legal, or other expert assistance is required, the services of a competent, professional person should be sought. The information contained in this publication is subject to change without notice. METROLIST, INC., DBA RECOLORADO MAKES NO WARRANTY OF ANY KIND WITH REGARD TO THIS MATERIAL, INCLUDING, BUT NOT LIMITED TO, THE IMPLIED WARRANTIES OF MERCHANTABILITY AND FITNESS FOR A PARTICULAR PURPOSE. METROLIST, INC., DBA RECOLORADO SHALL NOT BE LIABLE FOR ERRORS CONTAINED HEREIN OR FOR ANY DAMAGES IN CONNECTION WITH THE FURNISHING, PERFORMANCE, OR USE OF THIS MATERIAL. PUBLISHER'S NOTICE: All real estate advertised herein is subject to the Federal Fair Housing Act and the Colorado Fair Housing Act, which Acts make it illegal to make or publish any advertisement that indicates any preference, limitation, or discrimination based on race, color, religion, sex, handicap, familial status, or national origin. METROLIST, INC., DBA RECOLORADO will not knowingly accept any advertising for real estate that is in violation of the law. All persons are hereby informed that all dwellings advertised are available on an equal opportunity basis. © 2025 METROLIST, INC., DBA RECOLORADO® - All Rights Reserved. 6455 S. Yosemite St., Suite 500, Greenwood Village, CO 80111 USA. ALL RIGHTS RESERVED WORLDWIDE. No part of this publication may be reproduced, adapted, translated, stored in a retrieval system or transmitted in any form or by any means, electronic, mechanical, photocopying, recording, or otherwise, without the prior written permission of the publisher. The information contained herein including but not limited to all text, photographs, digital images, virtual tours, may be seeded and monitored for protection and tracking.
Read moreLast checked Dec 5, 10:00 am
- Home
- New homes
- Colorado
- Denver Metropolitan Area
- Denver County
- Denver
- Sloan's View Townhomes
- 5128 W 26Th Ave, Unit 311, Denver, CO 80212
























