







Book your tour. Save an average of $18,473. We'll handle the rest.
We collect exclusive builder offers, book your tours, and support you from start to housewarming.
- Confirmed tours
- Get matched & compare top deals
- Expert help, no pressure
- No added fees
Estimated value based on Jome data, T&C apply















Why tour with Jome?
- No pressure toursTour at your own pace with no sales pressure
- Expert guidanceGet insights from our home buying experts
- Exclusive accessSee homes and deals not available elsewhere
Jome is featured in
- Single-Family
- Under construction
- $228.65/sqft
- $110/monthly HOA
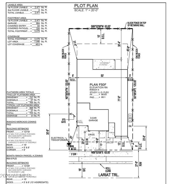
Home description
Brand New Coming Feb 26' - LOWER PAYMENTS & BIG SAVINGS! Now offering all closing costs paid and rate buydown incentives for a short time! This 3-bedroom, 2.5-bath home includes a dedicated office, a 3-car wide garage and over a 30ft backyard. The gourmet kitchen offers quartz countertops, backsplash, 42'' upper cabinets, 36'' gas cooktop, wall oven & microwave. Plank tile flows through main living areas. The primary suite features a tiled shower, walk-in closet, and raised-height vanities in all baths. Outside, enjoy community pickleball, ping pong, parks, walking paths and BBQ areas—just minutes from top shopping, dining, and entertainment. Photos not of actual home but same floorplan.
Mattamy Arizona, LLC, MLS 6934652
May also be listed on the Mattamy Homes website
Information last verified by Jome: Yesterday at 11:42 AM (March 31, 2026)
Home highlights
Luke Air Force Base in Glendale, Arizona, provides secure housing, top-rated schools, and abundant amenities, making it an ideal location for military families.
Book your tour. Save an average of $18,473. We'll handle the rest.
We collect exclusive builder offers, book your tours, and support you from start to housewarming.
- Confirmed tours
- Get matched & compare top deals
- Expert help, no pressure
- No added fees
Estimated value based on Jome data, T&C apply
Home details
- Property status:
- Under construction
- Lot size (acres):
- 0.17
- Size:
- 2,471 sqft
- Stories:
- 1
- Beds:
- 3
- Baths:
- 2
- Half baths:
- 1
- Garage spaces:
- 3
- Fence:
- Block Fence
Construction details
- Builder Name:
- Mattamy Homes
- Completion Date:
- February, 2026
- Year Built:
- 2026
- Roof:
- Concrete Roofing, Tile Roofing
Home features & finishes
- Appliances:
- Water SoftenerSprinkler System
- Construction Materials:
- StuccoWood Frame
- Cooling:
- Central Air
- Flooring:
- Carpet FlooringTile Flooring
- Garage/Parking:
- Door OpenerGarageAttached Garage
- Home amenities:
- ENERGY STAR CertifiedGreen Construction
- Interior Features:
- Ceiling-HighWalk-In ClosetPantryBlindsBreakfast BarWalk-In PantryDouble Vanity
- Kitchen:
- Gas CooktopQuartz countertopKitchen Island
- Laundry facilities:
- DryerWasherUtility/Laundry Room
- Property amenities:
- PatioFireplaceSmart Home SystemPorch
- Rooms:
- Flex RoomPrimary Bedroom On MainKitchenOffice/StudyDining RoomFamily RoomBreakfast AreaOpen Concept FloorplanPrimary Bedroom Downstairs

Get a consultation with our New Homes Expert
- See how your home builds wealth
- Plan your home-buying roadmap
- Discover hidden gems
Utility information
- Heating:
- Gas Heating

Community details
Miravida
by Mattamy Homes, Surprise, AZ
- 22 homes
- 11 plans
- 1,868 - 3,324 sqft
View Miravida details
Community amenities
- Playground
- Walking, Jogging, Hike Or Bike Trails
- Pickleball Court
More homes in Miravida
- Home at address 25706 N 148Th Dr, Surprise, AZ 85387

Ash
$464,999
- 3 bd
- 2 ba
- 1,868 sqft
25706 N 148Th Dr, Surprise, AZ 85387
- Home at address 25766 N 148Th Dr, Surprise, AZ 85387

Ash
$474,999
- 3 bd
- 2 ba
- 1,868 sqft
25766 N 148Th Dr, Surprise, AZ 85387
- Home at address 25728 N 148Th Dr, Surprise, AZ 85387

Dove
$484,999
- 3 bd
- 2 ba
- 2,105 sqft
25728 N 148Th Dr, Surprise, AZ 85387
- Home at address 14831 W Honeysuckle Dr, Surprise, AZ 85387

Dove
$497,229
- 3 bd
- 2 ba
- 2,105 sqft
14831 W Honeysuckle Dr, Surprise, AZ 85387
- Home at address 14837 W Honeysuckle Dr, Surprise, AZ 85387

Dove
$499,999
- 3 bd
- 2 ba
- 2,105 sqft
14837 W Honeysuckle Dr, Surprise, AZ 85387
- Home at address 14798 W Honeysuckle Dr, Surprise, AZ 85387

Dove
$499,999
- 3 bd
- 2 ba
- 2,105 sqft
14798 W Honeysuckle Dr, Surprise, AZ 85387
Floor plans in Miravida
About the builder - Mattamy Homes

- 122communities on Jome
- 1,261homes on Jome
Neighborhood
Home address
Schools in Dysart Unified District
GreatSchools’ Summary Rating calculation is based on 4 of the school’s themed ratings, including test scores, student/academic progress, college readiness, and equity. This information should only be used as a reference. Jome is not affiliated with GreatSchools and does not endorse or guarantee this information. Please reach out to schools directly to verify all information and enrollment eligibility. Data provided by GreatSchools.org © 2025
Places of interest
Getting around
Air quality

Considering this home?
Our expert will guide your tour, in-person or virtual
Need more information?
Text or call (888) 545-5198
Financials
Estimated monthly payment
Let us help you find your dream home
How many bedrooms are you looking for?
Similar homes nearby
Recently added communities in this area
Nearby communities in Surprise
New homes in nearby cities
More New Homes in Surprise, AZ
Mattamy Arizona, LLC, MLS 6934652
All information should be verified by the recipient and none is guaranteed as accurate by ARMLS
Read moreLast checked Apr 1, 11:00 am
- Jome
- New homes search
- Arizona
- Phoenix Metropolitan Area
- Maricopa County
- Surprise
- Miravida
- 14857 W Lariat Ln, Surprise, AZ 85387

































