









































- 3 bd
- 2 ba
- 1,400 sqft
3050 E Barrel Race Rd, San Tan Valley, AZ 85140
- Single-Family
- $284.1/sqft
- $90/monthly HOA
- South facing
New Homes for Sale Near 3050 E Barrel Race Rd, San Tan Valley, AZ 85140
About this Home
Seller will provide a credit towards a rate buydown and closing costs with preferred lender. Ask us how to save thousands over the life of your loan. Wales Ranch is a new master-planned community in a great location in SanTan Valley, AZ. Residents here enjoy a wide range of exclusive onsite amenities including a playground, pickleball and other sports courts, large pond, green belts, and picnic areas— all perfect for fun and relaxation. This home comes fully equipped with all brand-new stainless steel kitchen appliances and features 17x17 tile flooring, beautiful quartz countertops, and modern white cabinetry, thoughtfully crafted for comfort and function. Renderings/photos are of actual home. A copy of the public report is available on the ADRE's website.
Lennar Sales Corp, MLS 6911526
May also be listed on the Lennar website
Information last verified by Jome: Yesterday at 11:40 AM (December 6, 2025)
Home details
- Property status:
- Sold
- Lot size (acres):
- 0.12
- Size:
- 1,400 sqft
- Stories:
- 1
- Beds:
- 3
- Baths:
- 2
- Garage spaces:
- 2
- Fence:
- Block Fence
- Facing direction:
- South
Construction details
- Builder Name:
- Lennar
- Completion Date:
- September, 2025
- Year Built:
- 2025
- Roof:
- Tile Roofing
Home features & finishes
- Construction Materials:
- StuccoWood Frame
- Flooring:
- Carpet FlooringTile Flooring
- Garage/Parking:
- GarageAttached Garage
- Interior Features:
- Walk-In ClosetFoyerPantryBreakfast BarDouble Vanity
- Kitchen:
- Granite countertop
- Laundry facilities:
- Utility/Laundry Room
- Property amenities:
- Patio
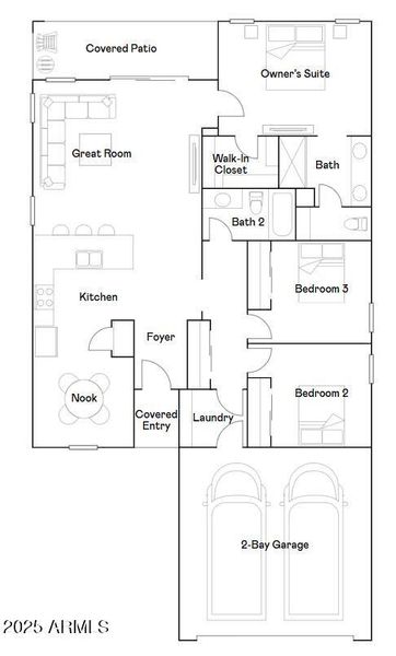
- Rooms:
- Great RoomPrimary Bedroom On MainKitchenNookBreakfast AreaOpen Concept FloorplanPrimary Bedroom Downstairs
Utility information
- Heating:
- Gas Heating
- Utilities:
- High Speed Internet Access

Community details
Wales Ranch: Premier
by Lennar, San Tan Valley, AZ
- 4 homes
- 1 plan
- 1,231 - 1,421 sqft
View Wales Ranch: Premier details
Community amenities
- Playground
- Lake Access
- Walking, Jogging, Hike Or Bike Trails
More homes in Wales Ranch: Premier
Floor plans in Wales Ranch: Premier
About the builder - Lennar
Neighborhood
Home address
- City:
- San Tan Valley
- County:
- Pinal
- Zip Code:
- 85140
Schools in J. O. Combs Unified School District
GreatSchools’ Summary Rating calculation is based on 4 of the school’s themed ratings, including test scores, student/academic progress, college readiness, and equity. This information should only be used as a reference. Jome is not affiliated with GreatSchools and does not endorse or guarantee this information. Please reach out to schools directly to verify all information and enrollment eligibility. Data provided by GreatSchools.org © 2025
Places of interest
Getting around
Noise level
A Soundscore™ rating is a number between 50 (very loud) and 100 (very quiet) that tells you how loud a location is due to environmental noise.
Natural hazards risk
Climate hazards can impact homes and communities, with risks varying by location. These scores reflect the potential impact of natural disasters and climate-related risks on Pinal County
Provided by FEMA
Financials
Nearby communities in San Tan Valley
Homes in San Tan Valley by Lennar
Recently added communities in this area
Other Builders in San Tan Valley, AZ
Nearby sold homes
New homes in nearby cities
More New Homes in San Tan Valley, AZ
Lennar Sales Corp, MLS 6911526
All information should be verified by the recipient and none is guaranteed as accurate by ARMLS
Read moreLast checked Dec 6, 11:00 pm
- Home
- New homes
- Arizona
- Phoenix Metropolitan Area
- Pinal County
- San Tan Valley
- Wales Ranch: Premier
- 3050 E Barrel Race Rd, San Tan Valley, AZ 85140




































































