



Book your tour. Save an average of $18,473. We'll handle the rest.
- Confirmed tours
- Get matched & compare top deals
- Expert help, no pressure
- No added fees
Estimated value based on Jome data, T&C apply
- 3 bd
- 3 ba
- 2,130 sqft
18734 W Westview Dr, Litchfield Park, AZ 85340
Why tour with Jome?
- No pressure toursTour at your own pace with no sales pressure
- Expert guidanceGet insights from our home buying experts
- Exclusive accessSee homes and deals not available elsewhere
Jome is featured in
- Single-Family
- Under construction
- $296.6/sqft
- $168/monthly HOA
Home description
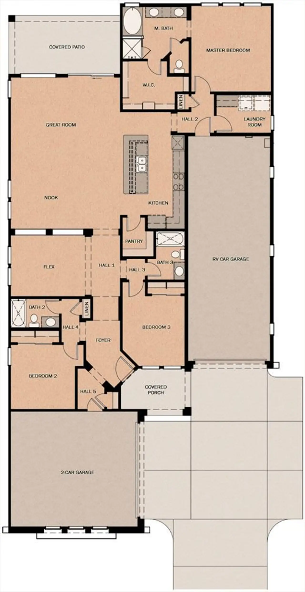
The Eureka at 2130 square feet is a single level, 3 bedrooms, 3 baths, flex room, a two car garage and an 14 by 38 foot RV garage. It can acomadate a 4th bedroom, home office, or dining room.
May also be listed on the Fulton Homes website
Information last verified by Jome: Tuesday at 2:39 PM (December 30, 2025)
Book your tour. Save an average of $18,473. We'll handle the rest.
We collect exclusive builder offers, book your tours, and support you from start to housewarming.
- Confirmed tours
- Get matched & compare top deals
- Expert help, no pressure
- No added fees
Estimated value based on Jome data, T&C apply
Home details
- Property status:
- Under construction
- Size:
- 2,130 sqft
- Stories:
- 1
- Beds:
- 3
- Baths:
- 3
- Garage spaces:
- 4
Construction details
- Builder Name:
- Fulton Homes
- Completion Date:
- November, 2025
Home features & finishes
- Garage/Parking:
- GarageAttached Garage
- Interior Features:
- Walk-In ClosetFoyerPantry
- Kitchen:
- Kitchen Island
- Laundry facilities:
- Utility/Laundry Room
- Property amenities:
- Covered Outdoor LivingPorch
- Rooms:
- Flex RoomPrimary Bedroom On MainKitchenEntry HallNookFamily RoomOpen Concept FloorplanPrimary Bedroom Downstairs

Get a consultation with our New Homes Expert
- See how your home builds wealth
- Plan your home-buying roadmap
- Discover hidden gems

Community details
North Shore
by Fulton Homes, Litchfield Park, AZ
- 7 homes
- 7 plans
- 2,130 - 3,532 sqft
View North Shore details
More homes in North Shore
- Home at address 18726 W Westview Dr, Litchfield Park, AZ 85340

Lincoln Beach
$603,120
- 3 bd
- 3 ba
- 2,485 sqft
18726 W Westview Dr, Litchfield Park, AZ 85340
- Home at address 18722 W Westview Dr, Litchfield Park, AZ 85340

Seal Rock
$607,315
- 3 bd
- 3 ba
- 2,493 sqft
18722 W Westview Dr, Litchfield Park, AZ 85340
- Home at address 18738 W Westview Dr, Litchfield Park, AZ 85340

North Bend
$628,285
- 3 bd
- 2.5 ba
- 2,420 sqft
18738 W Westview Dr, Litchfield Park, AZ 85340
- Home at address 18742 W Westview Dr, Litchfield Park, AZ 85340

Newport
$642,770
- 3 bd
- 3.5 ba
- 2,557 sqft
18742 W Westview Dr, Litchfield Park, AZ 85340
- Home at address 18742 W Westview St, Litchfield Park, AZ 85340

Newport
$651,338
- 4 bd
- 3.5 ba
- 2,717 sqft
18742 W Westview St, Litchfield Park, AZ 85340
- Home at address 18730 W Westview St, Litchfield Park, AZ 85340

Ocean Shores
$735,035
- 4 bd
- 3.5 ba
- 3,149 sqft
18730 W Westview St, Litchfield Park, AZ 85340
Floor plans in North Shore
About the builder - Fulton Homes
Neighborhood
Home address
- City:
- Litchfield Park
- County:
- Maricopa
- Zip Code:
- 85340
Schools in Agua Fria Union High School District
GreatSchools’ Summary Rating calculation is based on 4 of the school’s themed ratings, including test scores, student/academic progress, college readiness, and equity. This information should only be used as a reference. Jome is not affiliated with GreatSchools and does not endorse or guarantee this information. Please reach out to schools directly to verify all information and enrollment eligibility. Data provided by GreatSchools.org © 2025
Places of interest
Getting around
Air quality
Noise level
A Soundscore™ rating is a number between 50 (very loud) and 100 (very quiet) that tells you how loud a location is due to environmental noise.

Considering this home?
Our expert will guide your tour, in-person or virtual
Need more information?
Text or call (888) 486-2818
Financials
Estimated monthly payment
Let us help you find your dream home
How many bedrooms are you looking for?
Similar homes nearby
Recently added communities in this area
Nearby communities in Litchfield Park
New homes in nearby cities
More New Homes in Litchfield Park, AZ
- Jome
- New homes search
- Arizona
- Phoenix Metropolitan Area
- Maricopa County
- Litchfield Park
- North Shore
- 18734 W Westview Dr, Litchfield Park, AZ 85340



































