



Book your tour. Save an average of $18,473. We'll handle the rest.
- Confirmed tours
- Get matched & compare top deals
- Expert help, no pressure
- No added fees
Estimated value based on Jome data, T&C apply
- 3 bd
- 2.5 ba
- 1,680 sqft
2789 N Verrado Way, Buckeye, AZ 85396
Why tour with Jome?
- No pressure toursTour at your own pace with no sales pressure
- Expert guidanceGet insights from our home buying experts
- Exclusive accessSee homes and deals not available elsewhere
Jome is featured in
- Duplex
- $130/monthly HOA
- 578 days on Jome
Home description
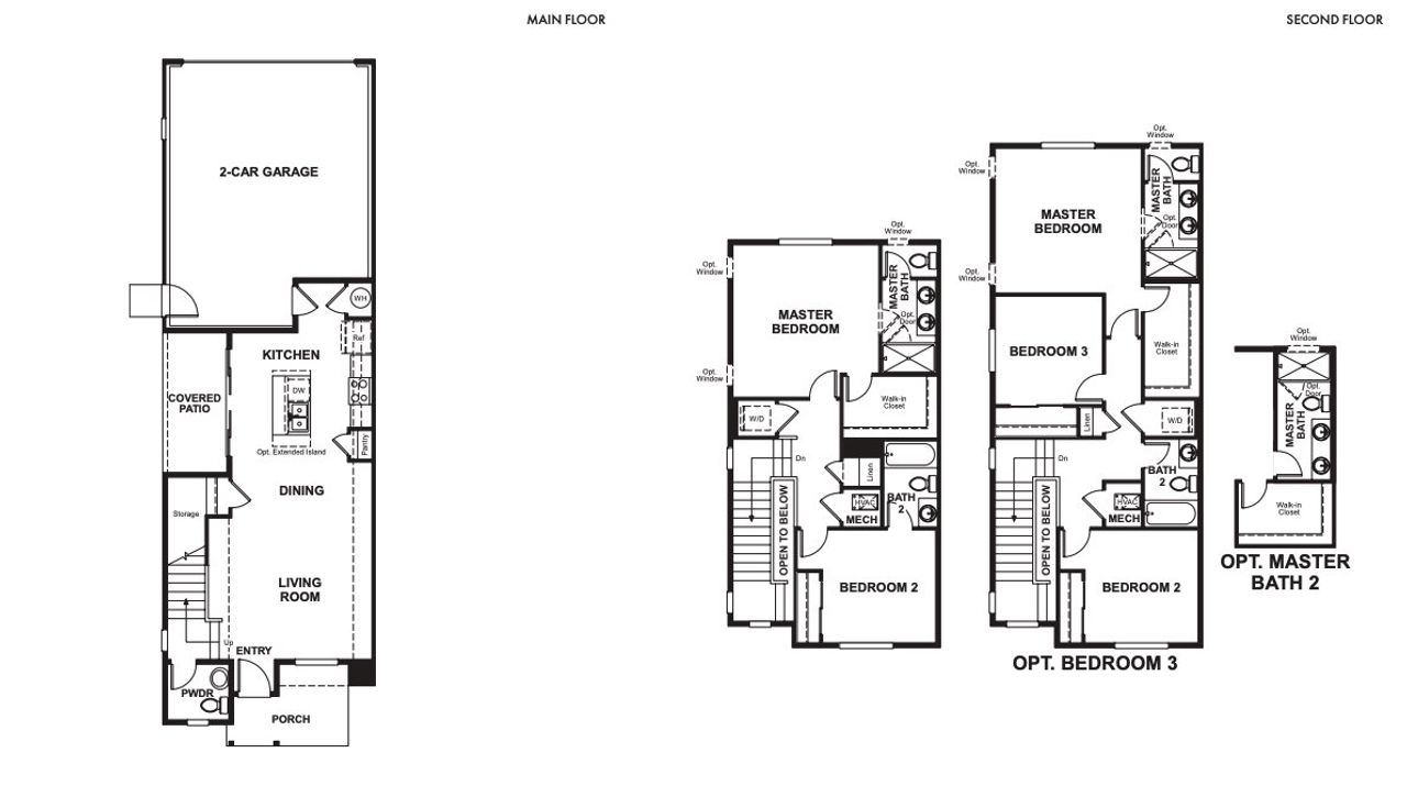
Explore this beautiful Boston model home! Included features: a welcoming covered porch; a spacious great room; an open dining area; a well-appointed kitchen offering stainless-steel appliances, 42" cabinets, quartz countertops, a refrigerator, a roomy pantry and a center island; a storage area; a convenient laundry; a lavish primary suite showcasing a generous walk-in closet and a private bath with double sinks and cultured marble countertops; a covered patio and a 2-car garage. This home also offers stone tile flooring and ceiling fan prewiring in select rooms.
May also be listed on the Richmond American Homes website
Information last verified by Jome: Thursday at 3:14 PM (February 20, 2025)
Home highlights
Luke Air Force Base in Glendale, Arizona, provides secure housing, top-rated schools, and abundant amenities, making it an ideal location for military families.
Book your tour. Save an average of $18,473. We'll handle the rest.
We collect exclusive builder offers, book your tours, and support you from start to housewarming.
- Confirmed tours
- Get matched & compare top deals
- Expert help, no pressure
- No added fees
Estimated value based on Jome data, T&C apply
Home details
- Property status:
- Not available
- Size:
- 1,680 sqft
- Stories:
- 2
- Beds:
- 3
- Baths:
- 2.5
- Garage spaces:
- 2
Construction details
- Builder Name:
- Richmond American Homes
Home features & finishes
- Cooling:
- Ceiling Fan(s)
- Garage/Parking:
- GarageAttached Garage
- Interior Features:
- Ceiling-HighWalk-In ClosetBlinds
- Kitchen:
- Stainless Steel AppliancesGas CooktopKitchen Countertop
- Laundry facilities:
- Utility/Laundry Room
- Lighting:
- Lighting
- Property amenities:
- CabinetsPatioFireplaceYardSmart Home SystemPorch
- Rooms:
- Flex RoomKitchenDen RoomOffice/StudyFamily RoomPrimary Bedroom Upstairs

Get a consultation with our New Homes Expert
- See how your home builds wealth
- Plan your home-buying roadmap
- Discover hidden gems
Utility information
- Heating:
- Water Heater
- Utilities:
- Natural Gas Available, Natural Gas on Property, HVAC

Community details
Heritage at Verrado at Verrado
by Richmond American Homes, Buckeye, AZ
- 10 homes
- 2 plans
- 1,500 - 1,520 sqft
View Heritage at Verrado details
More homes in Heritage at Verrado
- Home at address 20616 W Thomas Rd, Buckeye, AZ 85396

Boston
$389,995
- 3 bd
- 2.5 ba
- 1,500 sqft
20616 W Thomas Rd, Buckeye, AZ 85396
- Home at address 2848 N Evergreen St, Buckeye, AZ 85396

Chicago
$389,995
- 3 bd
- 2.5 ba
- 1,520 sqft
2848 N Evergreen St, Buckeye, AZ 85396
- Home at address 2811 N Claire Dr, Buckeye, AZ 85396

Boston
$389,995
- 3 bd
- 2.5 ba
- 1,509 sqft
2811 N Claire Dr, Buckeye, AZ 85396
- Home at address 2828 N Evergreen St, Buckeye, AZ 85396

Chicago
$389,995
- 3 bd
- 2.5 ba
- 1,520 sqft
2828 N Evergreen St, Buckeye, AZ 85396
- Home at address 2838 N Evergreen St, Buckeye, AZ 85396

Boston
$394,995
- 3 bd
- 2.5 ba
- 1,509 sqft
2838 N Evergreen St, Buckeye, AZ 85396
- Home at address 2799 N Claire Dr, Buckeye, AZ 85396

Chicago
$394,995
- 3 bd
- 2.5 ba
- 1,520 sqft
2799 N Claire Dr, Buckeye, AZ 85396
Floor plans in Heritage at Verrado
About the builder - Richmond American Homes
Neighborhood
Home address
Schools in Agua Fria Union High School District
GreatSchools’ Summary Rating calculation is based on 4 of the school’s themed ratings, including test scores, student/academic progress, college readiness, and equity. This information should only be used as a reference. Jome is not affiliated with GreatSchools and does not endorse or guarantee this information. Please reach out to schools directly to verify all information and enrollment eligibility. Data provided by GreatSchools.org © 2025
Places of interest
Getting around
Air quality
Noise level
A Soundscore™ rating is a number between 50 (very loud) and 100 (very quiet) that tells you how loud a location is due to environmental noise.

Considering this home?
Our expert will guide your tour, in-person or virtual
Need more information?
Text or call (888) 486-2818
Financials
Let us help you find your dream home
How many bedrooms are you looking for?
Similar homes nearby
Recently added communities in this area
Nearby communities in Buckeye
New homes in nearby cities
More New Homes in Buckeye, AZ
- Jome
- New homes search
- Arizona
- Phoenix Metropolitan Area
- Maricopa County
- Buckeye
- Heritage at Verrado
- 2789 N Verrado Way, Buckeye, AZ 85396































