





- 3 bd
- 3.5 ba
- 1,967 sqft
Lakeridge - END plan in Lakeshore Terrace by Megatel Homes
New Homes for Sale Near Flower Mound, TX 75028
About this Plan
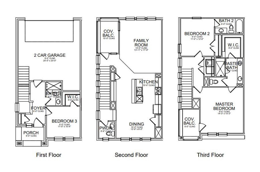
Our Lakeridge plan is a three-story, 1,967 square foot home featuring three bedrooms, three and a half bathrooms, and a two-car garage. This home is available with A and B elevations.
May also be listed on the Megatel Homes website
Information last verified by Jome: Today at 9:12 AM (December 10, 2025)
Plan details
- Name:
- Lakeridge - END
- Property status:
- Sold
- Size:
- 1,967 sqft
- Stories:
- 3+
- Beds:
- 3
- Baths:
- 3
- Half baths:
- 2
- Garage spaces:
- 2
Plan features & finishes
- Garage/Parking:
- GarageAttached Garage
- Interior Features:
- Walk-In Closet
- Laundry facilities:
- Utility/Laundry Room
- Property amenities:
- Porch
- Rooms:
- Dining RoomFamily RoomPrimary Bedroom Upstairs

Community details
Lakeshore Terrace
by Megatel Homes, Flower Mound, TX
View Lakeshore Terrace details
Want to know more about what's around here?
The Lakeridge - END floor plan is part of Lakeshore Terrace, a new home community by Megatel Homes, located in Flower Mound, TX. Visit the Lakeshore Terrace community page for full neighborhood insights, including nearby schools, shopping, walk & bike-scores, commuting, air quality & natural hazards.



















































