














Book your tour. Save an average of $18,473. We'll handle the rest.
We collect exclusive builder offers, book your tours, and support you from start to housewarming.
- Confirmed tours
- Get matched & compare top deals
- Expert help, no pressure
- No added fees
Estimated value based on Jome data, T&C apply









- 5 bd
- 4 ba
- 3,498 sqft
Wichita plan in 6 Creeks by Coventry Homes
Visit the community to experience this floor plan
Why tour with Jome?
- No pressure toursTour at your own pace with no sales pressure
- Expert guidanceGet insights from our home buying experts
- Exclusive accessSee homes and deals not available elsewhere
Jome is featured in
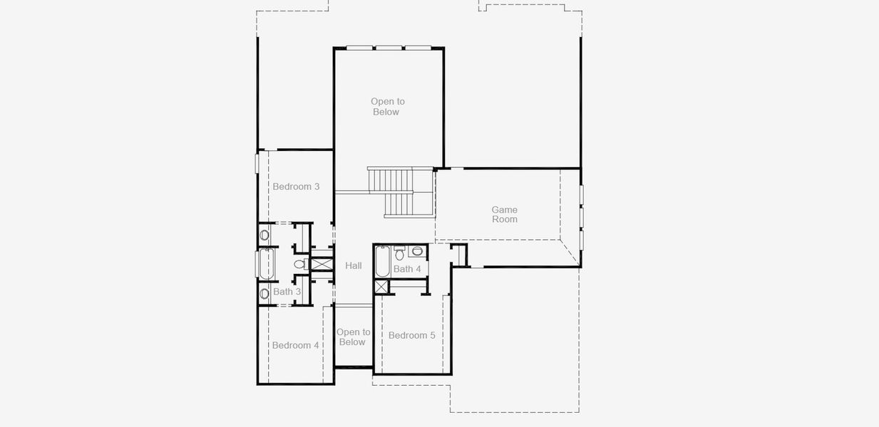
Plan description
May also be listed on the Coventry Homes website
Information last verified by Jome: Today at 2:02 AM (March 9, 2026)
Plan highlights
Plan details
- Name:
- Wichita
- Property type:
- Floor plan
- Community:
- 6 Creeks
- Builder:
- Coventry Homes
- Collection:
- 6 Creeks 70'
- Lot width (feet):
- 70
- Size:
- 3,498 sqft
- Stories:
- 2
- Beds:
- 5
- Baths:
- 4
- Garage spaces:
- 3
Plan features & finishes
- Garage/Parking:
- GarageAttached GarageTandem Parking
- Interior Features:
- Ceiling-HighWalk-In ClosetFoyerPantry
- Kitchen:
- Kitchen Island
- Laundry facilities:
- Utility/Laundry Room
- Property amenities:
- PatioSmart Home System
- Rooms:
- Flex RoomPrimary Bedroom On MainKitchenGame RoomOffice/StudyMudroomDining RoomFamily RoomBreakfast AreaOpen Concept FloorplanPrimary Bedroom Downstairs
- Upgrade Options:
- Bay WindowsFreestanding TubExtended GarageShower in Primary BathMedia RoomAlternate KitchenGarage BaySliding DoorsPocket OfficeFireplaceExtended Patio

Get a consultation with our New Homes Expert
- See how your home builds wealth
- Plan your home-buying roadmap
- Discover hidden gems
See the full plan layout
Download the floor plan PDF with room dimensions and home design details.

Instant download, no cost

Community details
6 Creeks at 6 Creeks
by Coventry Homes, Kyle, TX
- 10 homes
- 15 plans
- 2,075 - 4,373 sqft
View 6 Creeks details
Want to know more about what's around here?
The Wichita floor plan is part of 6 Creeks, a new home community by Coventry Homes, located in Kyle, TX. Visit the 6 Creeks community page for full neighborhood insights, including nearby schools, shopping, walk & bike-scores, commuting, air quality & natural hazards.

Homes built from this plan
Available homes in 6 Creeks
- Home at address 408 Five Mile Crk, Kyle, TX 78640

Asherton
6 Creeks 55'
$499,000
- 3 bd
- 2 ba
- 2,088 sqft
408 Five Mile Crk, Kyle, TX 78640
- Home at address 242 Five Mile Crk, Kyle, TX 78640

Schertz
6 Creeks 55'
$549,000
- 4 bd
- 3 ba
- 2,965 sqft
242 Five Mile Crk, Kyle, TX 78640
- Home at address 232 Five Mile Crk, Kyle, TX 78640

Hart
6 Creeks 55'
$585,402
- 4 bd
- 4 ba
- 2,626 sqft
232 Five Mile Crk, Kyle, TX 78640
- Home at address 153 Mineral River Lp, Kyle, TX 78640

Home
6 Creeks 55'
$621,547
- 4 bd
- 4 ba
- 2,626 sqft
153 Mineral River Lp, Kyle, TX 78640
- Home at address 194 Wood Thrush Run, Kyle, TX 78640

Hideaway
6 Creeks 70'
$624,000
- 4 bd
- 4 ba
- 2,879 sqft
194 Wood Thrush Run, Kyle, TX 78640
- Home at address 182 Five Mile Crk, Kyle, TX 78640

Brookshire
6 Creeks 55'
$634,367
- 4 bd
- 4 ba
- 3,125 sqft
182 Five Mile Crk, Kyle, TX 78640
More floor plans in 6 Creeks

Considering this plan?
Our expert will guide your tour, in-person or virtual
Need more information?
Text or call (888) 488-9243
Financials
Estimated monthly payment
Let us help you find your dream home
How many bedrooms are you looking for?
Similar homes nearby
Recently added communities in this area
Nearby communities in Kyle
New homes in nearby cities
More New Homes in Kyle, TX
- Jome
- New homes search
- Texas
- Greater Austin Area
- Hays County
- Kyle
- 6 Creeks
- 6 Creeks 70'
- 143 Mineral River Lp, Kyle, TX 78640





























