














Book your tour. Save an average of $18,473. We'll handle the rest.
We collect exclusive builder offers, book your tours, and support you from start to housewarming.
- Confirmed tours
- Get matched & compare top deals
- Expert help, no pressure
- No added fees
Estimated value based on Jome data, T&C apply



























































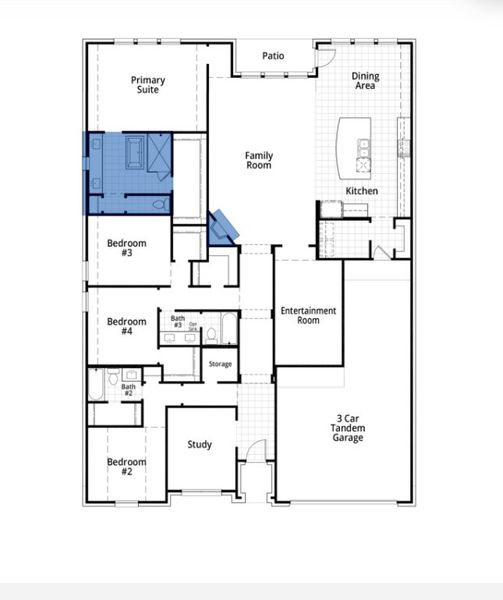
- 3 bd
- 3 ba
- 2,775 sqft
Canterbury plan in Monterra by Highland Homes
Visit the community to experience this floor plan
Why tour with Jome?
- No pressure toursTour at your own pace with no sales pressure
- Expert guidanceGet insights from our home buying experts
- Exclusive accessSee homes and deals not available elsewhere
Jome is featured in
Plan description
May also be listed on the Highland Homes website
Information last verified by Jome: Today at 1:09 AM (March 7, 2026)
Plan details
- Name:
- Canterbury
- Property type:
- Floor plan
- Community:
- Monterra
- Builder:
- Highland Homes
- Collection:
- Monterra: 70ft. lots
- Lot width (feet):
- 70
- Size:
- 2,775 sqft
- Stories:
- 1
- Beds from:
- 3
- Beds to:
- 4
- Baths:
- 3
- Half baths to:
- 1
- Garage spaces:
- 3
Plan features & finishes
- Garage/Parking:
- GarageAttached GarageTandem Parking
- Interior Features:
- Walk-In ClosetPantryStorage
- Kitchen:
- Gas CooktopKitchen Island
- Laundry facilities:
- Utility/Laundry Room
- Property amenities:
- BasementBathtub in primaryPatio
- Rooms:
- Primary Bedroom On MainKitchenOffice/StudyDining RoomFamily RoomPrimary Bedroom Downstairs
- Upgrade Options:
- Bay WindowsFlex RoomExtended Outdoor LivingPowder RoomShower in Primary BathShowerFireplace

Get a consultation with our New Homes Expert
- See how your home builds wealth
- Plan your home-buying roadmap
- Discover hidden gems
Utility information
- Utilities:
- Natural Gas Available, Natural Gas on Property
See the full plan layout
Download the floor plan PDF with room dimensions and home design details.

Instant download, no cost

Community details
Monterra at Monterra
by Highland Homes, Rockwall, TX
- 11 homes
- 34 plans
- 1,629 - 3,803 sqft
View Monterra details
Want to know more about what's around here?
The Canterbury floor plan is part of Monterra, a new home community by Highland Homes, located in Rockwall, TX. Visit the Monterra community page for full neighborhood insights, including nearby schools, shopping, walk & bike-scores, commuting, air quality & natural hazards.

Homes built from this plan
Available homes in Monterra
- Home at address 1523 Lazio Wy, Fate, TX 75087

Davenport
Monterra: 50ft. lots
$484,671
- 4 bd
- 2.5 ba
- 2,337 sqft
1523 Lazio Wy, Fate, TX 75087
- Home at address 1527 Lazio Wy, Fate, TX 75087

Brent
Monterra: 50ft. lots
$497,260
- 4 bd
- 4 ba
- 2,300 sqft
1527 Lazio Wy, Fate, TX 75087
- Home at address 1416 Tenuta Dr, Fate, TX 75087

Richmond
Monterra: 50ft. lots
$523,940
- 5 bd
- 4 ba
- 2,835 sqft
1416 Tenuta Dr, Fate, TX 75087
- Home at address 1431 Tenuta Dr, Fate, TX 75087

Fordham
Monterra: 50ft. lots
$562,015
- 4 bd
- 4 ba
- 3,039 sqft
1431 Tenuta Dr, Fate, TX 75087
- Home at address 1420 Tenuta Dr, Fate, TX 75087

Cambridge
Monterra: 50ft. lots
$563,361
- 4 bd
- 4.5 ba
- 3,002 sqft
1420 Tenuta Dr, Fate, TX 75087
- Home at address 1328 Castello Dr, Fate, TX 75087

Fleetwood
Monterra: 70ft. lots
$587,490
- 4 bd
- 3.5 ba
- 2,687 sqft
1328 Castello Dr, Fate, TX 75087
More floor plans in Monterra

Considering this plan?
Our expert will guide your tour, in-person or virtual
Need more information?
Text or call (888) 488-9243
Financials
Estimated monthly payment
Let us help you find your dream home
How many bedrooms are you looking for?
Similar homes nearby
Recently added communities in this area
Nearby communities in Rockwall
New homes in nearby cities
More New Homes in Rockwall, TX
- Jome
- New homes search
- Texas
- Dallas-Fort Worth Area
- Rockwall County
- Rockwall
- Monterra
- Monterra: 70ft. lots
- 1022 Monterra Wy, Rockwall, TX 75087































