






Book your tour. Save an average of $18,473. We'll handle the rest.
We collect exclusive builder offers, book your tours, and support you from start to housewarming.
- Confirmed tours
- Get matched & compare top deals
- Expert help, no pressure
- No added fees
Estimated value based on Jome data, T&C apply



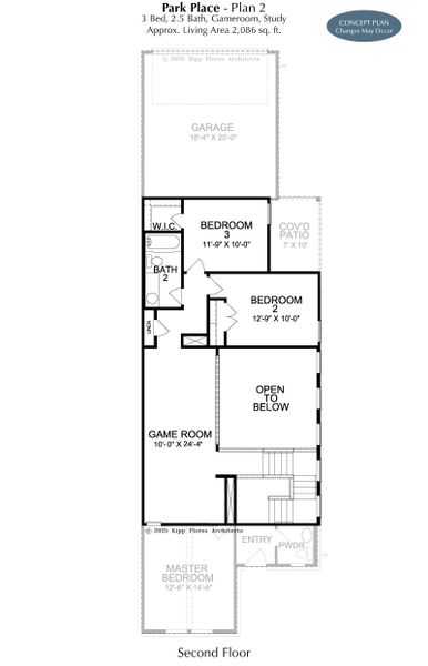
- 3 bd
- 2 ba
- 2,086 sqft
Park Place plan in Fields - East Village by Landon Homes
Visit the community to experience this floor plan
Why tour with Jome?
- No pressure toursTour at your own pace with no sales pressure
- Expert guidanceGet insights from our home buying experts
- Exclusive accessSee homes and deals not available elsewhere
Jome is featured in
Plan description
May also be listed on the Landon Homes website
Information last verified by Jome: Today at 9:30 AM (May 26, 2026)
Plan details
- Name:
- Park Place
- Property type:
- Floor plan
- Community:
- Fields - East Village
- Builder:
- Landon Homes
- Collection:
- Fields East Village - Townhomes
- Size:
- 2,086 sqft
- Stories:
- 2
- Beds:
- 3
- Baths:
- 2
- Half baths:
- 1
- Garage spaces:
- 2
Plan features & finishes
- Garage/Parking:
- GarageAttached Garage
- Interior Features:
- Walk-In ClosetPantry
- Kitchen:
- Kitchen Island
- Laundry facilities:
- Utility/Laundry Room
- Property amenities:
- Patio
- Rooms:
- Primary Bedroom On MainKitchenPowder RoomGame RoomOffice/StudyDining RoomFamily RoomOpen Concept FloorplanPrimary Bedroom Downstairs

Get a consultation with our New Homes Expert
- See how your home builds wealth
- Plan your home-buying roadmap
- Discover hidden gems
See the full plan layout
Download the floor plan PDF with room dimensions and home design details.

Instant download, no cost

Community details
Fields - East Village
by Landon Homes, Frisco, TX
- 1 home
- 12 plans
- 1,963 - 3,390 sqft
View Fields - East Village details
Want to know more about what's around here?
The Park Place floor plan is part of Fields - East Village, a new home community by Landon Homes, located in Frisco, TX. Visit the Fields - East Village community page for full neighborhood insights, including nearby schools, shopping, walk & bike-scores, commuting, air quality & natural hazards.

Available homes in Fields - East Village
- Home at address 7133 Lathrop Ln, Frisco, TX 75033

Broadway
Fields East Village - Townhomes
$509,990
- 3 bd
- 2.5 ba
- 1,963 sqft
7133 Lathrop Ln, Frisco, TX 75033
More floor plans in Fields - East Village

Considering this plan?
Our expert will guide your tour, in-person or virtual
Need more information?
Text or call (888) 545-5198
Financials
Estimated monthly payment
Let us help you find your dream home
How many bedrooms are you looking for?
Similar homes nearby
Recently added communities in this area
Nearby communities in Frisco
New homes in nearby cities
More New Homes in Frisco, TX
- Jome
- New homes search
- Texas
- Dallas-Fort Worth Area
- Collin County
- Frisco
- Fields - East Village
- Fields East Village - Townhomes
- 6801 Baxley Rd, Frisco, TX 75033





























