



Book your tour. Save an average of $18,473. We'll handle the rest.
We collect exclusive builder offers, book your tours, and support you from start to housewarming.
- Confirmed tours
- Get matched & compare top deals
- Expert help, no pressure
- No added fees
Estimated value based on Jome data, T&C apply


- 4 bd
- 4.5 ba
- 4,411 sqft
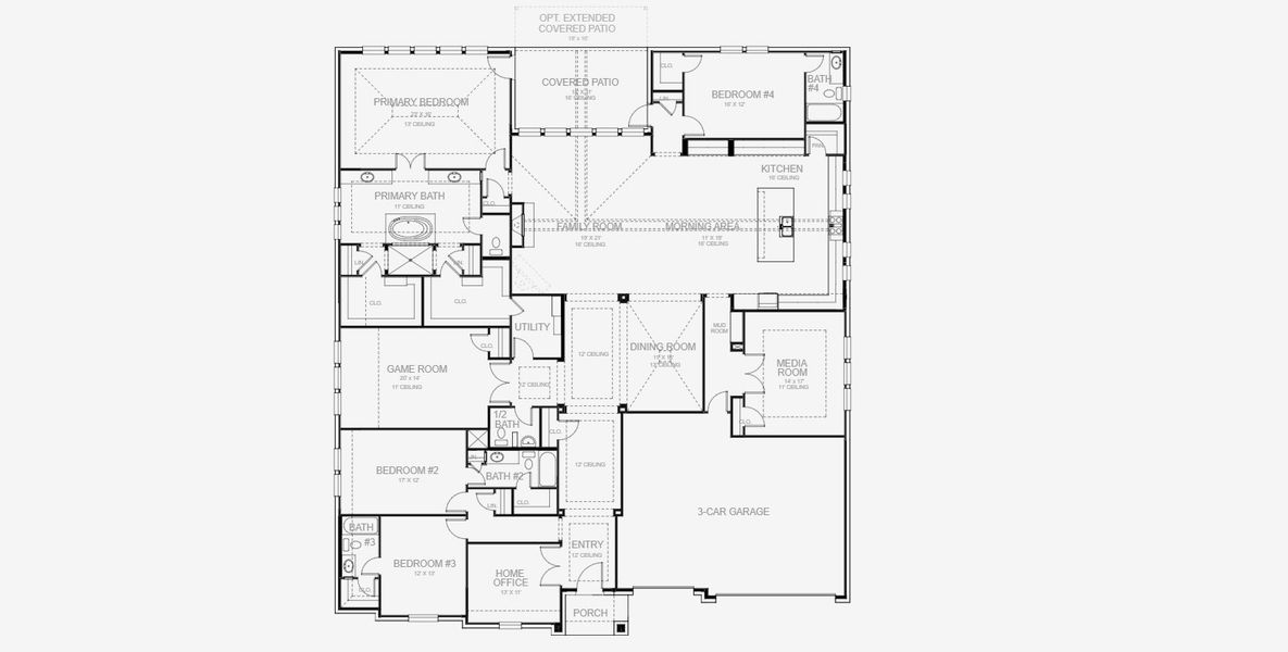
4411W plan in Lakes of Cane Island by Perry Homes
Visit the community to experience this floor plan
Why tour with Jome?
- No pressure toursTour at your own pace with no sales pressure
- Expert guidanceGet insights from our home buying experts
- Exclusive accessSee homes and deals not available elsewhere
Jome is featured in
Plan description
May also be listed on the Perry Homes website
Information last verified by Jome: Today at 7:03 AM (April 1, 2026)
Plan details
- Name:
- 4411W
- Property type:
- Floor plan
- Community:
- Lakes of Cane Island
- Builder:
- Perry Homes
- Collection:
- Lakes Of Cane Island 80'
- Lot width (feet):
- 80
- Size:
- 4,411 sqft
- Stories:
- 1
- Beds:
- 4
- Baths:
- 4
- Half baths:
- 1
- Garage spaces:
- 3
Plan features & finishes
- Garage/Parking:
- GarageAttached Garage
- Interior Features:
- Walk-In ClosetPantry
- Kitchen:
- Kitchen Island
- Laundry facilities:
- Utility/Laundry Room
- Property amenities:
- PatioPorch
- Rooms:
- Primary Bedroom On MainKitchenGame RoomMedia RoomFamily RoomBreakfast AreaOpen Concept FloorplanPrimary Bedroom Downstairs
- Upgrade Options:
- Freestanding TubTheatre RoomExtra Half BathSliding DoorsFireplaceExtended Patio

Get a consultation with our New Homes Expert
- See how your home builds wealth
- Plan your home-buying roadmap
- Discover hidden gems
See the full plan layout
Download the floor plan PDF with room dimensions and home design details.

Instant download, no cost

Community details
Lakes of Cane Island at Cane Island
by Perry Homes, Katy, TX
- 2 homes
- 74 plans
- 1,910 - 5,573 sqft
View Lakes of Cane Island details
Want to know more about what's around here?
The 4411W floor plan is part of Lakes of Cane Island, a new home community by Perry Homes, located in Katy, TX. Visit the Lakes of Cane Island community page for full neighborhood insights, including nearby schools, shopping, walk & bike-scores, commuting, air quality & natural hazards.

Available homes in Lakes of Cane Island
- Home at address 1236 Emerald Lake Dr, Katy, TX 77493

2944W
Lakes Of Cane Island 60'
$663,900
- 4 bd
- 3.5 ba
- 2,944 sqft
1236 Emerald Lake Dr, Katy, TX 77493
- Home at address 1240 Emerald Lake Dr, Katy, TX 77493

4016W
Lakes Of Cane Island 60'
$763,900
- 5 bd
- 4.5 ba
- 4,016 sqft
1240 Emerald Lake Dr, Katy, TX 77493
More floor plans in Lakes of Cane Island

Considering this plan?
Our expert will guide your tour, in-person or virtual
Need more information?
Text or call (888) 545-5198
Financials
Estimated monthly payment
Let us help you find your dream home
How many bedrooms are you looking for?



























