














Book your tour. Save an average of $18,473. We'll handle the rest.
We collect exclusive builder offers, book your tours, and support you from start to housewarming.
- Confirmed tours
- Get matched & compare top deals
- Expert help, no pressure
- No added fees
Estimated value based on Jome data, T&C apply
















- 3 bd
- 2.5 ba
- 2,250 sqft
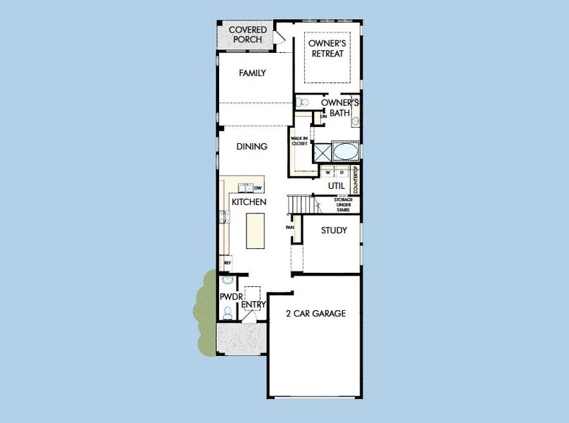
The Hereford plan in Sienna 40' Homesites by David Weekley Homes
Visit the community to experience this floor plan
Why tour with Jome?
- No pressure toursTour at your own pace with no sales pressure
- Expert guidanceGet insights from our home buying experts
- Exclusive accessSee homes and deals not available elsewhere
Jome is featured in
Plan description
May also be listed on the David Weekley Homes website
Information last verified by Jome: Today at 1:08 AM (February 27, 2026)
Plan details
- Name:
- The Hereford
- Property status:
- Floor plan
- Lot width (feet):
- 40
- Size from:
- 2,250 sqft
- Size to:
- 2,304 sqft
- Stories:
- 2
- Beds from:
- 3
- Beds to:
- 4
- Baths from:
- 2
- Baths to:
- 3
- Half baths:
- 1
- Garage spaces:
- 2
Plan features & finishes
- Garage/Parking:
- GarageAttached Garage
- Interior Features:
- Walk-In ClosetPantry
- Kitchen:
- Kitchen Island
- Laundry facilities:
- Utility/Laundry Room
- Property amenities:
- Porch
- Rooms:
- Primary Bedroom On MainKitchenRetreat AreaPowder RoomOffice/StudyDining RoomFamily RoomPrimary Bedroom Downstairs
- Upgrade Options:
- French DoorExtra BathroomMulti-Slide DoorsExtra BedroomSuper ShowerExtended PorchFireplace

Get a consultation with our New Homes Expert
- See how your home builds wealth
- Plan your home-buying roadmap
- Discover hidden gems
See the full plan layout
Download the floor plan PDF with room dimensions and home design details.

Instant download, no cost

Community details
Sienna 40' Homesites at Sienna
by David Weekley Homes, Missouri City, TX
- 2 homes
- 10 plans
- 1,592 - 2,615 sqft
View Sienna 40' Homesites details
Want to know more about what's around here?
The The Hereford floor plan is part of Sienna 40' Homesites, a new home community by David Weekley Homes, located in Missouri City, TX. Visit the Sienna 40' Homesites community page for full neighborhood insights, including nearby schools, shopping, walk & bike-scores, commuting, air quality & natural hazards.

Available homes in Sienna 40' Homesites
- Home at address 11646 Birdsong Dr, Missouri City, TX 77459

The Kingsland
$491,541
- 3 bd
- 2 ba
- 2,480 sqft
11646 Birdsong Dr, Missouri City, TX 77459
- Home at address 11630 Birdsong Dr, Missouri City, TX 77459

The Galveston
$501,168
- 5 bd
- 3 ba
- 2,399 sqft
11630 Birdsong Dr, Missouri City, TX 77459
More floor plans in Sienna 40' Homesites

Considering this plan?
Our expert will guide your tour, in-person or virtual
Need more information?
Text or call (888) 488-9243
Financials
Estimated monthly payment
Let us help you find your dream home
How many bedrooms are you looking for?
Similar homes nearby
Recently added communities in this area
Nearby communities in Missouri City
New homes in nearby cities
More New Homes in Missouri City, TX
- Jome
- New homes search
- Texas
- Greater Houston Area
- Fort Bend County
- Missouri City
- Sienna 40' Homesites
- 11702 Birdsong Dr, Missouri City, TX 77459

































