








Book your tour. Save an average of $18,473. We'll handle the rest.
We collect exclusive builder offers, book your tours, and support you from start to housewarming.
- Confirmed tours
- Get matched & compare top deals
- Expert help, no pressure
- No added fees
Estimated value based on Jome data, T&C apply



- 4 bd
- 3.5 ba
- 2,684 sqft
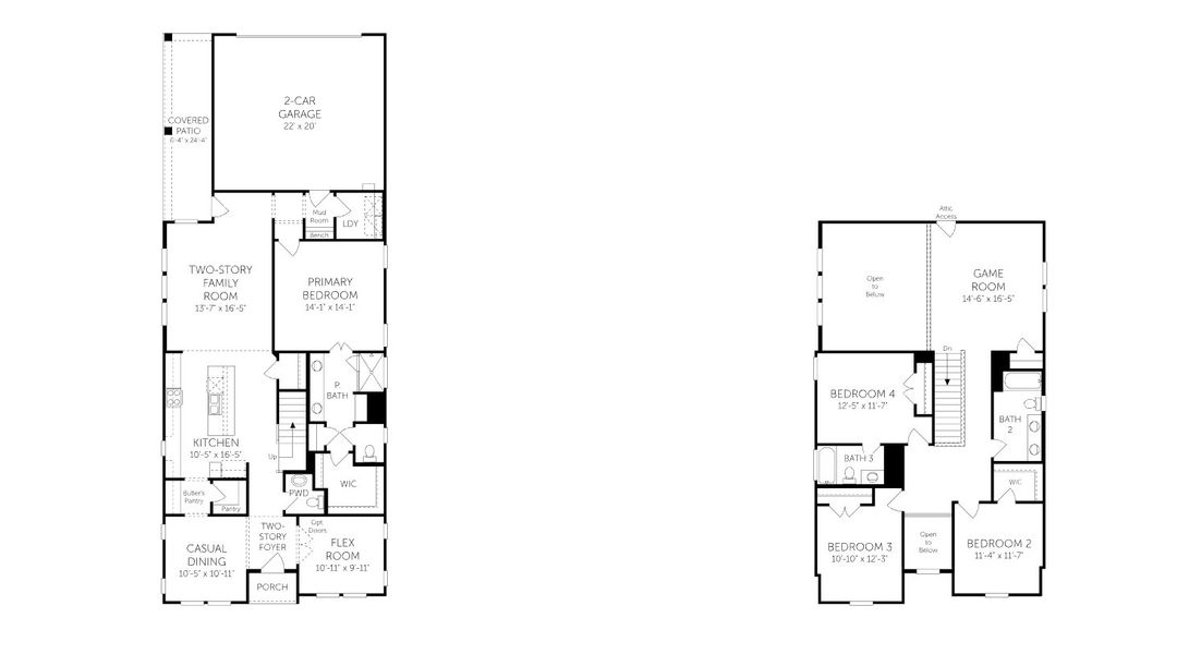
Roberts plan in Landmark by Coventry Homes
Visit the community to experience this floor plan
Why tour with Jome?
- No pressure toursTour at your own pace with no sales pressure
- Expert guidanceGet insights from our home buying experts
- Exclusive accessSee homes and deals not available elsewhere
Jome is featured in
Plan description
May also be listed on the Coventry Homes website
Information last verified by Jome: Today at 2:37 AM (April 5, 2026)
Plan details
- Name:
- Roberts
- Property type:
- Floor plan
- Community:
- Landmark
- Builder:
- Coventry Homes
- Size:
- 2,684 sqft
- Stories:
- 2
- Beds:
- 4
- Baths:
- 3
- Half baths:
- 1
- Garage spaces:
- 2
Plan features & finishes
- Garage/Parking:
- GarageAttached Garage
- Interior Features:
- Walk-In ClosetPantry
- Kitchen:
- Kitchen Island
- Laundry facilities:
- Utility/Laundry Room
- Property amenities:
- Two-Story Entry FoyerPatioPorch
- Rooms:
- Flex RoomPrimary Bedroom On MainKitchenTwo-Story Great RoomPowder RoomGame RoomDining RoomOpen Concept FloorplanPrimary Bedroom Downstairs
- Upgrade Options:
- Separate Shower and TubExtended GarageGourmet KitchenShower in Primary Bath

Get a consultation with our New Homes Expert
- See how your home builds wealth
- Plan your home-buying roadmap
- Discover hidden gems
See the full plan layout
Download the floor plan PDF with room dimensions and home design details.

Instant download, no cost

Community details
Landmark at Landmark
by Coventry Homes, Denton, TX
- 8 homes
- 8 plans
- 1,617 - 2,793 sqft
View Landmark details
Want to know more about what's around here?
The Roberts floor plan is part of Landmark, a new home community by Coventry Homes, located in Denton, TX. Visit the Landmark community page for full neighborhood insights, including nearby schools, shopping, walk & bike-scores, commuting, air quality & natural hazards.

Homes built from this plan
Available homes in Landmark
- Home at address 9205 Rolling Meadow Wy, Denton, TX 76226

Zapata
$542,583
- 4 bd
- 3.5 ba
- 2,433 sqft
9205 Rolling Meadow Wy, Denton, TX 76226
- Home at address 9309 Rolling Meadow Wy, Denton, TX 76226

Karnes
$553,756
- 4 bd
- 3.5 ba
- 2,481 sqft
9309 Rolling Meadow Wy, Denton, TX 76226
- Home at address 9313 Rolling Meadow Wy, Denton, TX 76226

Stephens
$558,644
- 4 bd
- 3.5 ba
- 2,313 sqft
9313 Rolling Meadow Wy, Denton, TX 76226
- Home at address 9221 Rolling Meadow Wy, Denton, TX 76226

Floyd
$561,384
- 4 bd
- 3.5 ba
- 2,527 sqft
9221 Rolling Meadow Wy, Denton, TX 76226
- Home at address 9317 Rolling Meadow Wy, Denton, TX 76226

Williamson
$570,572
- 4 bd
- 3.5 ba
- 2,771 sqft
9317 Rolling Meadow Wy, Denton, TX 76226
More floor plans in Landmark

Considering this plan?
Our expert will guide your tour, in-person or virtual
Need more information?
Text or call (888) 545-5198
Financials
Estimated monthly payment
Let us help you find your dream home
How many bedrooms are you looking for?




























