





Book your tour. Save an average of $18,473. We'll handle the rest.
- Confirmed tours
- Get matched & compare top deals
- Expert help, no pressure
- No added fees
Estimated value based on Jome data, T&C apply
- 3 bd
- 2.5 ba
- 2,115 sqft
The Churchill plan in Friedrich Hill by Rosehaven Homes
Visit the community to experience this floor plan
Why tour with Jome?
- No pressure toursTour at your own pace with no sales pressure
- Expert guidanceGet insights from our home buying experts
- Exclusive accessSee homes and deals not available elsewhere
Jome is featured in
Plan description
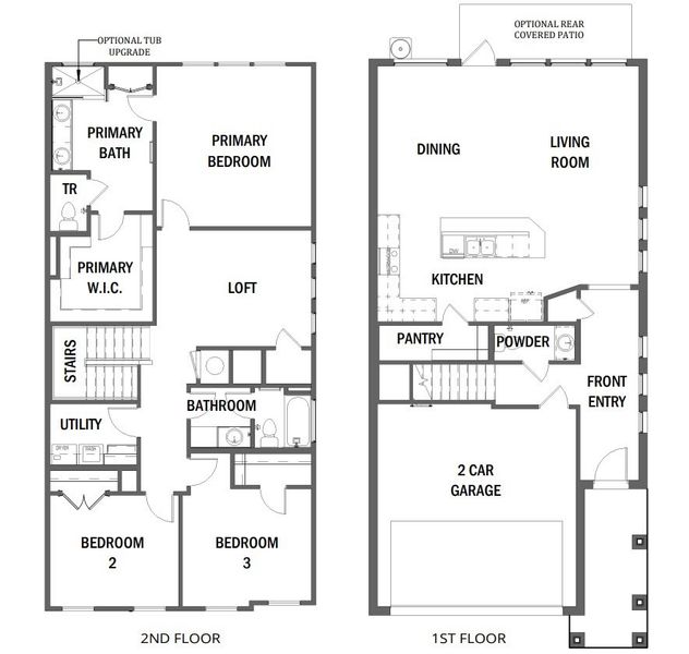
Discover the The Churchill floor plan in Friedrich Hill, an outstanding community designed by Rosehaven Homes in the city of San Antonio. This plan uses high-quality materials and finishes to create a luxurious ambiance you'll love coming home to for years.
Located at 7251 Heuermann Rd, San Antonio, TX 78256 in the prestigious Friedrich Hill, you'll find a collection of other new construction homes created with various layouts, along with a welcoming community of neighbors and a variety of amenities to enrich your lifestyle.
The The Churchill is a beautiful 2-story floor plan with 3 spacious bedrooms, and 2.5 modern bathrooms spread over 2,115 square feet. This plan also includes a garage with 2 spaces for parking vehicles, extra storage, or hobby essentials.
You'll love the convenience of being close to fantastic shopping, top-notch dining options, entertainment, and opportunities for outdoor adventures. Plus, Friedrich Hill is zoned to the reputable Northside Independent School District, providing easy access to the best schools in the area.
Does The Churchill sound like your dream floor plan? Work with Jome to make it a reality. Contact a New Construction Specialist to take the first step towards a lifestyle of convenience and luxury in your future home.
May also be listed on the Rosehaven Homes website
Information last verified by Jome: Today at 10:16 AM (January 20, 2026)
Plan details
- Name:
- The Churchill
- Property status:
- Floor plan
- Size:
- 2,115 sqft
- Stories:
- 2
- Beds from:
- 3
- Beds to:
- 4
- Baths:
- 2.5
- Garage spaces:
- 2
Plan features & finishes
- Garage/Parking:
- GarageAttached Garage
- Interior Features:
- Walk-In ClosetPantryLoft
- Kitchen:
- Kitchen Island
- Laundry facilities:
- Utility/Laundry Room
- Rooms:
- KitchenPowder RoomDining RoomLiving RoomOpen Concept FloorplanPrimary Bedroom Upstairs
- Upgrade Options:
- Covered PatioAlternate Primary BathExtra Bedroom

Get a consultation with our New Homes Expert
- See how your home builds wealth
- Plan your home-buying roadmap
- Discover hidden gems
See the full plan layout
Download the floor plan PDF with room dimensions and home design details.

Instant download, no cost

Community details
Friedrich Hill
by Rosehaven Homes, San Antonio, TX
- 3 plans
- 1,809 - 2,115 sqft
View Friedrich Hill details
Want to know more about what's around here?
The The Churchill floor plan is part of Friedrich Hill, a new home community by Rosehaven Homes, located in San Antonio, TX. Visit the Friedrich Hill community page for full neighborhood insights, including nearby schools, shopping, walk & bike-scores, commuting, air quality & natural hazards.

More floor plans in Friedrich Hill

Considering this plan?
Our expert will guide your tour, in-person or virtual
Need more information?
Text or call (888) 486-2818
Financials
Let us help you find your dream home
How many bedrooms are you looking for?
Similar homes nearby
Recently added communities in this area
Nearby communities in San Antonio
New homes in nearby cities
More New Homes in San Antonio, TX
- Jome
- New homes search
- Texas
- Greater San Antonio
- Bexar County
- San Antonio
- Friedrich Hill
- 7251 Heuermann Rd, San Antonio, TX 78256





























