




Book your tour. Save an average of $18,473. We'll handle the rest.
- Confirmed tours
- Get matched & compare top deals
- Expert help, no pressure
- No added fees
Estimated value based on Jome data, T&C apply
- 3 bd
- 2.5 ba
- 1,978 sqft
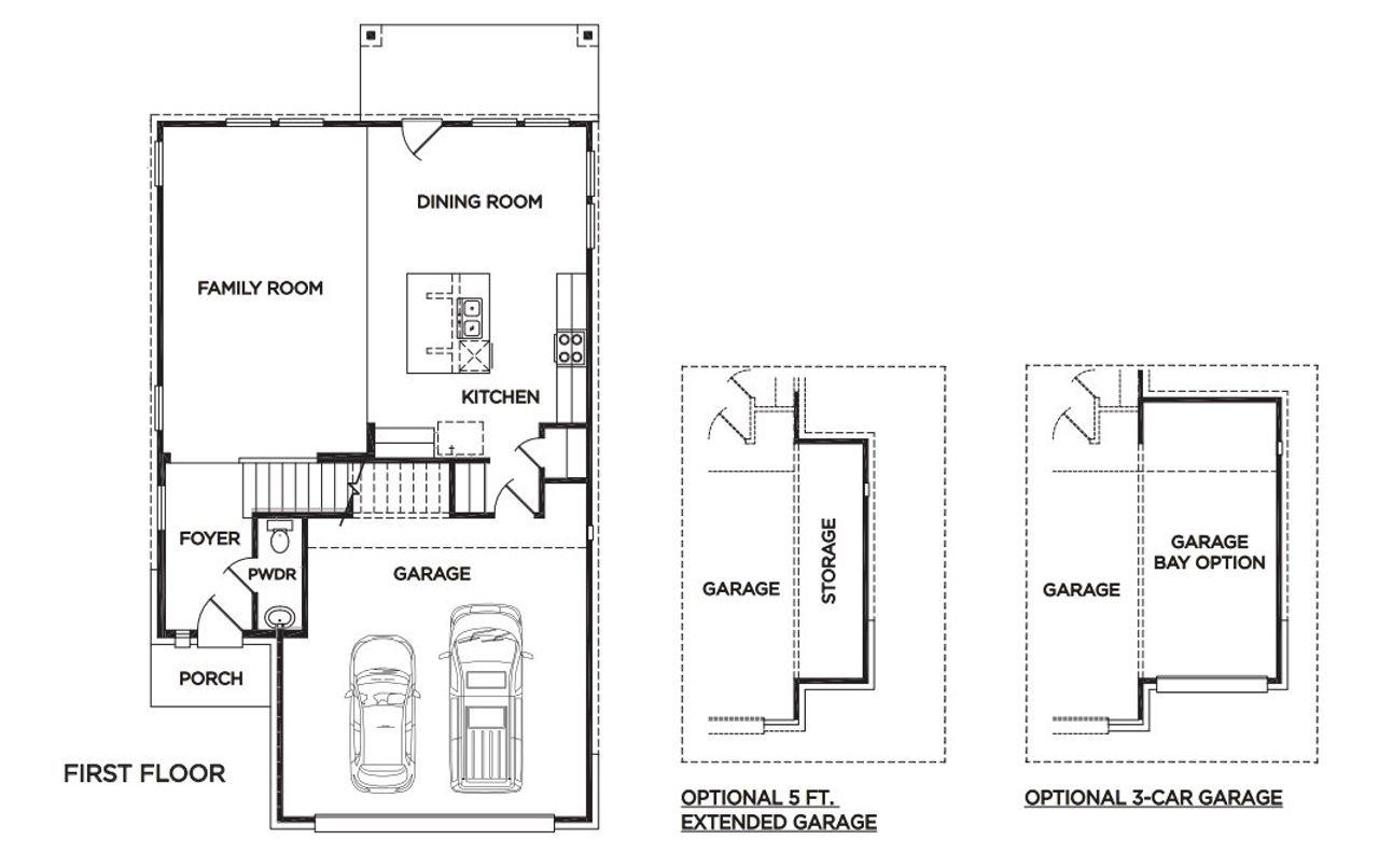
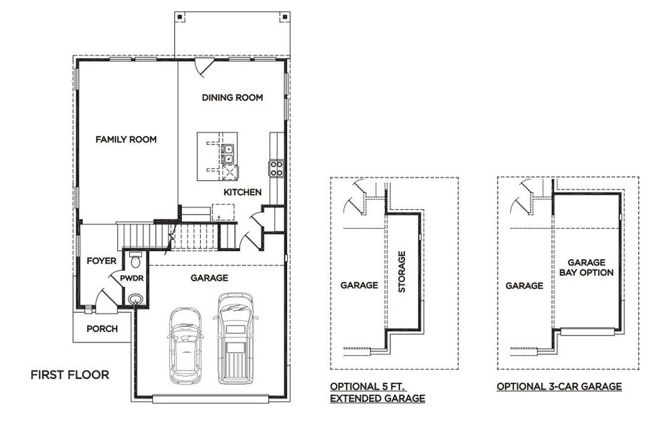
The Chelsea plan in Colony at Pinehurst by McKinley Homes
Visit the community to experience this floor plan
Why tour with Jome?
- No pressure toursTour at your own pace with no sales pressure
- Expert guidanceGet insights from our home buying experts
- Exclusive accessSee homes and deals not available elsewhere
Jome is featured in
Plan description
May also be listed on the McKinley Homes website
Information last verified by Jome: Tuesday at 4:28 PM (December 30, 2025)
Plan details
- Name:
- The Chelsea
- Property status:
- Floor plan
- Size:
- 1,978 sqft
- Stories:
- 2
- Beds:
- 3
- Baths:
- 2
- Half baths:
- 1
- Garage spaces:
- 2
Plan features & finishes
- Garage/Parking:
- GarageAttached Garage
- Interior Features:
- Walk-In ClosetFoyerPantryLoft
- Laundry facilities:
- Utility/Laundry Room
- Property amenities:
- Porch
- Rooms:
- KitchenPowder RoomDining RoomFamily RoomOpen Concept FloorplanPrimary Bedroom Upstairs
- Upgrade Options:
- Extended GarageExtra Car Garage

Get a consultation with our New Homes Expert
- See how your home builds wealth
- Plan your home-buying roadmap
- Discover hidden gems
See the full plan layout
Download the floor plan PDF with room dimensions and home design details.

Instant download, no cost

Community details
Colony at Pinehurst
by McKinley Homes, Pinehurst, TX
- 5 homes
- 7 plans
- 1,407 - 2,719 sqft
View Colony at Pinehurst details
Want to know more about what's around here?
The The Chelsea floor plan is part of Colony at Pinehurst, a new home community by McKinley Homes, located in Pinehurst, TX. Visit the Colony at Pinehurst community page for full neighborhood insights, including nearby schools, shopping, walk & bike-scores, commuting, air quality & natural hazards.

Available homes in Colony at Pinehurst
- Home at address 4229 Red Cedar Ring Ln, Pinehurst, TX 77362

The Lexington
$350,642
- 4 bd
- 2.5 ba
- 2,130 sqft
4229 Red Cedar Ring Ln, Pinehurst, TX 77362
- Home at address 4221 Red Cedar Ring Ln, Pinehurst, TX 77362

The Sullivan
$384,930
- 4 bd
- 2.5 ba
- 2,587 sqft
4221 Red Cedar Ring Ln, Pinehurst, TX 77362
- Home at address 4616 Mesquite Trl, Pinehurst, TX 77362

The Trenton
$394,045
- 5 bd
- 3.5 ba
- 2,719 sqft
4616 Mesquite Trl, Pinehurst, TX 77362
- Home at address 3011 Wicker Ln, Pinehurst, TX 77362

The Trenton
$394,212
- 5 bd
- 3.5 ba
- 2,704 sqft
3011 Wicker Ln, Pinehurst, TX 77362
- Home at address 4214 Red Cedar Ring Ln, Pinehurst, TX 77362

The Trenton
$397,989
- 5 bd
- 3.5 ba
- 2,719 sqft
4214 Red Cedar Ring Ln, Pinehurst, TX 77362
More floor plans in Colony at Pinehurst

Considering this plan?
Our expert will guide your tour, in-person or virtual
Need more information?
Text or call (888) 486-2818
Financials
Estimated monthly payment
Let us help you find your dream home
How many bedrooms are you looking for?
Similar homes nearby
Recently added communities in this area
Nearby communities in Pinehurst
New homes in nearby cities
More New Homes in Pinehurst, TX
- Jome
- New homes search
- Texas
- Greater Houston Area
- Montgomery County
- Pinehurst
- Colony at Pinehurst
- 4011 Colony River Rock Blvd, Pinehurst, TX 77362





























