



Book your tour. Save an average of $18,473. We'll handle the rest.
We collect exclusive builder offers, book your tours, and support you from start to housewarming.
- Confirmed tours
- Get matched & compare top deals
- Expert help, no pressure
- No added fees
Estimated value based on Jome data, T&C apply

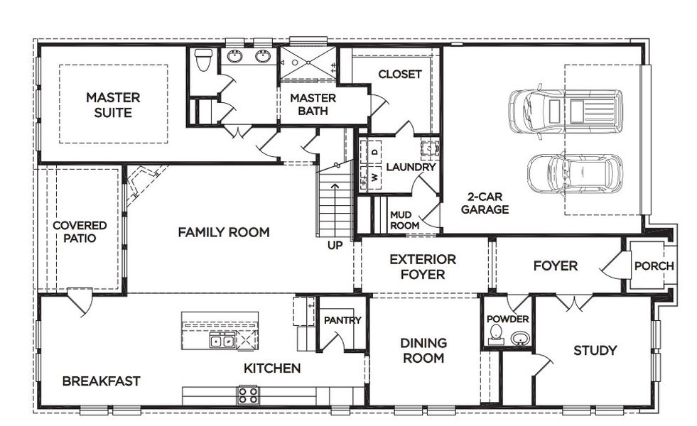
- 4 bd
- 3.5 ba
- 3,233 sqft
The Arlington plan in River Ranch Meadows by McKinley Homes
Visit the community to experience this floor plan
Why tour with Jome?
- No pressure toursTour at your own pace with no sales pressure
- Expert guidanceGet insights from our home buying experts
- Exclusive accessSee homes and deals not available elsewhere
Jome is featured in
Plan description
May also be listed on the McKinley Homes website
Information last verified by Jome: Wednesday at 10:56 PM (April 15, 2026)
Plan details
- Name:
- The Arlington
- Property type:
- Floor plan
- Community:
- River Ranch Meadows
- Builder:
- McKinley Homes
- Size:
- 3,233 sqft
- Stories:
- 2
- Beds:
- 4
- Baths from:
- 3
- Baths to:
- 4
- Half baths:
- 1
- Garage spaces:
- 2
Plan features & finishes
- Garage/Parking:
- GarageAttached Garage
- Interior Features:
- Walk-In ClosetFoyerPantryLoft
- Laundry facilities:
- Utility/Laundry Room
- Property amenities:
- Covered PatioPorch
- Rooms:
- Primary Bedroom On MainKitchenTwo-Story Great RoomPowder RoomGame RoomOffice/StudyDining RoomFamily RoomBreakfast AreaOpen Concept FloorplanPrimary Bedroom Downstairs
- Upgrade Options:
- Kitchen IslandExtended GarageExtra Car GarageMedia RoomExtra Bedroom

Get a consultation with our New Homes Expert
- See how your home builds wealth
- Plan your home-buying roadmap
- Discover hidden gems
See the full plan layout
Download the floor plan PDF with room dimensions and home design details.

Instant download, no cost

Community details
River Ranch Meadows
by McKinley Homes, Dayton, TX
- 7 homes
- 12 plans
- 1,536 - 3,233 sqft
View River Ranch Meadows details
Want to know more about what's around here?
The The Arlington floor plan is part of River Ranch Meadows, a new home community by McKinley Homes, located in Dayton, TX. Visit the River Ranch Meadows community page for full neighborhood insights, including nearby schools, shopping, walk & bike-scores, commuting, air quality & natural hazards.

Available homes in River Ranch Meadows
- Home at address 3562 Mount Scenery Ln, Dayton, TX 77535

The Austin
$403,324
- 4 bd
- 3 ba
- 2,034 sqft
3562 Mount Scenery Ln, Dayton, TX 77535
- Home at address 3516 Mount Scenery Ln, Dayton, TX 77535

The Austin
$412,304
- 4 bd
- 3 ba
- 2,034 sqft
3516 Mount Scenery Ln, Dayton, TX 77535
- Home at address 3552 Mount Scenery Ln, Dayton, TX 77535

The Lamar
$422,624
- 4 bd
- 3 ba
- 2,122 sqft
3552 Mount Scenery Ln, Dayton, TX 77535
- Home at address 3506 Mount Scenery Ln, Dayton, TX 77535

Home
$431,320
- 4 bd
- 2.5 ba
- 2,572 sqft
3506 Mount Scenery Ln, Dayton, TX 77535
- Home at address 3505 Mount Scenery Ln, Dayton, TX 77535

The Providence
$436,320
- 4 bd
- 2.5 ba
- 2,572 sqft
3505 Mount Scenery Ln, Dayton, TX 77535
- Home at address 3009 Sentineal Meadows Ln, Dayton, TX 77535

Home
$445,122
- 4 bd
- 2.5 ba
- 2,572 sqft
3009 Sentineal Meadows Ln, Dayton, TX 77535
More floor plans in River Ranch Meadows

Considering this plan?
Our expert will guide your tour, in-person or virtual
Need more information?
Text or call (888) 545-5198
Financials
Estimated monthly payment
Let us help you find your dream home
How many bedrooms are you looking for?
Similar homes nearby
Recently added communities in this area
Nearby communities in Dayton
New homes in nearby cities
More New Homes in Dayton, TX
- Jome
- New homes search
- Texas
- Greater Houston Area
- Liberty County
- Dayton
- River Ranch Meadows
- 205 Blanco Ln, Dayton, TX 77535































