














Book your tour. Save an average of $18,473. We'll handle the rest.
- Confirmed tours
- Get matched & compare top deals
- Expert help, no pressure
- No added fees
Estimated value based on Jome data, T&C apply

































- 3 bd
- 2 ba
- 2,380 sqft
Rockwood plan in Windsong by Scott Felder Homes
Visit the community to experience this floor plan
Why tour with Jome?
- No pressure toursTour at your own pace with no sales pressure
- Expert guidanceGet insights from our home buying experts
- Exclusive accessSee homes and deals not available elsewhere
Jome is featured in
Plan description
May also be listed on the Scott Felder Homes website
Information last verified by Jome: Yesterday at 2:04 PM (January 20, 2026)
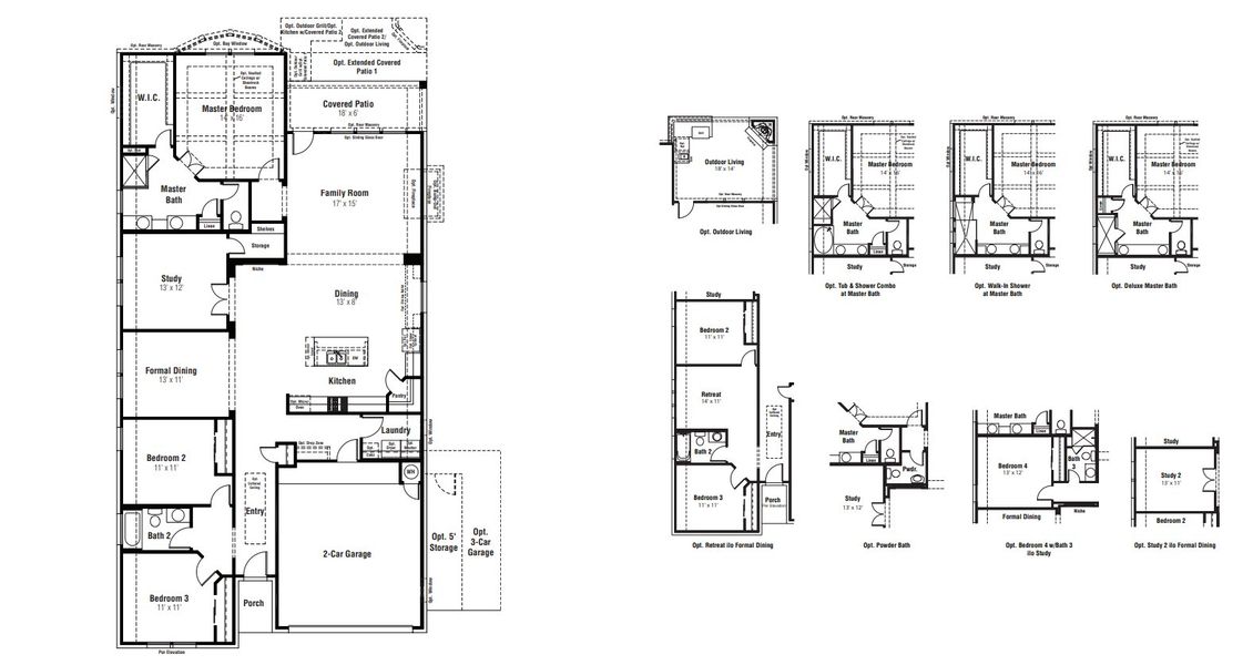
Plan details
- Name:
- Rockwood
- Property status:
- Floor plan
- Size:
- 2,380 sqft
- Stories:
- 1
- Beds from:
- 3
- Beds to:
- 4
- Baths from:
- 2
- Baths to:
- 3.5
- Garage spaces from:
- 2
- Garage spaces to:
- 3
Plan features & finishes
- Garage/Parking:
- GarageAttached Garage
- Interior Features:
- Walk-In ClosetPantry
- Kitchen:
- Kitchen Island
- Laundry facilities:
- Utility/Laundry Room
- Property amenities:
- PatioPorch
- Rooms:
- Primary Bedroom On MainKitchenOffice/StudyDining RoomFamily RoomOpen Concept FloorplanPrimary Bedroom Downstairs
- Upgrade Options:
- Bay WindowsSeparate Shower and TubPowder BathOutdoor LivingAlternate Primary BathAlternate ShowerGarage BayExtra BathroomExtra BedroomGarage Storage

Get a consultation with our New Homes Expert
- See how your home builds wealth
- Plan your home-buying roadmap
- Discover hidden gems
See the full plan layout
Download the floor plan PDF with room dimensions and home design details.

Instant download, no cost

Community details
Windsong
by Scott Felder Homes, Boerne, TX
- 6 homes
- 19 plans
- 1,805 - 3,274 sqft
View Windsong details
Want to know more about what's around here?
The Rockwood floor plan is part of Windsong, a new home community by Scott Felder Homes, located in Boerne, TX. Visit the Windsong community page for full neighborhood insights, including nearby schools, shopping, walk & bike-scores, commuting, air quality & natural hazards.

Available homes in Windsong
- Home at address 9824 Rockcress Rd, Boerne, TX 78006

Upton
$529,990
- 4 bd
- 3.5 ba
- 2,055 sqft
9824 Rockcress Rd, Boerne, TX 78006
- Home at address 27521 Golden Crst, Boerne, TX 78006

Elgin
$577,990
- 4 bd
- 3 ba
- 2,252 sqft
27521 Golden Crst, Boerne, TX 78006
- Home at address 9929 Aurora Hl, Boerne, TX 78006

Franklin
$589,990
- 4 bd
- 3 ba
- 2,419 sqft
9929 Aurora Hl, Boerne, TX 78006
- Home at address 9820 Rockcress Rd, Boerne, TX 78006

Lamar
$598,990
- 4 bd
- 3.5 ba
- 2,654 sqft
9820 Rockcress Rd, Boerne, TX 78006
- Home at address 27514 Golden Crst, Boerne, TX 78006

Englewood
$599,990
- 4 bd
- 3 ba
- 2,509 sqft
27514 Golden Crst, Boerne, TX 78006
- Home at address 27510 Golden Crst, Boerne, TX 78006

Guadalupe
$658,990
- 4 bd
- 3.5 ba
- 2,736 sqft
27510 Golden Crst, Boerne, TX 78006
More floor plans in Windsong

Considering this plan?
Our expert will guide your tour, in-person or virtual
Need more information?
Text or call (888) 486-2818
Financials
Estimated monthly payment
Let us help you find your dream home
How many bedrooms are you looking for?
Similar homes nearby
Recently added communities in this area
Nearby communities in Boerne
New homes in nearby cities
More New Homes in Boerne, TX
- Jome
- New homes search
- Texas
- Greater San Antonio
- Bexar County
- Boerne
- Windsong
- 9972 Aurora Hill St, Boerne, TX 78006



































