









Book your tour. Save an average of $18,473. We'll handle the rest.
- Confirmed tours
- Get matched & compare top deals
- Expert help, no pressure
- No added fees
Estimated value based on Jome data, T&C apply
- 3 bd
- 2.5 ba
- 2,602 sqft
Livingston plan in Carillon by M/I Homes
Visit the community to experience this floor plan
Why tour with Jome?
- No pressure toursTour at your own pace with no sales pressure
- Expert guidanceGet insights from our home buying experts
- Exclusive accessSee homes and deals not available elsewhere
Jome is featured in
Plan description
May also be listed on the M/I Homes website
Information last verified by Jome: Today at 5:16 AM (February 3, 2026)
Plan details
- Name:
- Livingston
- Property status:
- Floor plan
- Size from:
- 2,602 sqft
- Size to:
- 2,918 sqft
- Stories:
- 2
- Beds from:
- 3
- Beds to:
- 6
- Baths from:
- 2
- Baths to:
- 4
- Half baths:
- 1
- Garage spaces:
- 2
Plan features & finishes
- Garage/Parking:
- GarageAttached Garage
- Interior Features:
- Walk-In ClosetFoyerPantryStorage
- Kitchen:
- Kitchen Island
- Laundry facilities:
- Utility/Laundry Room
- Property amenities:
- Porch
- Rooms:
- Primary Bedroom On MainKitchenPowder RoomGame RoomDining RoomFamily RoomOpen Concept FloorplanPrimary Bedroom Downstairs
- Upgrade Options:
- Bay WindowsCovered PatioOffice/StudyGarage BayExtra BathroomExtra BedroomExtended PatioGarage Storage

Get a consultation with our New Homes Expert
- See how your home builds wealth
- Plan your home-buying roadmap
- Discover hidden gems
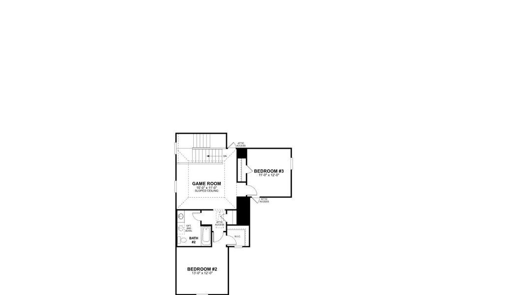
See the full plan layout
Download the floor plan PDF with room dimensions and home design details.

Instant download, no cost

Community details
Carillon at Carillon
by M/I Homes, Manor, TX
- 24 homes
- 14 plans
- 1,829 - 3,739 sqft
View Carillon details
Want to know more about what's around here?
The Livingston floor plan is part of Carillon, a new home community by M/I Homes, located in Manor, TX. Visit the Carillon community page for full neighborhood insights, including nearby schools, shopping, walk & bike-scores, commuting, air quality & natural hazards.

Homes built from this plan
Available homes in Carillon
- Home at address 19921 Hirono Dr, Manor, TX 78653

Boone I
$339,990
- 4 bd
- 2 ba
- 1,938 sqft
19921 Hirono Dr, Manor, TX 78653
- Home at address 19909 Hirono Dr, Manor, TX 78653

Boone I
$349,990
- 3 bd
- 2 ba
- 1,938 sqft
19909 Hirono Dr, Manor, TX 78653
- Home at address 20013 Hirono Dr, Manor, TX 78653

Esperanza
$359,990
- 4 bd
- 2 ba
- 2,108 sqft
20013 Hirono Dr, Manor, TX 78653
- Home at address 19917 Hirono Dr, Manor, TX 78653

Esperanza
$359,990
- 4 bd
- 2 ba
- 2,108 sqft
19917 Hirono Dr, Manor, TX 78653
- Home at address 13701 Warnock Trl, Manor, TX 78653

Sheldon I
$369,990
- 3 bd
- 2 ba
- 2,074 sqft
13701 Warnock Trl, Manor, TX 78653
- Home at address 19913 Hirono Dr, Manor, TX 78653

Pizarro I
$369,990
- 4 bd
- 3 ba
- 2,033 sqft
19913 Hirono Dr, Manor, TX 78653
More floor plans in Carillon

Considering this plan?
Our expert will guide your tour, in-person or virtual
Need more information?
Text or call (888) 486-2818
Financials
Estimated monthly payment
Let us help you find your dream home
How many bedrooms are you looking for?
Similar homes nearby
Recently added communities in this area
Nearby communities in Manor
New homes in nearby cities
More New Homes in Manor, TX
- Jome
- New homes search
- Texas
- Greater Austin Area
- Travis County
- Manor
- Carillon
- 13305 Eppright Trce, Manor, TX 78653



































