



Book your tour. Save an average of $18,473. We'll handle the rest.
- Confirmed tours
- Get matched & compare top deals
- Expert help, no pressure
- No added fees
Estimated value based on Jome data, T&C apply
- 4 bd
- 3.5 ba
- 3,274 sqft
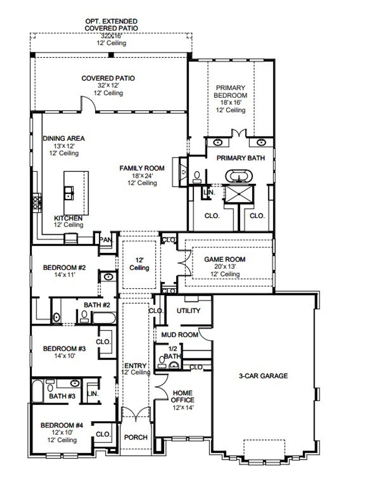
3274A plan in Enchanted Creek 1 Acre by Perry Homes
Visit the community to experience this floor plan
Why tour with Jome?
- No pressure toursTour at your own pace with no sales pressure
- Expert guidanceGet insights from our home buying experts
- Exclusive accessSee homes and deals not available elsewhere
Jome is featured in
Plan description
May also be listed on the Perry Homes website
Information last verified by Jome: Today at 6:26 AM (January 21, 2026)
Plan details
- Name:
- 3274A
- Property status:
- Floor plan
- Size:
- 3,274 sqft
- Stories:
- 1
- Beds:
- 4
- Baths:
- 3
- Half baths:
- 1
- Garage spaces:
- 3
Plan features & finishes
- Garage/Parking:
- GarageAttached Garage
- Interior Features:
- Walk-In ClosetPantry
- Laundry facilities:
- Utility/Laundry Room
- Property amenities:
- Covered PatioPorch
- Rooms:
- Primary Bedroom On MainKitchenGame RoomOffice/StudyMudroomDining RoomFamily RoomOpen Concept FloorplanPrimary Bedroom Downstairs
- Upgrade Options:
- Extended Patio

Get a consultation with our New Homes Expert
- See how your home builds wealth
- Plan your home-buying roadmap
- Discover hidden gems
See the full plan layout
Download the floor plan PDF with room dimensions and home design details.

Instant download, no cost

Community details
Enchanted Creek 1 Acre
by Perry Homes, Lucas, TX
- 4 homes
- 17 plans
- 3,274 - 5,573 sqft
View Enchanted Creek 1 Acre details
Want to know more about what's around here?
The 3274A floor plan is part of Enchanted Creek 1 Acre, a new home community by Perry Homes, located in Allen, TX. Visit the Enchanted Creek 1 Acre community page for full neighborhood insights, including nearby schools, shopping, walk & bike-scores, commuting, air quality & natural hazards.

Available homes in Enchanted Creek 1 Acre
- Home at address 270 Cottar Dr, Lucas, TX 75002

3716A
$1,399,900
- 4 bd
- 4.5 ba
- 3,716 sqft
270 Cottar Dr, Lucas, TX 75002
- Home at address 201 Cottar Dr, Lucas, TX 75002

3992A
$1,449,900
- 4 bd
- 4.5 ba
- 3,992 sqft
201 Cottar Dr, Lucas, TX 75002
- Home at address 121 Cottar Dr, Lucas, TX 75002

4336W
$1,499,900
- 5 bd
- 5.5 ba
- 4,989 sqft
121 Cottar Dr, Lucas, TX 75002
- Home at address 1005 Chariot Ln, Lucas, TX 75002

3992A
$1,599,900
- 4 bd
- 4.5 ba
- 3,992 sqft
1005 Chariot Ln, Lucas, TX 75002
More floor plans in Enchanted Creek 1 Acre

Considering this plan?
Our expert will guide your tour, in-person or virtual
Need more information?
Text or call (888) 486-2818
Financials
Estimated monthly payment
Let us help you find your dream home
How many bedrooms are you looking for?
Similar homes nearby
Recently added communities in this area
Nearby communities in Allen
New homes in nearby cities
More New Homes in Allen, TX
- Jome
- New homes search
- Texas
- Dallas-Fort Worth Area
- Collin County
- Allen
- Enchanted Creek 1 Acre
- 221 Thunder Bay Dr, Allen, TX 75002

































