














Book your tour. Save an average of $18,473. We'll handle the rest.
- Confirmed tours
- Get matched & compare top deals
- Expert help, no pressure
- No added fees
Estimated value based on Jome data, T&C apply

























- 4 bd
- 2.5 ba
- 2,237 sqft
Riviera - 40 Homesites plan in Two Step Farm by Coventry Homes
Visit the community to experience this floor plan
Why tour with Jome?
- No pressure toursTour at your own pace with no sales pressure
- Expert guidanceGet insights from our home buying experts
- Exclusive accessSee homes and deals not available elsewhere
Jome is featured in
Plan description
May also be listed on the Coventry Homes website
Information last verified by Jome: Monday at 2:18 AM (November 10, 2025)
Plan highlights
Plan details
- Name:
- Riviera - 40 Homesites
- Property status:
- Floor plan
- Lot width (feet):
- 40
- Size:
- 2,237 sqft
- Stories:
- 2
- Beds:
- 4
- Baths:
- 2
- Half baths:
- 1
- Garage spaces:
- 2
Plan features & finishes
- Garage/Parking:
- GarageAttached Garage
- Interior Features:
- Walk-In ClosetFoyerPantry
- Kitchen:
- Kitchen Island
- Laundry facilities:
- Utility/Laundry Room
- Property amenities:
- Porch
- Rooms:
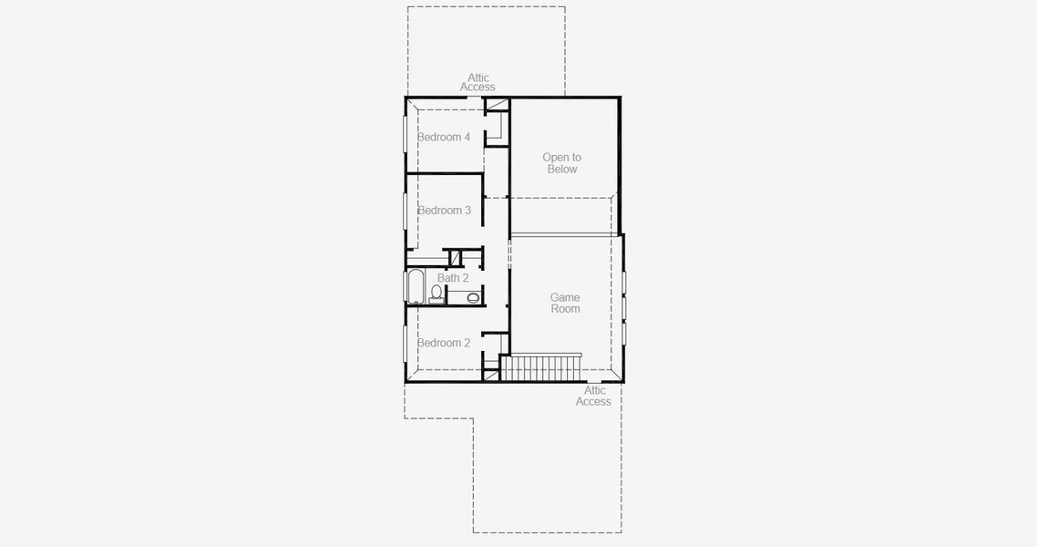
- Primary Bedroom On MainKitchenPowder RoomGame RoomOffice/StudyDining RoomFamily RoomOpen Concept FloorplanPrimary Bedroom Downstairs
- Upgrade Options:
- Extended GarageCovered PatioShower in Primary BathMedia RoomAlternate KitchenGarage BayExtra BathroomShowerFireplace
See the full plan layout
Download the floor plan PDF with room dimensions and home design details.

Instant download, no cost

Community details
Two Step Farm at Two Step Farm
by Coventry Homes, Montgomery, TX
- 21 homes
- 20 plans
- 1,526 - 3,081 sqft
View Two Step Farm details
Want to know more about what's around here?
The Riviera - 40 Homesites floor plan is part of Two Step Farm, a new home community by Coventry Homes, located in Montgomery, TX. Visit the Two Step Farm community page for full neighborhood insights, including nearby schools, shopping, walk & bike-scores, commuting, air quality & natural hazards.

Available homes in Two Step Farm
More floor plans in Two Step Farm

Considering this plan?
Our expert will guide your tour, in-person or virtual
Need more information?
Text or call (888) 486-2818
Financials
Estimated monthly payment
Similar homes nearby
Recently added communities in this area
Nearby communities in Montgomery
New homes in nearby cities
More New Homes in Montgomery, TX
- Home
- New homes
- Texas
- Greater Houston Area
- Montgomery County
- Montgomery
- Two Step Farm
- 8134 Yall St, Montgomery, TX 77316








































