





Book your tour. Save an average of $18,473. We'll handle the rest.
- Confirmed tours
- Get matched & compare top deals
- Expert help, no pressure
- No added fees
Estimated value based on Jome data, T&C apply
- 4 bd
- 0.5 ba
- 2,305 sqft
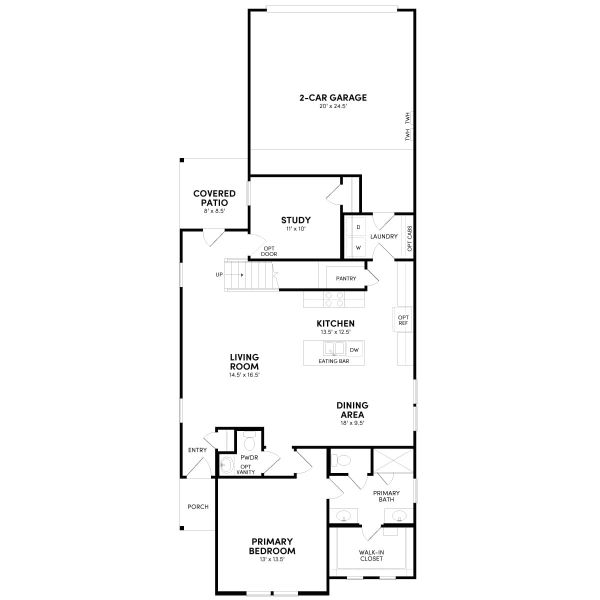
Bluebonnet plan in 40' Alley Load Homes at Elyson by Brookfield Residential
Visit the community to experience this floor plan
Why tour with Jome?
- No pressure toursTour at your own pace with no sales pressure
- Expert guidanceGet insights from our home buying experts
- Exclusive accessSee homes and deals not available elsewhere
Jome is featured in
Plan description
May also be listed on the Brookfield Residential website
Information last verified by Jome: Today at 7:00 AM (January 11, 2026)
Book your tour. Save an average of $18,473. We'll handle the rest.
We collect exclusive builder offers, book your tours, and support you from start to housewarming.
- Confirmed tours
- Get matched & compare top deals
- Expert help, no pressure
- No added fees
Estimated value based on Jome data, T&C apply
Plan details
- Name:
- Bluebonnet
- Property status:
- Floor plan
- Lot width (feet):
- 40
- Size from:
- 2,305 sqft
- Size to:
- 2,340 sqft
- Stories:
- 2
- Beds:
- 4
- Half baths:
- 1
- Garage spaces:
- 2
Plan features & finishes
- Garage/Parking:
- GarageAttached Garage
- Interior Features:
- Walk-In ClosetPantry
- Kitchen:
- Kitchen Island
- Laundry facilities:
- Utility/Laundry Room
- Property amenities:
- PatioPorch
- Rooms:
- Primary Bedroom On MainKitchenPowder RoomGame RoomOffice/StudyDining RoomLiving RoomOpen Concept FloorplanPrimary Bedroom Downstairs

Community details
40' Alley Load Homes at Elyson at Elyson
by Brookfield Residential, Katy, TX
- 7 homes
- 4 plans
- 1,594 - 2,305 sqft
View 40' Alley Load Homes at Elyson details
Want to know more about what's around here?
The Bluebonnet floor plan is part of 40' Alley Load Homes at Elyson, a new home community by Brookfield Residential, located in Katy, TX. Visit the 40' Alley Load Homes at Elyson community page for full neighborhood insights, including nearby schools, shopping, walk & bike-scores, commuting, air quality & natural hazards.

Homes built from this plan
Available homes in 40' Alley Load Homes at Elyson
- Home at address 6411 Prospect Oaks Pkwy, Katy, TX 77449

Verbena
$369,990
- 4 bd
- 2.5 ba
- 2,080 sqft
6411 Prospect Oaks Pkwy, Katy, TX 77449
- Home at address 6423 Prospect Oaks Pkwy, Katy, TX 77449

Verbena
$384,990
- 4 bd
- 2.5 ba
- 2,080 sqft
6423 Prospect Oaks Pkwy, Katy, TX 77449
More floor plans in 40' Alley Load Homes at Elyson

Considering this plan?
Our expert will guide your tour, in-person or virtual
Need more information?
Text or call (888) 486-2818
Financials
Estimated monthly payment
Similar homes nearby
Recently added communities in this area
Nearby communities in Katy
New homes in nearby cities
More New Homes in Katy, TX
- Jome
- New homes search
- Texas
- Greater Houston Area
- Harris County
- Katy
- 40' Alley Load Homes at Elyson
- 7314 Prairie Lakeshore Ln, Katy, TX 77493




























