














Book your tour. Save an average of $18,473. We'll handle the rest.
- Confirmed tours
- Get matched & compare top deals
- Expert help, no pressure
- No added fees
Estimated value based on Jome data, T&C apply





- 4 bd
- 3.5 ba
- 2,305 sqft
6415 Prospect Oaks Pkwy, Katy, TX 77449
Why tour with Jome?
- No pressure toursTour at your own pace with no sales pressure
- Expert guidanceGet insights from our home buying experts
- Exclusive accessSee homes and deals not available elsewhere
Jome is featured in
- Single-Family
- Quick move-in
- $173.53/sqft
- Northeast facing
Home description
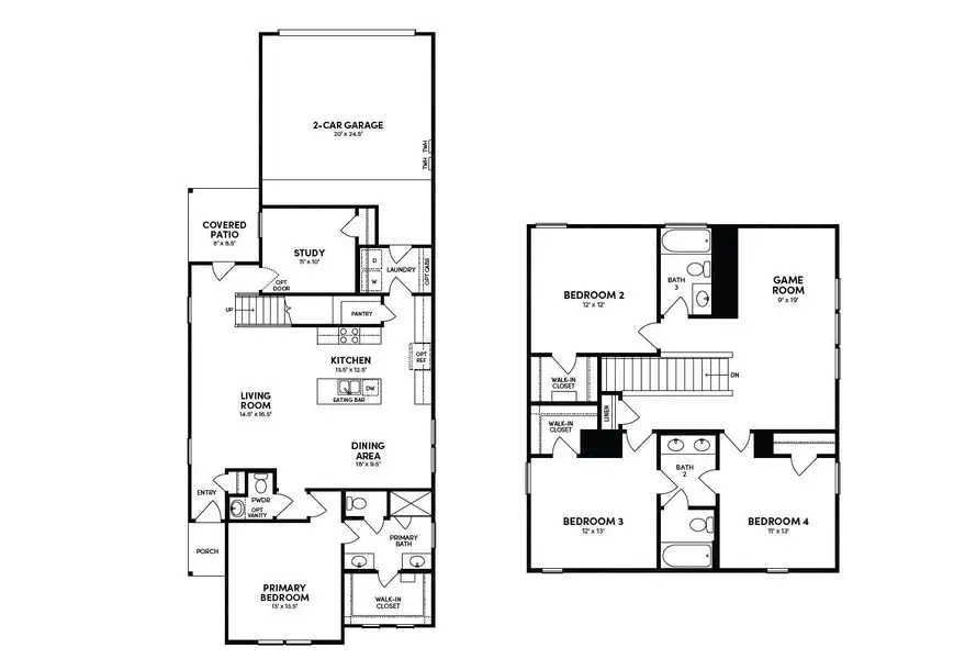
NEW NEIGHBORHOOD IN ELYSON - CY-FAIR ISD. With a downstairs Primary bedroom, a study, and 3 additional bedrooms upstairs, the Bluebonnet is designed for easy Texas living. This two-story home with 3.5 baths offers an open-concept living and dining area. Don't miss the large walk-in pantry under the stairs. Homeowners will appreciate the pass-through mud/utility room from the garage to the kitchen. The study is tucked in the rear of the home, offering a quiet work-from-home spot that overlooks the back covered patio. Upstairs, the open game room can be a second living area, playroom, or hangout spot for the 3 upstairs bedrooms. Enjoy Elyson’s new Lakeside Landing amenity center, featuring 2 pools, a splash pad, a fitness center, a community center, and a great lawn. Additional community perks include a pool, fitness center, game room, event lawn, tennis and pickleball courts, parks, and trails. *Rendering shown does not reflect final design, materials, or features.
Nan & Company Properties - Corporate Office (Heights), MLS 29593612
May also be listed on the Brookfield Residential website
Information last verified by Jome: Today at 2:30 AM (January 11, 2026)
Book your tour. Save an average of $18,473. We'll handle the rest.
We collect exclusive builder offers, book your tours, and support you from start to housewarming.
- Confirmed tours
- Get matched & compare top deals
- Expert help, no pressure
- No added fees
Estimated value based on Jome data, T&C apply
Home details
- Property status:
- Move-in ready
- Lot size (acres):
- 0.11
- Size:
- 2,305 sqft
- Stories:
- 2
- Beds:
- 4
- Baths:
- 3
- Half baths:
- 1
- Garage spaces:
- 2
- Facing direction:
- Northeast
Construction details
- Builder Name:
- Brookfield Residential
- Completion Date:
- December, 2025
- Year Built:
- 2025
- Roof:
- Composition Roofing
Home features & finishes
- Construction Materials:
- CementBrick
- Foundation Details:
- Slab
- Garage/Parking:
- GarageAttached Garage
- Interior Features:
- Walk-In ClosetPantry
- Kitchen:
- DishwasherMicrowave OvenOvenDisposalGas CooktopKitchen IslandGas OvenKitchen Range
- Laundry facilities:
- DryerWasherUtility/Laundry Room
- Property amenities:
- PatioPorch
- Rooms:
- Primary Bedroom On MainKitchenPowder RoomGame RoomOffice/StudyDining RoomLiving RoomOpen Concept FloorplanPrimary Bedroom Downstairs
Utility information
- Heating:
- Gas Heating

Community details
40' Alley Load Homes at Elyson at Elyson
by Brookfield Residential, Katy, TX
- 7 homes
- 4 plans
- 1,594 - 2,305 sqft
View 40' Alley Load Homes at Elyson details
More homes in 40' Alley Load Homes at Elyson
- Home at address 6411 Prospect Oaks Pkwy, Katy, TX 77449

Verbena
$369,990
- 4 bd
- 2.5 ba
- 2,080 sqft
6411 Prospect Oaks Pkwy, Katy, TX 77449
- Home at address 6423 Prospect Oaks Pkwy, Katy, TX 77449

Verbena
$384,990
- 4 bd
- 2.5 ba
- 2,080 sqft
6423 Prospect Oaks Pkwy, Katy, TX 77449
- Home at address 6435 Prospect Oaks Pkwy, Katy, TX 77449

Bluebonnet
$389,990
- 4 bd
- 3.5 ba
- 2,305 sqft
6435 Prospect Oaks Pkwy, Katy, TX 77449
- Home at address 6403 Prospect Oaks Pkwy, Katy, TX 77449

Bluebonnet
$399,990
- 4 bd
- 3.5 ba
- 2,305 sqft
6403 Prospect Oaks Pkwy, Katy, TX 77449
Floor plans in 40' Alley Load Homes at Elyson
About the builder - Brookfield Residential
Neighborhood
Home address
Schools in Cypress-Fairbanks Independent School District
GreatSchools’ Summary Rating calculation is based on 4 of the school’s themed ratings, including test scores, student/academic progress, college readiness, and equity. This information should only be used as a reference. Jome is not affiliated with GreatSchools and does not endorse or guarantee this information. Please reach out to schools directly to verify all information and enrollment eligibility. Data provided by GreatSchools.org © 2025
Places of interest
Getting around
Air quality

Considering this home?
Our expert will guide your tour, in-person or virtual
Need more information?
Text or call (888) 486-2818
Financials
Estimated monthly payment
Similar homes nearby
Recently added communities in this area
Nearby communities in Katy
New homes in nearby cities
More New Homes in Katy, TX
Nan & Company Properties - Corporate Office (Heights), MLS 29593612
Copyright © 2025, Houston Realtors Information Service, Inc. The information provided is exclusively for consumers’ personal, non-commercial use, and may not be used for any purpose other than to identify prospective properties consumers may be interested in purchasing. Information is deemed reliable but not guaranteed. All information provided should be independently verified.
Read moreLast checked Jan 11, 2:50 pm
- Jome
- New homes search
- Texas
- Greater Houston Area
- Harris County
- Katy
- 40' Alley Load Homes at Elyson
- 6415 Prospect Oaks Pkwy, Katy, TX 77449


























