














Book your tour. Save an average of $18,473. We'll handle the rest.
- Confirmed tours
- Get matched & compare top deals
- Expert help, no pressure
- No added fees
Estimated value based on Jome data, T&C apply







- 4 bd
- 2 ba
- 1,756 sqft
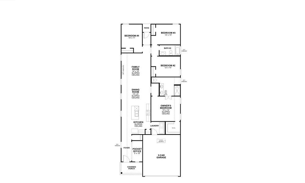
Periwinkle - 30' Smart Series plan in Lane Ranch by M/I Homes
Visit the community to experience this floor plan
Why tour with Jome?
- No pressure toursTour at your own pace with no sales pressure
- Expert guidanceGet insights from our home buying experts
- Exclusive accessSee homes and deals not available elsewhere
Jome is featured in
Plan description
May also be listed on the M/I Homes website
Information last verified by Jome: Today at 6:09 AM (December 5, 2025)
Plan highlights
Plan details
- Name:
- Periwinkle - 30' Smart Series
- Property status:
- Floor plan
- Lot width (feet):
- 30
- Size:
- 1,756 sqft
- Stories:
- 1
- Beds:
- 4
- Baths:
- 2
- Garage spaces:
- 2
Plan features & finishes
- Garage/Parking:
- GarageAttached Garage
- Interior Features:
- Walk-In ClosetFoyerPantry
- Kitchen:
- Kitchen Island
- Laundry facilities:
- Utility/Laundry Room
- Property amenities:
- Pocket OfficePatioPorch
- Rooms:
- Primary Bedroom On MainKitchenDining RoomFamily RoomOpen Concept FloorplanPrimary Bedroom Downstairs
- Upgrade Options:
- Bay WindowsCovered PatioOffice/StudyFireplace
See the full plan layout
Download the floor plan PDF with room dimensions and home design details.

Instant download, no cost

Community details
Lane Ranch
by M/I Homes, Sanger, TX
- 7 homes
- 23 plans
- 1,510 - 2,869 sqft
View Lane Ranch details
Want to know more about what's around here?
The Periwinkle - 30' Smart Series floor plan is part of Lane Ranch, a new home community by M/I Homes, located in Sanger, TX. Visit the Lane Ranch community page for full neighborhood insights, including nearby schools, shopping, walk & bike-scores, commuting, air quality & natural hazards.

Available homes in Lane Ranch
More floor plans in Lane Ranch

Considering this plan?
Our expert will guide your tour, in-person or virtual
Need more information?
Text or call (888) 486-2818
Financials
Estimated monthly payment
Similar homes nearby
Recently added communities in this area
Nearby communities in Sanger
New homes in nearby cities
More New Homes in Sanger, TX
- Home
- New homes
- Texas
- Dallas-Fort Worth Area
- Denton County
- Sanger
- Lane Ranch
- 8024 Butterfield Dr, Sanger, TX 76266




































