








Book your tour. Save an average of $18,473. We'll handle the rest.
We collect exclusive builder offers, book your tours, and support you from start to housewarming.
- Confirmed tours
- Get matched & compare top deals
- Expert help, no pressure
- No added fees
Estimated value based on Jome data, T&C apply




















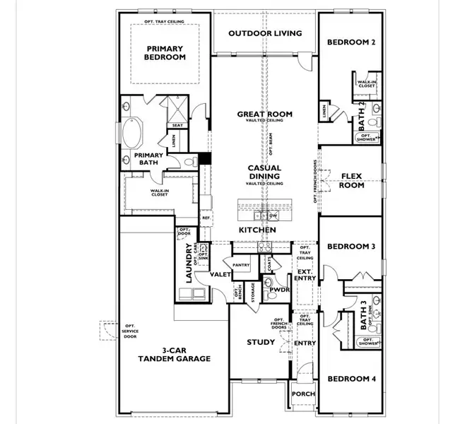
- 4 bd
- 3.5 ba
- 2,815 sqft
5039 plan in Legacy by Shea Homes
Visit the community to experience this floor plan
Why tour with Jome?
- No pressure toursTour at your own pace with no sales pressure
- Expert guidanceGet insights from our home buying experts
- Exclusive accessSee homes and deals not available elsewhere
Jome is featured in
Plan description
May also be listed on the Shea Homes website
Information last verified by Jome: Today at 4:46 AM (April 21, 2026)
Plan details
- Name:
- 5039
- Property type:
- Floor plan
- Community:
- Legacy
- Builder:
- Shea Homes
- Collection:
- Legacy 65'
- Lot width (feet):
- 65
- Size from:
- 2,815 sqft
- Size to:
- 2,834 sqft
- Stories:
- 1
- Beds:
- 4
- Baths:
- 3
- Half baths:
- 1
- Garage spaces:
- 3
Plan features & finishes
- Garage/Parking:
- GarageAttached GarageTandem Parking
- Interior Features:
- Walk-In ClosetPantryWalk-In PantryDouble Vanity
- Kitchen:
- Kitchen Island
- Laundry facilities:
- Utility/Laundry Room
- Property amenities:
- Outdoor LivingPorch
- Rooms:
- Flex RoomPrimary Bedroom On MainKitchenOffice/StudyDining RoomFamily RoomPrimary Bedroom Downstairs
- Upgrade Options:
- Bay WindowsTray CeilingExtended Outdoor LivingFormal Dining RoomFrench DoorSecondary SuiteFireplaceGarage Storage

Get a consultation with our New Homes Expert
- See how your home builds wealth
- Plan your home-buying roadmap
- Discover hidden gems
See the full plan layout
Download the floor plan PDF with room dimensions and home design details.

Instant download, no cost

Community details
Legacy at Legacy
by Shea Homes, Friendswood, TX
- 6 homes
- 8 plans
- 2,671 - 3,953 sqft
View Legacy details
Want to know more about what's around here?
The 5039 floor plan is part of Legacy, a new home community by Shea Homes, located in Friendswood, TX. Visit the Legacy community page for full neighborhood insights, including nearby schools, shopping, walk & bike-scores, commuting, air quality & natural hazards.

Homes built from this plan
Available homes in Legacy
- Home at address 910 Hilltop View Ln, Friendswood, TX 77573

5029
Legacy 65'
$729,990
- 4 bd
- 3.5 ba
- 3,116 sqft
910 Hilltop View Ln, Friendswood, TX 77573
- Home at address 925 Groundwater Wy, Friendswood, TX 77546

5029
Legacy 65'
$739,990
- 4 bd
- 3.5 ba
- 3,116 sqft
925 Groundwater Wy, Friendswood, TX 77546
- Home at address 7001 Discovery Well Ln, Friendswood, TX 77546

5042
Legacy 65'
$779,990
- 4 bd
- 4 ba
- 3,671 sqft
7001 Discovery Well Ln, Friendswood, TX 77546
- Home at address 914 Groundwater Wy, League City, TX 77546

5058
Legacy 65'
$779,990
- 5 bd
- 4 ba
- 3,821 sqft
914 Groundwater Wy, League City, TX 77546
- Home at address 918 Groundwater, League City, TX 77546

5072 Elevation D
Legacy 65'
$789,990
- 5 bd
- 4.5 ba
- 3,953 sqft
918 Groundwater, League City, TX 77546
More floor plans in Legacy

Considering this plan?
Our expert will guide your tour, in-person or virtual
Need more information?
Text or call (888) 545-5198
Financials
Estimated monthly payment
Let us help you find your dream home
How many bedrooms are you looking for?































