














Book your tour. Save an average of $18,473. We'll handle the rest.
We collect exclusive builder offers, book your tours, and support you from start to housewarming.
- Confirmed tours
- Get matched & compare top deals
- Expert help, no pressure
- No added fees
Estimated value based on Jome data, T&C apply


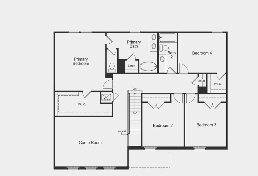
- 4 bd
- 2.5 ba
- 2,831 sqft
2831 plan in Davina by KB Home
Visit the community to experience this floor plan
Why tour with Jome?
- No pressure toursTour at your own pace with no sales pressure
- Expert guidanceGet insights from our home buying experts
- Exclusive accessSee homes and deals not available elsewhere
Jome is featured in
Plan description
May also be listed on the KB Home website
Information last verified by Jome: Today at 12:52 AM (March 8, 2026)
Plan details
Plan features & finishes
- Garage/Parking:
- GarageAttached Garage
- Home amenities:
- ENERGY STAR Certified
- Interior Features:
- Walk-In ClosetStorage
- Kitchen:
- Granite countertopKitchen CountertopKitchen IslandKitchen Range
- Laundry facilities:
- Utility/Laundry Room
- Rooms:
- Primary Bedroom On MainKitchenDen RoomPowder RoomOpen Concept FloorplanPrimary Bedroom DownstairsPrimary Bedroom Upstairs
- Upgrade Options:
- Separate Shower and TubBuilt-in KitchenShower in Primary BathExtra BathroomDouble DoorsExtra BedroomExtended Patio

Get a consultation with our New Homes Expert
- See how your home builds wealth
- Plan your home-buying roadmap
- Discover hidden gems
Utility information
- Heating:
- Tankless water heater
See the full plan layout
Download the floor plan PDF with room dimensions and home design details.

Instant download, no cost

Community details
Davina
by KB Home, Rosenberg, TX
- 9 plans
- 1,527 - 3,171 sqft
View Davina details
Want to know more about what's around here?
The 2831 floor plan is part of Davina, a new home community by KB Home, located in Rosenberg, TX. Visit the Davina community page for full neighborhood insights, including nearby schools, shopping, walk & bike-scores, commuting, air quality & natural hazards.

More floor plans in Davina

Considering this plan?
Our expert will guide your tour, in-person or virtual
Need more information?
Text or call (888) 488-9243
Financials
Let us help you find your dream home
How many bedrooms are you looking for?
Similar homes nearby
Recently added communities in this area
Nearby communities in Rosenberg
New homes in nearby cities
More New Homes in Rosenberg, TX
- Jome
- New homes search
- Texas
- Greater Houston Area
- Fort Bend County
- Rosenberg
- Davina
- Rosenberg, TX 77471































