









Book your tour. Save an average of $18,473. We'll handle the rest.
We collect exclusive builder offers, book your tours, and support you from start to housewarming.
- Confirmed tours
- Get matched & compare top deals
- Expert help, no pressure
- No added fees
Estimated value based on Jome data, T&C apply







































- 3 bd
- 2 ba
- 1,638 sqft
Cap Rock II plan in Tierra Del Este 91 by LEH. Homes
Visit the community to experience this floor plan
Why tour with Jome?
- No pressure toursTour at your own pace with no sales pressure
- Expert guidanceGet insights from our home buying experts
- Exclusive accessSee homes and deals not available elsewhere
Jome is featured in
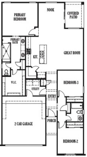
Plan description
May also be listed on the LEH. Homes website
Information last verified by Jome: Today at 12:06 AM (April 22, 2026)
Plan details
- Name:
- Cap Rock II
- Property type:
- Floor plan
- Community:
- Tierra Del Este 91
- Builder:
- LEH. Homes
- Price from:
- $259,950
- Price to:
- $309,950
- Size:
- 1,638 sqft
- Stories:
- 1
- Beds:
- 3
- Baths:
- 2
- Garage spaces:
- 2
Plan features & finishes
- Garage/Parking:
- GarageAttached Garage
- Interior Features:
- Walk-In ClosetPantry
- Kitchen:
- Kitchen Island
- Laundry facilities:
- Utility/Laundry Room
- Property amenities:
- PatioPorch
- Rooms:
- Primary Bedroom On MainKitchenNookFamily RoomPrimary Bedroom Downstairs

Get a consultation with our New Homes Expert
- See how your home builds wealth
- Plan your home-buying roadmap
- Discover hidden gems
See the full plan layout
Download the floor plan PDF with room dimensions and home design details.

Instant download, no cost

Community details
Tierra Del Este 91
by LEH. Homes, El Paso, TX
- 4 homes
- 8 plans
- 1,605 - 2,057 sqft
View Tierra Del Este 91 details
Want to know more about what's around here?
The Cap Rock II floor plan is part of Tierra Del Este 91, a new home community by LEH. Homes, located in El Paso, TX. Visit the Tierra Del Este 91 community page for full neighborhood insights, including nearby schools, shopping, walk & bike-scores, commuting, air quality & natural hazards.

Available homes in Tierra Del Este 91
- Home at address 15232 Gauge Ct, El Paso, TX 79938

Cap Rock
Savings$285,950
- 3 bd
- 2 ba
- 1,605 sqft
15232 Gauge Ct, El Paso, TX 79938
- Home at address 15217 Expectation Ave, El Paso, TX 79938

Cap Rock
Savings$306,950
- 3 bd
- 2 ba
- 1,605 sqft
15217 Expectation Ave, El Paso, TX 79938
- Home at address 15128 Destination Ave, El Paso, TX 79938

Sand Hills
Savings$311,950
- 3 bd
- 2 ba
- 1,691 sqft
15128 Destination Ave, El Paso, TX 79938
- Home at address 3844 Surmise St, El Paso, TX 79938

Sand Hills
Savings$313,950
- 3 bd
- 2 ba
- 1,691 sqft
3844 Surmise St, El Paso, TX 79938
More floor plans in Tierra Del Este 91

Considering this plan?
Our expert will guide your tour, in-person or virtual
Need more information?
Text or call (888) 545-5198
Financials
Estimated monthly payment
Let us help you find your dream home
How many bedrooms are you looking for?
Similar homes nearby
Recently added communities in this area
Nearby communities in El Paso
New homes in nearby cities
More New Homes in El Paso, TX
- Jome
- New homes search
- Texas
- El Paso County
- El Paso
- Tierra Del Este 91
- 15232 Gauge Ct, El Paso, TX 79938

























