



Book your tour. Save an average of $18,473. We'll handle the rest.
We collect exclusive builder offers, book your tours, and support you from start to housewarming.
- Confirmed tours
- Get matched & compare top deals
- Expert help, no pressure
- No added fees
Estimated value based on Jome data, T&C apply
- 3 bd
- 2 ba
- 1,400 sqft
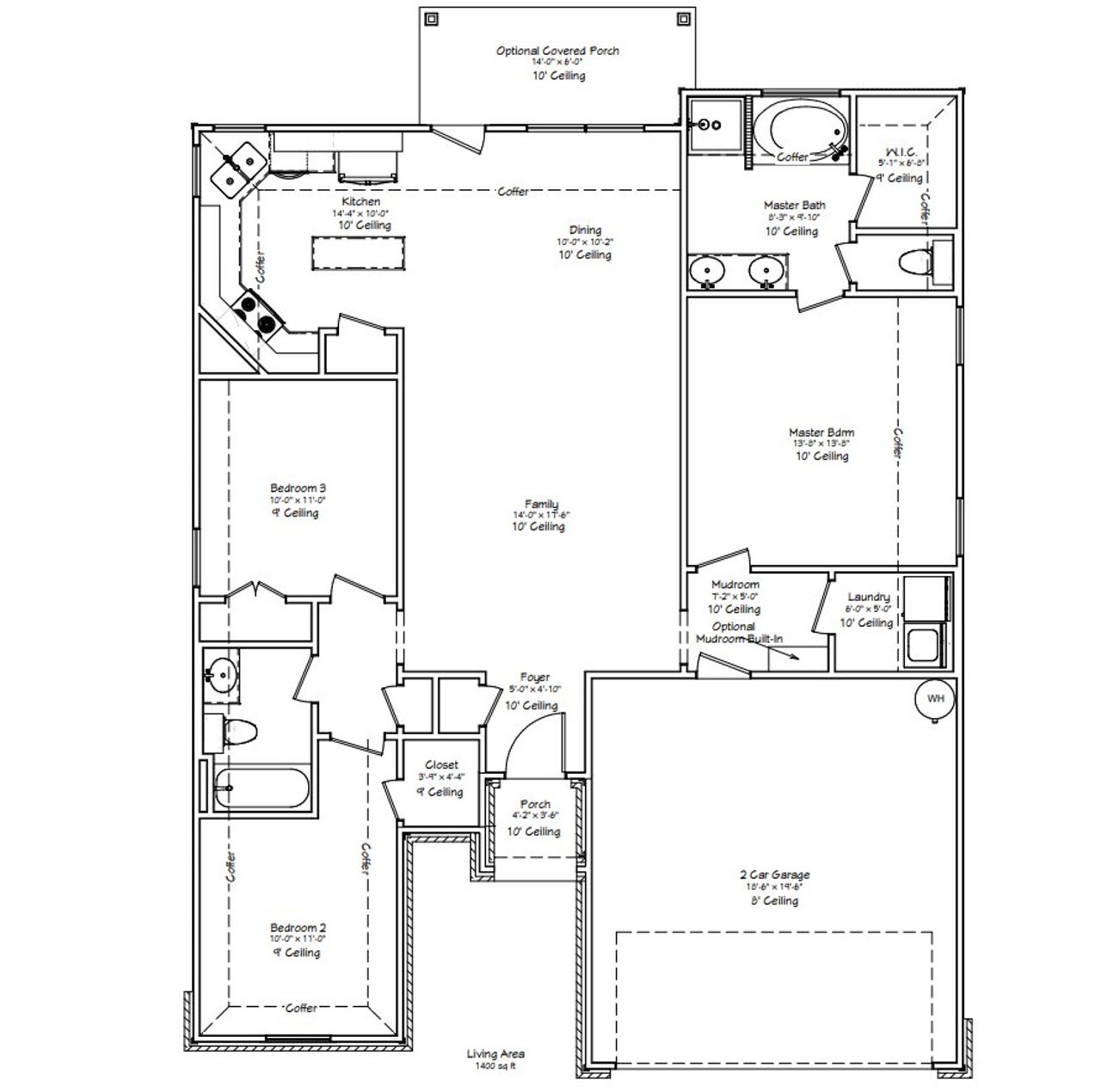
The Holly plan in Rudder Pointe by Avonley Homes
Visit the community to experience this floor plan
Why tour with Jome?
- No pressure toursTour at your own pace with no sales pressure
- Expert guidanceGet insights from our home buying experts
- Exclusive accessSee homes and deals not available elsewhere
Jome is featured in
Plan description
May also be listed on the Avonley Homes website
Information last verified by Jome: Today at 12:02 AM (April 20, 2026)
Plan details
- Name:
- The Holly
- Property type:
- Floor plan
- Community:
- Rudder Pointe
- Builder:
- Avonley Homes
- Size:
- 1,400 sqft
- Stories:
- 1
- Beds:
- 3
- Baths:
- 2
- Garage spaces:
- 2
Plan features & finishes
- Garage/Parking:
- GarageAttached Garage
- Interior Features:
- Walk-In ClosetFoyerPantry
- Kitchen:
- Kitchen Island
- Laundry facilities:
- Utility/Laundry Room
- Property amenities:
- Porch
- Rooms:
- Primary Bedroom On MainKitchenMudroomDining RoomFamily RoomPrimary Bedroom Downstairs
- Upgrade Options:
- Mudroom Built-inCovered Porch

Get a consultation with our New Homes Expert
- See how your home builds wealth
- Plan your home-buying roadmap
- Discover hidden gems
See the full plan layout
Download the floor plan PDF with room dimensions and home design details.

Instant download, no cost

Community details
Rudder Pointe
by Avonley Homes, Bryan, TX
- 3 homes
- 13 plans
- 1,400 - 2,550 sqft
View Rudder Pointe details
Want to know more about what's around here?
The The Holly floor plan is part of Rudder Pointe, a new home community by Avonley Homes, located in Bryan, TX. Visit the Rudder Pointe community page for full neighborhood insights, including nearby schools, shopping, walk & bike-scores, commuting, air quality & natural hazards.

Available homes in Rudder Pointe
- Home at address 3196 Margaret Rudder Pkwy, Bryan, TX 77808

The Marigold
$332,536
- 3 bd
- 2 ba
- 1,500 sqft
3196 Margaret Rudder Pkwy, Bryan, TX 77808
- Home at address 3544 Pointe Du Hoc Lp, Bryan, TX 77808

The Violet
$349,900
- 3 bd
- 2 ba
- 1,800 sqft
3544 Pointe Du Hoc Lp, Bryan, TX 77808
- Home at address 3105 Normandy Wy, Bryan, TX 77808

The Poppy
Contact for price
- 4 bd
- 2 ba
- 1,900 sqft
3105 Normandy Wy, Bryan, TX 77808
More floor plans in Rudder Pointe

Considering this plan?
Our expert will guide your tour, in-person or virtual
Need more information?
Text or call (888) 545-5198
Financials
Estimated monthly payment
Let us help you find your dream home
How many bedrooms are you looking for?
Similar homes nearby
Recently added communities in this area
Nearby communities in Bryan
New homes in nearby cities
More New Homes in Bryan, TX
- Jome
- New homes search
- Texas
- Brazos County
- Bryan
- Rudder Pointe
- 3105 Normandy Wy, Bryan, TX 77808































