














Book your tour. Save an average of $18,473. We'll handle the rest.
- Confirmed tours
- Get matched & compare top deals
- Expert help, no pressure
- No added fees
Estimated value based on Jome data, T&C apply






- 4 bd
- 2 ba
- 2,550 sqft
The Azalea plan in Rudder Pointe by Avonley Homes
Visit the community to experience this floor plan
Why tour with Jome?
- No pressure toursTour at your own pace with no sales pressure
- Expert guidanceGet insights from our home buying experts
- Exclusive accessSee homes and deals not available elsewhere
Jome is featured in
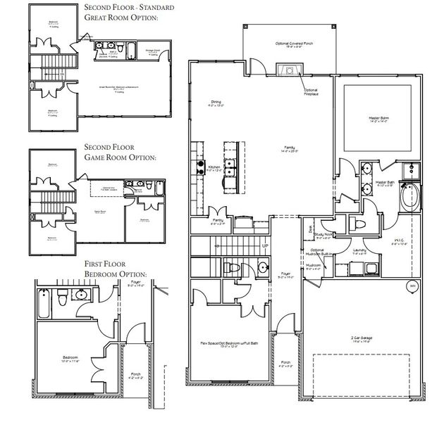
Plan description
May also be listed on the Avonley Homes website
Information last verified by Jome: Today at 12:01 AM (December 30, 2025)
Plan highlights
Plan details
- Name:
- The Azalea
- Property status:
- Floor plan
- Size:
- 2,550 sqft
- Stories:
- 2
- Beds from:
- 4
- Beds to:
- 5
- Baths:
- 2
- Garage spaces:
- 2
Plan features & finishes
- Garage/Parking:
- GarageAttached Garage
- Interior Features:
- Walk-In ClosetFoyerPantry
- Kitchen:
- Kitchen Island
- Laundry facilities:
- Utility/Laundry Room
- Property amenities:
- FireplacePorch
- Rooms:
- Primary Bedroom On MainKitchenMudroomDining RoomFamily RoomPrimary Bedroom Downstairs
- Upgrade Options:
- Game RoomMudroom benchCovered PorchFireplace

Get a consultation with our New Homes Expert
- See how your home builds wealth
- Plan your home-buying roadmap
- Discover hidden gems
See the full plan layout
Download the floor plan PDF with room dimensions and home design details.

Instant download, no cost

Community details
Rudder Pointe
by Avonley Homes, Bryan, TX
- 4 homes
- 14 plans
- 1,400 - 2,550 sqft
View Rudder Pointe details
Want to know more about what's around here?
The The Azalea floor plan is part of Rudder Pointe, a new home community by Avonley Homes, located in Bryan, TX. Visit the Rudder Pointe community page for full neighborhood insights, including nearby schools, shopping, walk & bike-scores, commuting, air quality & natural hazards.

Available homes in Rudder Pointe
More floor plans in Rudder Pointe

Considering this plan?
Our expert will guide your tour, in-person or virtual
Need more information?
Text or call (888) 486-2818
Financials
Estimated monthly payment
Let us help you find your dream home
How many bedrooms are you looking for?
Similar homes nearby
Recently added communities in this area
Nearby communities in Bryan
New homes in nearby cities
More New Homes in Bryan, TX
- Jome
- New homes search
- Texas
- Brazos County
- Bryan
- Rudder Pointe
- 3105 Normandy Wy, Bryan, TX 77808
























