






Book your tour. Save an average of $18,473. We'll handle the rest.
We collect exclusive builder offers, book your tours, and support you from start to housewarming.
- Confirmed tours
- Get matched & compare top deals
- Expert help, no pressure
- No added fees
Estimated value based on Jome data, T&C apply



- 5 bd
- 4.5 ba
- 4,773 sqft
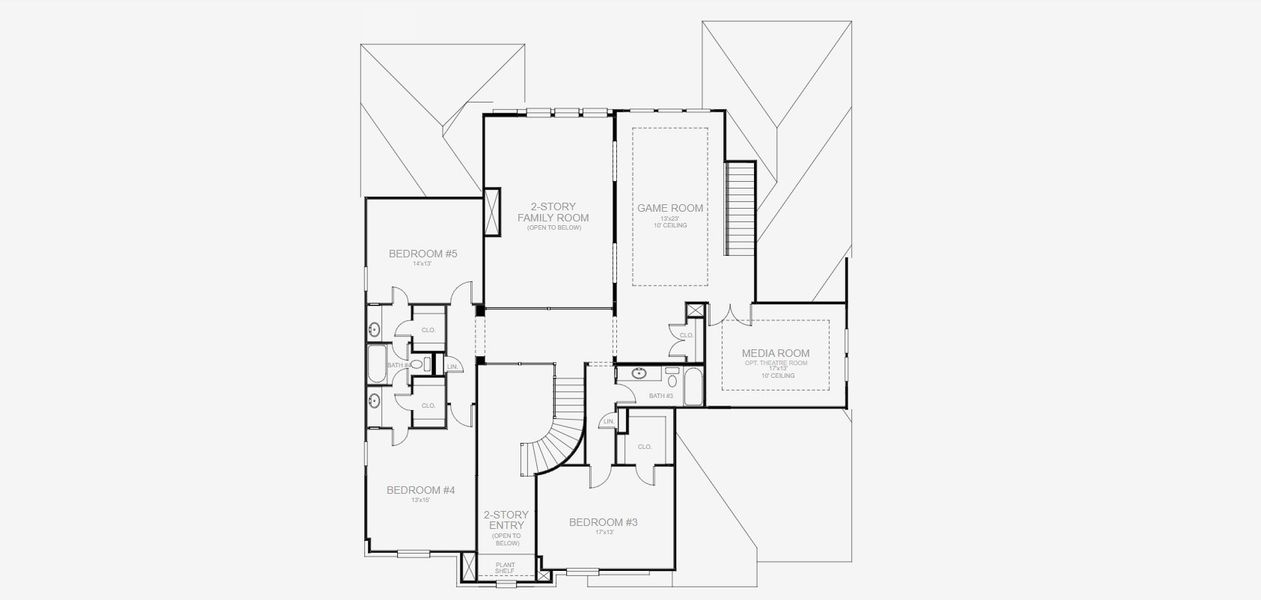
4773W plan in Briarley by Perry Homes
Visit the community to experience this floor plan
Why tour with Jome?
- No pressure toursTour at your own pace with no sales pressure
- Expert guidanceGet insights from our home buying experts
- Exclusive accessSee homes and deals not available elsewhere
Jome is featured in
Plan description
May also be listed on the Perry Homes website
Information last verified by Jome: Today at 6:15 AM (April 25, 2026)
Plan details
- Name:
- 4773W
- Property type:
- Floor plan
- Community:
- Briarley
- Builder:
- Perry Homes
- Collection:
- Briarley 70'
- Lot width (feet):
- 70
- Size:
- 4,773 sqft
- Stories:
- 2
- Beds:
- 5
- Baths:
- 4
- Half baths:
- 1
- Garage spaces:
- 3
Plan features & finishes
- Garage/Parking:
- GarageAttached Garage
- Interior Features:
- Walk-In ClosetFoyerPantry
- Kitchen:
- Kitchen Island
- Laundry facilities:
- Utility/Laundry Room
- Property amenities:
- Two-Story Entry FoyerPatioPorch
- Rooms:
- Primary Bedroom On MainKitchenTwo-Story Great RoomPowder RoomOffice/StudyMudroomDining RoomBreakfast AreaPrimary Bedroom Downstairs
- Upgrade Options:
- Freestanding TubVanity at Halt BathCovered PatioTheatre RoomSliding DoorsExtended Patio

Get a consultation with our New Homes Expert
- See how your home builds wealth
- Plan your home-buying roadmap
- Discover hidden gems
See the full plan layout
Download the floor plan PDF with room dimensions and home design details.

Instant download, no cost

Community details
Briarley at Briarley
by Perry Homes, Montgomery, TX
- 17 homes
- 56 plans
- 2,600 - 4,994 sqft
View Briarley details
Want to know more about what's around here?
The 4773W floor plan is part of Briarley, a new home community by Perry Homes, located in Montgomery, TX. Visit the Briarley community page for full neighborhood insights, including nearby schools, shopping, walk & bike-scores, commuting, air quality & natural hazards.

Available homes in Briarley
- Home at address 459 Lone Ranger Dr, Montgomery, TX 77316

3568W
Briarley 60'
$574,900
- 5 bd
- 4.5 ba
- 3,798 sqft
459 Lone Ranger Dr, Montgomery, TX 77316
- Home at address 619 Gunner Dr, Montgomery, TX 77316

3399W
Briarley 60'
$599,900
- 5 bd
- 4.5 ba
- 3,619 sqft
619 Gunner Dr, Montgomery, TX 77316
- Home at address 623 Gunner Dr, Montgomery, TX 77316

3593W
Briarley 60'
$599,900
- 5 bd
- 4 ba
- 3,593 sqft
623 Gunner Dr, Montgomery, TX 77316
- Home at address 523 Koda Bear Ct, Montgomery, TX 77316

3546W
Briarley 60'
$624,900
- 5 bd
- 4.5 ba
- 3,546 sqft
523 Koda Bear Ct, Montgomery, TX 77316
- Home at address 610 Gunner Dr, Montgomery, TX 77316

3399W
Briarley 60'
$624,900
- 5 bd
- 4.5 ba
- 3,619 sqft
610 Gunner Dr, Montgomery, TX 77316
- Home at address 506 Koda Bear Ct, Montgomery, TX 77316

3399W
Briarley 60'
$646,900
- 5 bd
- 4.5 ba
- 3,619 sqft
506 Koda Bear Ct, Montgomery, TX 77316
More floor plans in Briarley

Considering this plan?
Our expert will guide your tour, in-person or virtual
Need more information?
Text or call (888) 545-5198
Financials
Estimated monthly payment
Let us help you find your dream home
How many bedrooms are you looking for?
Similar homes nearby
Recently added communities in this area
Nearby communities in Montgomery
New homes in nearby cities
More New Homes in Montgomery, TX
- Jome
- New homes search
- Texas
- Greater Houston Area
- Montgomery County
- Montgomery
- Briarley
- Briarley 70'
- 111 Plott Hound Dr, Montgomery, TX 77316


























