














Book your tour. Save an average of $18,473. We'll handle the rest.
- Confirmed tours
- Get matched & compare top deals
- Expert help, no pressure
- No added fees
Estimated value based on Jome data, T&C apply






















- 4 bd
- 4.5 ba
- 4,214 sqft
Altamura plan in Fulbrook on Fulshear Creek by Highland Homes
Visit the community to experience this floor plan
Why tour with Jome?
- No pressure toursTour at your own pace with no sales pressure
- Expert guidanceGet insights from our home buying experts
- Exclusive accessSee homes and deals not available elsewhere
Jome is featured in
Plan description
May also be listed on the Highland Homes website
Information last verified by Jome: Today at 1:46 AM (January 22, 2026)
Plan details
- Name:
- Altamura
- Property status:
- Floor plan
- Lot width (feet):
- 80
- Size:
- 4,214 sqft
- Stories:
- 2
- Beds from:
- 4
- Beds to:
- 5
- Baths from:
- 4
- Baths to:
- 5
- Half baths:
- 3
- Garage spaces:
- 3
Plan features & finishes
- Garage/Parking:
- GarageAttached Garage
- Interior Features:
- Walk-In ClosetFoyerPantryLoft
- Kitchen:
- Kitchen Island
- Laundry facilities:
- Utility/Laundry Room
- Property amenities:
- Outdoor Living
- Rooms:
- Primary Bedroom On MainKitchenPowder RoomGame RoomOffice/StudyDining RoomFamily RoomBreakfast AreaOpen Concept FloorplanPrimary Bedroom Downstairs
- Upgrade Options:
- Extended Outdoor LivingSliding Glass DoorsExtended Primary BedroomExtra BathroomOutdoor FireplaceSliding DoorsExtra BedroomFireplace

Get a consultation with our New Homes Expert
- See how your home builds wealth
- Plan your home-buying roadmap
- Discover hidden gems
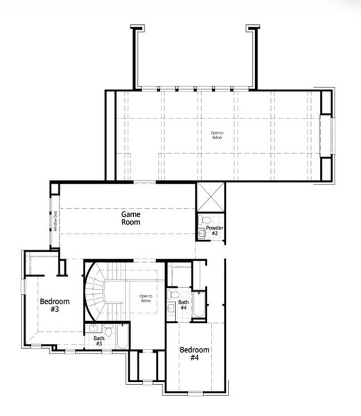
See the full plan layout
Download the floor plan PDF with room dimensions and home design details.

Instant download, no cost

Community details
Fulbrook on Fulshear Creek at Fulbrook on Fulshear Creek
by Highland Homes, Fulshear, TX
- 1 home
- 17 plans
- 3,184 - 4,788 sqft
View Fulbrook on Fulshear Creek details
Want to know more about what's around here?
The Altamura floor plan is part of Fulbrook on Fulshear Creek, a new home community by Highland Homes, located in Fulshear, TX. Visit the Fulbrook on Fulshear Creek community page for full neighborhood insights, including nearby schools, shopping, walk & bike-scores, commuting, air quality & natural hazards.

Available homes in Fulbrook on Fulshear Creek
- Home at address 5418 Rose Ridge Dr, Fulshear, TX 77441

Ravenna Plan
$1,112,173
- 6 bd
- 7.5 ba
- 4,733 sqft
5418 Rose Ridge Dr, Fulshear, TX 77441
More floor plans in Fulbrook on Fulshear Creek

Considering this plan?
Our expert will guide your tour, in-person or virtual
Need more information?
Text or call (888) 486-2818
Financials
Estimated monthly payment
Let us help you find your dream home
How many bedrooms are you looking for?
Similar homes nearby
Recently added communities in this area
Nearby communities in Fulshear
New homes in nearby cities
More New Homes in Fulshear, TX
- Jome
- New homes search
- Texas
- Greater Houston Area
- Fort Bend County
- Fulshear
- Fulbrook on Fulshear Creek
- 5306 Lakeview Bnd, Fulshear, TX 77441



































