







Book your tour. Save an average of $18,473. We'll handle the rest.
We collect exclusive builder offers, book your tours, and support you from start to housewarming.
- Confirmed tours
- Get matched & compare top deals
- Expert help, no pressure
- No added fees
Estimated value based on Jome data, T&C apply




































- 5 bd
- 2.5 ba
- 1,892 sqft
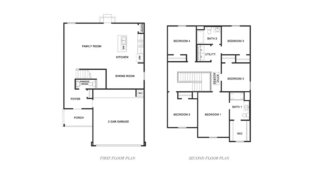
The Franklin plan in Avenida by D.R. Horton
Visit the community to experience this floor plan
Why tour with Jome?
- No pressure toursTour at your own pace with no sales pressure
- Expert guidanceGet insights from our home buying experts
- Exclusive accessSee homes and deals not available elsewhere
Jome is featured in
Plan description
May also be listed on the D.R. Horton website
Information last verified by Jome: Yesterday at 12:43 PM (April 14, 2026)
Plan highlights
Book your tour. Save an average of $18,473. We'll handle the rest.
We collect exclusive builder offers, book your tours, and support you from start to housewarming.
- Confirmed tours
- Get matched & compare top deals
- Expert help, no pressure
- No added fees
Estimated value based on Jome data, T&C apply
Plan details
- Name:
- The Franklin
- Property type:
- Floor plan
- Community:
- Avenida
- Builder:
- D.R. Horton
- Size:
- 1,892 sqft
- Stories:
- 2
- Beds:
- 5
- Baths:
- 2.5
- Garage spaces:
- 2
Plan features & finishes
- Garage/Parking:
- GarageAttached Garage
- Interior Features:
- Walk-In ClosetFoyerPantry
- Kitchen:
- Stainless Steel AppliancesKitchen CountertopKitchen Island
- Laundry facilities:
- Utility/Laundry Room
- Property amenities:
- CabinetsSmart Home SystemPorch
- Rooms:
- KitchenPowder RoomDining RoomFamily RoomOpen Concept FloorplanPrimary Bedroom Upstairs

Get a consultation with our New Homes Expert
- See how your home builds wealth
- Plan your home-buying roadmap
- Discover hidden gems

Community details
Avenida
by D.R. Horton, Converse, TX
- 65 homes
- 15 plans
- 1,156 - 2,677 sqft
View Avenida details
Want to know more about what's around here?
The The Franklin floor plan is part of Avenida, a new home community by D.R. Horton, located in Converse, TX. Visit the Avenida community page for full neighborhood insights, including nearby schools, shopping, walk & bike-scores, commuting, air quality & natural hazards.

Homes built from this plan
Available homes in Avenida
- Home at address 12540 Spoor Vly, Converse, TX 78109

The Knight
$265,000
- 5 bd
- 2.5 ba
- 1,892 sqft
12540 Spoor Vly, Converse, TX 78109
- Home at address 12561 Spoor Vly, Converse, TX 78109

The Franklin
$281,795
- 5 bd
- 2.5 ba
- 1,892 sqft
12561 Spoor Vly, Converse, TX 78109
- Home at address 5224 Wild Boar Xing, Converse, TX 78109

The Franklin
$305,295
- 5 bd
- 2.5 ba
- 1,892 sqft
5224 Wild Boar Xing, Converse, TX 78109
- Home at address 12650 Olozaga, Converse, TX 78109

The Lombardi
$373,500
- 5 bd
- 2.5 ba
- 2,539 sqft
12650 Olozaga, Converse, TX 78109
- Home at address 12748 El Arrayan, Converse, TX 78109

The Callum
$376,500
- 5 bd
- 3.5 ba
- 2,677 sqft
12748 El Arrayan, Converse, TX 78109
- Home at address 12602 Gral Bustamante, Converse, TX 78109

The Callum
$383,500
- 5 bd
- 3.5 ba
- 2,660 sqft
12602 Gral Bustamante, Converse, TX 78109
More floor plans in Avenida

Considering this plan?
Our expert will guide your tour, in-person or virtual
Need more information?
Text or call (888) 545-5198
Financials
Estimated monthly payment
Let us help you find your dream home
How many bedrooms are you looking for?
Similar homes nearby
Recently added communities in this area
Nearby communities in Converse
New homes in nearby cities
More New Homes in Converse, TX
- Jome
- New homes search
- Texas
- Greater San Antonio
- Bexar County
- Converse
- Avenida
- 5318 La Rambla, Converse, TX 78109

































