




Book your tour. Save an average of $18,473. We'll handle the rest.
We collect exclusive builder offers, book your tours, and support you from start to housewarming.
- Confirmed tours
- Get matched & compare top deals
- Expert help, no pressure
- No added fees
Estimated value based on Jome data, T&C apply
- 4 bd
- 4.5 ba
- 4,137 sqft
644A plan in Star Trail 76' by Britton Homes
Visit the community to experience this floor plan
Why tour with Jome?
- No pressure toursTour at your own pace with no sales pressure
- Expert guidanceGet insights from our home buying experts
- Exclusive accessSee homes and deals not available elsewhere
Jome is featured in
Plan description
May also be listed on the Britton Homes website
Information last verified by Jome: Thursday at 12:37 PM (February 26, 2026)
Plan highlights
Plan details
- Name:
- 644A
- Property type:
- Floor plan
- Community:
- Star Trail 76'
- Builder:
- Britton Homes
- Lot width (feet):
- 76
- Size:
- 4,137 sqft
- Stories:
- 2
- Beds:
- 4
- Baths:
- 4.5
- Garage spaces:
- 4
Plan features & finishes
- Appliances:
- Sprinkler System
- Garage/Parking:
- GarageAttached Garage
- Interior Features:
- Ceiling-HighWalk-In ClosetPantry
- Kitchen:
- Gas CooktopKitchen Island
- Laundry facilities:
- Utility/Laundry Room
- Property amenities:
- SodBathtub in primaryFireplaceSmart Home System
- Rooms:
- Primary Bedroom On MainKitchenPowder RoomGame RoomMedia RoomOffice/StudyMudroomDining RoomFamily RoomOpen Concept FloorplanPrimary Bedroom Downstairs
- Upgrade Options:
- Freestanding TubLaundry SinkAlternate KitchenSliding DoorsExtra BedroomExtended Patio

Get a consultation with our New Homes Expert
- See how your home builds wealth
- Plan your home-buying roadmap
- Discover hidden gems
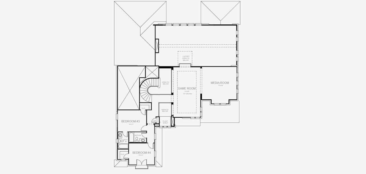
See the full plan layout
Download the floor plan PDF with room dimensions and home design details.

Instant download, no cost

Community details
Star Trail 76' at Star Trail
by Britton Homes, Prosper, TX
- 7 homes
- 12 plans
- 3,433 - 4,920 sqft
View Star Trail 76' details
Want to know more about what's around here?
The 644A floor plan is part of Star Trail 76', a new home community by Britton Homes, located in Prosper, TX. Visit the Star Trail 76' community page for full neighborhood insights, including nearby schools, shopping, walk & bike-scores, commuting, air quality & natural hazards.

Available homes in Star Trail 76'
- Home at address 2570 Fountain St, Prosper, TX 75078

617A
$1,322,900
- 4 bd
- 4.5 ba
- 3,522 sqft
2570 Fountain St, Prosper, TX 75078
- Home at address 2571 Fountain St, Prosper, TX 75078

634A
$1,366,900
- 5 bd
- 5.5 ba
- 4,553 sqft
2571 Fountain St, Prosper, TX 75078
- Home at address 2500 Fountain St, Prosper, TX 75078

651A
$1,388,900
- 5 bd
- 4.5 ba
- 4,900 sqft
2500 Fountain St, Prosper, TX 75078
- Home at address 2560 Fountain St, Prosper, TX 75078

630A
$1,396,900
- 5 bd
- 5.5 ba
- 4,828 sqft
2560 Fountain St, Prosper, TX 75078
- Home at address 2581 Fountain St, Prosper, TX 75078

655A
$1,399,900
- 5 bd
- 5.5 ba
- 4,800 sqft
2581 Fountain St, Prosper, TX 75078
- Home at address 2591 Fountain St, Prosper, TX 75078

630A
$1,449,900
- 5 bd
- 5.5 ba
- 4,828 sqft
2591 Fountain St, Prosper, TX 75078
More floor plans in Star Trail 76'

Considering this plan?
Our expert will guide your tour, in-person or virtual
Need more information?
Text or call (888) 488-9243
Financials
Estimated monthly payment
Let us help you find your dream home
How many bedrooms are you looking for?
Similar homes nearby
Recently added communities in this area
Nearby communities in Prosper
New homes in nearby cities
More New Homes in Prosper, TX
- Jome
- New homes search
- Texas
- Dallas-Fort Worth Area
- Collin County
- Prosper
- Star Trail 76'
- 841 Overlook Dr, Prosper, TX 75078





























