






Book your tour. Save an average of $18,473. We'll handle the rest.
We collect exclusive builder offers, book your tours, and support you from start to housewarming.
- Confirmed tours
- Get matched & compare top deals
- Expert help, no pressure
- No added fees
Estimated value based on Jome data, T&C apply



- 4 bd
- 2.5 ba
- 3,001 sqft
Lincoln 5130 plan in Feathergrass by GFO Home
Visit the community to experience this floor plan
Why tour with Jome?
- No pressure toursTour at your own pace with no sales pressure
- Expert guidanceGet insights from our home buying experts
- Exclusive accessSee homes and deals not available elsewhere
Jome is featured in
Plan description
May also be listed on the GFO Home website
Information last verified by Jome: Thursday at 3:23 AM (April 16, 2026)
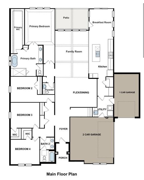
Plan details
- Name:
- Lincoln 5130
- Property type:
- Floor plan
- Community:
- Feathergrass
- Builder:
- GFO Home
- Size:
- 3,001 sqft
- Stories:
- 1
- Beds:
- 4
- Baths:
- 2.5
- Garage spaces:
- 3
Plan features & finishes
- Garage/Parking:
- GarageAttached Garage
- Interior Features:
- Walk-In ClosetFoyerPantry
- Kitchen:
- Gourmet Kitchen
- Laundry facilities:
- Utility/Laundry Room
- Property amenities:
- Covered PatioPatioPorch
- Rooms:
- Primary Bedroom On MainKitchenPowder RoomDining RoomFamily RoomBreakfast AreaPrimary Bedroom Downstairs
- Upgrade Options:
- Covered PatioOffice/Study

Get a consultation with our New Homes Expert
- See how your home builds wealth
- Plan your home-buying roadmap
- Discover hidden gems
See the full plan layout
Download the floor plan PDF with room dimensions and home design details.

Instant download, no cost

Community details
Feathergrass
by GFO Home, Florence, TX
- 5 homes
- 7 plans
- 3,001 - 4,456 sqft
View Feathergrass details
Want to know more about what's around here?
The Lincoln 5130 floor plan is part of Feathergrass, a new home community by GFO Home, located in Florence, TX. Visit the Feathergrass community page for full neighborhood insights, including nearby schools, shopping, walk & bike-scores, commuting, air quality & natural hazards.

Available homes in Feathergrass
- Home at address 205 Three Rivers Rd, Georgetown, TX 76527

Emory Floor
$878,990
- 4 bd
- 4.5 ba
- 3,658 sqft
205 Three Rivers Rd, Georgetown, TX 76527
- Home at address 205 Three Rivers Rd, Georgetown, TX 78633

The Emory
$878,990
- 4 bd
- 4.5 ba
- 3,658 sqft
205 Three Rivers Rd, Georgetown, TX 78633
- Home at address 1209 Doelling Dr, Georgetown, TX 76527

Bluebonnet 6140
$898,990
- 4 bd
- 3.5 ba
- 4,046 sqft
1209 Doelling Dr, Georgetown, TX 76527
- Home at address 1412 Paxton Ln, Florence, TX 78633

Home
$983,082
- 5 bd
- 4.5 ba
- 4,456 sqft
1412 Paxton Ln, Florence, TX 78633
- Home at address 1412 Paxton Ln, Georgetown, TX 76527

Kennedy
$983,082
- 5 bd
- 4.5 ba
- 4,456 sqft
1412 Paxton Ln, Georgetown, TX 76527
More floor plans in Feathergrass

Considering this plan?
Our expert will guide your tour, in-person or virtual
Need more information?
Text or call (888) 545-5198
Financials
Estimated monthly payment
Let us help you find your dream home
How many bedrooms are you looking for?
Similar homes nearby
Recently added communities in this area
Nearby communities in Florence
New homes in nearby cities
More New Homes in Florence, TX
- Jome
- New homes search
- Texas
- Greater Austin Area
- Williamson County
- Florence
- Feathergrass
- 2578 County Road 245, Florence, TX 76527































