













Book your tour. Save an average of $18,473. We'll handle the rest.
We collect exclusive builder offers, book your tours, and support you from start to housewarming.
- Confirmed tours
- Get matched & compare top deals
- Expert help, no pressure
- No added fees
Estimated value based on Jome data, T&C apply














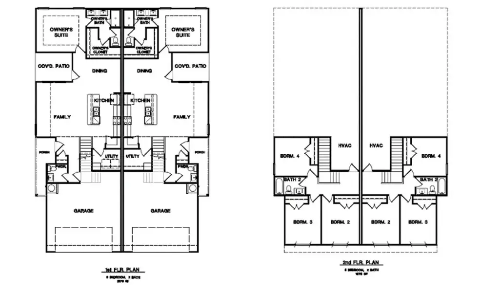
- 8 bd
- 4.5 ba
- 3,352 sqft
Duplex 1676 plan in Amanda Park by TwoTen Communities
Visit the community to experience this floor plan
Why tour with Jome?
- No pressure toursTour at your own pace with no sales pressure
- Expert guidanceGet insights from our home buying experts
- Exclusive accessSee homes and deals not available elsewhere
Jome is featured in
Plan description
May also be listed on the TwoTen Communities website
Information last verified by Jome: Thursday at 8:38 AM (January 15, 2026)
Plan details
- Name:
- Duplex 1676
- Property type:
- Floor plan
- Community:
- Amanda Park
- Builder:
- TwoTen Communities
- Size:
- 3,352 sqft
- Stories:
- 2
- Beds:
- 8
- Baths:
- 4.5
- Garage spaces:
- 4
Plan features & finishes
- Garage/Parking:
- GarageAttached Garage
- Interior Features:
- Walk-In ClosetPantryStaircases
- Kitchen:
- Kitchen Island
- Laundry facilities:
- Utility/Laundry Room
- Property amenities:
- BackyardCovered Outdoor Living
- Rooms:
- Primary Bedroom On MainKitchenMudroomDining RoomFamily RoomOpen Concept FloorplanPrimary Bedroom Downstairs

Get a consultation with our New Homes Expert
- See how your home builds wealth
- Plan your home-buying roadmap
- Discover hidden gems
See the full plan layout
Download the floor plan PDF with room dimensions and home design details.

Instant download, no cost

Community details
Amanda Park
by TwoTen Communities, San Antonio, TX
- 2 homes
- 3 plans
- 2,598 - 3,352 sqft
View Amanda Park details
Want to know more about what's around here?
The Duplex 1676 floor plan is part of Amanda Park, a new home community by TwoTen Communities, located in San Antonio, TX. Visit the Amanda Park community page for full neighborhood insights, including nearby schools, shopping, walk & bike-scores, commuting, air quality & natural hazards.

Available homes in Amanda Park
- Home at address 228-232 Nespral, San Antonio, TX 78253

Duplex 1299
$528,000
- 6 bd
- 4 ba
- 2,598 sqft
228-232 Nespral, San Antonio, TX 78253
- Home at address 422-426 Nespral, San Antonio, TX 78253

Duplex 1484
$549,000
- 6 bd
- 4 ba
- 2,968 sqft
422-426 Nespral, San Antonio, TX 78253
More floor plans in Amanda Park

Considering this plan?
Our expert will guide your tour, in-person or virtual
Need more information?
Text or call (888) 488-9243
Financials
Estimated monthly payment
Let us help you find your dream home
How many bedrooms are you looking for?
Similar homes nearby
Recently added communities in this area
Nearby communities in San Antonio
New homes in nearby cities
More New Homes in San Antonio, TX
- Jome
- New homes search
- Texas
- Greater San Antonio
- Medina County
- San Antonio
- Amanda Park
- 125 Nespral Dr, San Antonio, TX 78253




























