



Book your tour. Save an average of $18,473. We'll handle the rest.
- Confirmed tours
- Get matched & compare top deals
- Expert help, no pressure
- No added fees
Estimated value based on Jome data, T&C apply
- 3 bd
- 3.5 ba
- 2,137 sqft
Cleo plan in Skyview by Saratoga Homes
Visit the community to experience this floor plan
Why tour with Jome?
- No pressure toursTour at your own pace with no sales pressure
- Expert guidanceGet insights from our home buying experts
- Exclusive accessSee homes and deals not available elsewhere
Jome is featured in
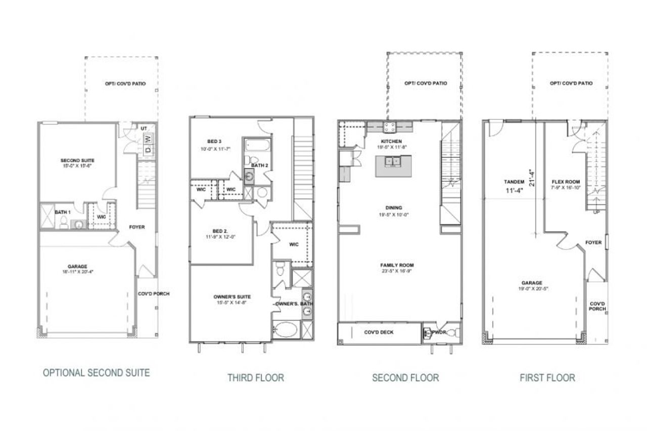
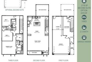
Plan description
May also be listed on the Saratoga Homes website
Information last verified by Jome: Tuesday at 2:54 PM (December 2, 2025)
Plan highlights
Plan details
- Name:
- Cleo
- Property status:
- Floor plan
- Size:
- 2,137 sqft
- Stories:
- 3+
- Beds:
- 3
- Baths:
- 3.5
- Garage spaces:
- 2
Plan features & finishes
- Garage/Parking:
- GarageAttached GarageTandem Parking
- Interior Features:
- Walk-In ClosetFoyer
- Kitchen:
- Kitchen Island
- Laundry facilities:
- Utility/Laundry Room
- Property amenities:
- DeckPorch
- Rooms:
- Flex RoomKitchenDining RoomFamily RoomOpen Concept FloorplanPrimary Bedroom Upstairs
See the full plan layout
Download the floor plan PDF with room dimensions and home design details.

Instant download, no cost

Community details
Skyview
by Saratoga Homes, Alvin, TX
- 5 homes
- 4 plans
- 2,137 - 2,637 sqft
View Skyview details
Want to know more about what's around here?
The Cleo floor plan is part of Skyview, a new home community by Saratoga Homes, located in Alvin, TX. Visit the Skyview community page for full neighborhood insights, including nearby schools, shopping, walk & bike-scores, commuting, air quality & natural hazards.

Available homes in Skyview
More floor plans in Skyview

Considering this plan?
Our expert will guide your tour, in-person or virtual
Need more information?
Text or call (888) 486-2818
Financials
Estimated monthly payment
Similar homes nearby
Recently added communities in this area
Nearby communities in Alvin
New homes in nearby cities
More New Homes in Alvin, TX
- Home
- New homes
- Texas
- Greater Houston Area
- Brazoria County
- Alvin
- Skyview
- 5320 Latigo Ct, Alvin, TX 77511































