








Book your tour. Save an average of $18,473. We'll handle the rest.
We collect exclusive builder offers, book your tours, and support you from start to housewarming.
- Confirmed tours
- Get matched & compare top deals
- Expert help, no pressure
- No added fees
Estimated value based on Jome data, T&C apply


















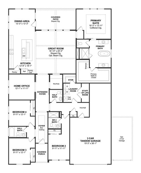
- 4 bd
- 3.5 ba
- 2,853 sqft
Glasgow plan in Waverly Place by K. Hovnanian® Homes
Visit the community to experience this floor plan
Why tour with Jome?
- No pressure toursTour at your own pace with no sales pressure
- Expert guidanceGet insights from our home buying experts
- Exclusive accessSee homes and deals not available elsewhere
Jome is featured in
Plan description
May also be listed on the K. Hovnanian® Homes website
Information last verified by Jome: Yesterday at 6:05 PM (April 16, 2026)
Plan details
- Name:
- Glasgow
- Property type:
- Floor plan
- Community:
- Waverly Place
- Builder:
- K. Hovnanian® Homes
- Size:
- 2,853 sqft
- Stories:
- 1
- Beds:
- 4
- Baths:
- 3.5
- Garage spaces:
- 3
Plan features & finishes
- Garage/Parking:
- GarageAttached GarageTandem Parking
- Interior Features:
- Walk-In ClosetFoyerPantryStorage
- Kitchen:
- Kitchen Island
- Laundry facilities:
- Utility/Laundry Room
- Property amenities:
- PatioPorch
- Rooms:
- Primary Bedroom On MainKitchenOffice/StudyDining RoomFamily RoomPrimary Bedroom Downstairs

Get a consultation with our New Homes Expert
- See how your home builds wealth
- Plan your home-buying roadmap
- Discover hidden gems
See the full plan layout
Download the floor plan PDF with room dimensions and home design details.

Instant download, no cost

Community details
Waverly Place
by K. Hovnanian® Homes, New Waverly, TX
- 7 homes
- 5 plans
- 2,499 - 3,711 sqft
View Waverly Place details
Want to know more about what's around here?
The Glasgow floor plan is part of Waverly Place, a new home community by K. Hovnanian® Homes, located in New Waverly, TX. Visit the Waverly Place community page for full neighborhood insights, including nearby schools, shopping, walk & bike-scores, commuting, air quality & natural hazards.

Homes built from this plan
Available homes in Waverly Place
- Home at address 113 Roebuck Ln, New Waverly, TX 77358

Belfast ESP
$529,999
- 4 bd
- 3 ba
- 2,499 sqft
113 Roebuck Ln, New Waverly, TX 77358
- Home at address 117 Roebuck Ln, New Waverly, TX 77358

Geneva
$569,325
- 4 bd
- 3.5 ba
- 2,855 sqft
117 Roebuck Ln, New Waverly, TX 77358
- Home at address 112 Roebuck Ln, New Waverly, TX 77358

Malmo
$585,000
- 4 bd
- 3.5 ba
- 3,209 sqft
112 Roebuck Ln, New Waverly, TX 77358
- Home at address 116 Roebuck Ln, New Waverly, TX 77358

Geneva
$587,955
- 4 bd
- 3.5 ba
- 2,861 sqft
116 Roebuck Ln, New Waverly, TX 77358
- Home at address 114 Roebuck Ln, New Waverly, TX 77358

Stirling
$632,380
- 5 bd
- 4.5 ba
- 3,707 sqft
114 Roebuck Ln, New Waverly, TX 77358
More floor plans in Waverly Place

Considering this plan?
Our expert will guide your tour, in-person or virtual
Need more information?
Text or call (888) 545-5198
Financials
Estimated monthly payment
Let us help you find your dream home
How many bedrooms are you looking for?
Similar homes nearby
Recently added communities in this area
Nearby communities in New Waverly
New homes in nearby cities
More New Homes in New Waverly, TX
- Jome
- New homes search
- Texas
- Greater Houston Area
- Walker County
- New Waverly
- Waverly Place
- 114 Luther Dean Ln, New Waverly, TX 77358




























