














Book your tour. Save an average of $18,473. We'll handle the rest.
We collect exclusive builder offers, book your tours, and support you from start to housewarming.
- Confirmed tours
- Get matched & compare top deals
- Expert help, no pressure
- No added fees
Estimated value based on Jome data, T&C apply






















- 4 bd
- 4.5 ba
- 3,585 sqft
Briggs plan in Candela by Coventry Homes
Visit the community to experience this floor plan
Why tour with Jome?
- No pressure toursTour at your own pace with no sales pressure
- Expert guidanceGet insights from our home buying experts
- Exclusive accessSee homes and deals not available elsewhere
Jome is featured in
Plan description
May also be listed on the Coventry Homes website
Information last verified by Jome: Yesterday at 2:36 AM (March 9, 2026)
Plan details
- Name:
- Briggs
- Property type:
- Floor plan
- Community:
- Candela
- Builder:
- Coventry Homes
- Collection:
- Candela 60'
- Lot width (feet):
- 60
- Size:
- 3,585 sqft
- Stories:
- 2
- Beds:
- 4
- Baths:
- 4
- Half baths:
- 1
- Garage spaces:
- 3
Plan features & finishes
- Garage/Parking:
- GarageAttached Garage
- Interior Features:
- Walk-In ClosetFoyerPantry
- Kitchen:
- Kitchen Island
- Laundry facilities:
- Laundry Facilities On Main LevelUtility/Laundry Room
- Rooms:
- Primary Bedroom On MainKitchenPowder RoomGame RoomOffice/StudyMudroomDining RoomFamily RoomOpen Concept FloorplanPrimary Bedroom Downstairs
- Upgrade Options:
- Extended GarageCovered PatioAlternate Primary BathMedia RoomAlternate KitchenGarage BayExtra BathroomSliding DoorsWine RoomExtra BedroomFireplaceExtended Patio

Get a consultation with our New Homes Expert
- See how your home builds wealth
- Plan your home-buying roadmap
- Discover hidden gems
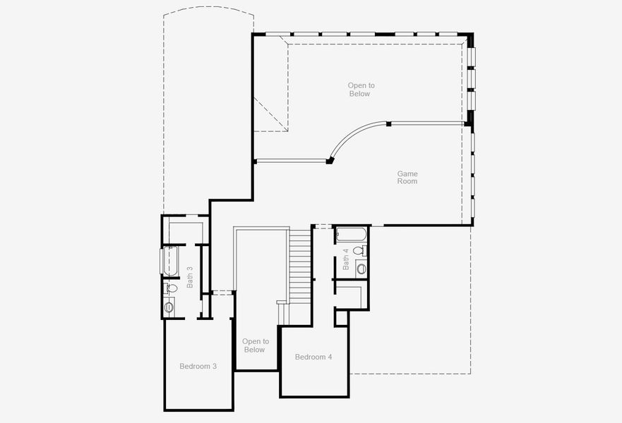
See the full plan layout
Download the floor plan PDF with room dimensions and home design details.

Instant download, no cost

Community details
Candela at Candela
by Coventry Homes, Richmond, TX
- 23 homes
- 31 plans
- 1,526 - 3,875 sqft
View Candela details
Want to know more about what's around here?
The Briggs floor plan is part of Candela, a new home community by Coventry Homes, located in Richmond, TX. Visit the Candela community page for full neighborhood insights, including nearby schools, shopping, walk & bike-scores, commuting, air quality & natural hazards.

Homes built from this plan
Available homes in Candela
- Home at address 8507 Mae James Trl, Richmond, TX 77406

Home
$381,990
- 4 bd
- 2 ba
- 1,755 sqft
8507 Mae James Trl, Richmond, TX 77406
- Home at address 126 Twilight Meadow Wy, Richmond, TX 77406

Home
$407,637
- 4 bd
- 3 ba
- 1,927 sqft
126 Twilight Meadow Wy, Richmond, TX 77406
- Home at address 110 Candlelight Ridge Ct, Richmond, TX 77406

Home
$407,840
- 4 bd
- 3 ba
- 1,927 sqft
110 Candlelight Ridge Ct, Richmond, TX 77406
- Home at address 123 Shining Succulent Dr, Richmond, TX 77406

Home
$407,968
- 4 bd
- 3 ba
- 2,160 sqft
123 Shining Succulent Dr, Richmond, TX 77406
- Home at address 307 Shining Succulent Dr, Richmond, TX 77406

Home
$418,658
- 4 bd
- 3 ba
- 2,263 sqft
307 Shining Succulent Dr, Richmond, TX 77406
- Home at address 114 Shining Succulent Dr, Richmond, TX 77406

Elgin (1840-HV-30)
Candela 40'
$420,903
- 4 bd
- 2.5 ba
- 1,927 sqft
114 Shining Succulent Dr, Richmond, TX 77406
More floor plans in Candela

Considering this plan?
Our expert will guide your tour, in-person or virtual
Need more information?
Text or call (888) 488-9243
Financials
Estimated monthly payment
Let us help you find your dream home
How many bedrooms are you looking for?
Similar homes nearby
Recently added communities in this area
Nearby communities in Richmond
New homes in nearby cities
More New Homes in Richmond, TX
- Jome
- New homes search
- Texas
- Greater Houston Area
- Fort Bend County
- Richmond
- Candela
- Candela 60'
- 8619 Gleaming Village Wy, Richmond, TX 77406
































