














Book your tour. Save an average of $18,473. We'll handle the rest.
We collect exclusive builder offers, book your tours, and support you from start to housewarming.
- Confirmed tours
- Get matched & compare top deals
- Expert help, no pressure
- No added fees
Estimated value based on Jome data, T&C apply



















- 3 bd
- 2.5 ba
- 1,630 sqft
Rembrandt plan in Alicante by First America Homes
Visit the community to experience this floor plan
Why tour with Jome?
- No pressure toursTour at your own pace with no sales pressure
- Expert guidanceGet insights from our home buying experts
- Exclusive accessSee homes and deals not available elsewhere
Jome is featured in
Plan description
May also be listed on the First America Homes website
Information last verified by Jome: Today at 4:17 AM (March 4, 2026)
Book your tour. Save an average of $18,473. We'll handle the rest.
We collect exclusive builder offers, book your tours, and support you from start to housewarming.
- Confirmed tours
- Get matched & compare top deals
- Expert help, no pressure
- No added fees
Estimated value based on Jome data, T&C apply
Plan details
- Name:
- Rembrandt
- Property type:
- Floor plan
- Community:
- Alicante
- Builder:
- First America Homes
- Neighborhood:
- Central Southwest
- Size:
- 1,630 sqft
- Stories:
- 2
- Beds:
- 3
- Baths:
- 2.5
- Garage spaces:
- 2
Plan features & finishes
- Garage/Parking:
- GarageAttached Garage
- Interior Features:
- Walk-In ClosetPantry
- Laundry facilities:
- Utility/Laundry Room
- Property amenities:
- PatioPorch
- Rooms:
- KitchenPowder RoomDining RoomFamily RoomOpen Concept Floorplan
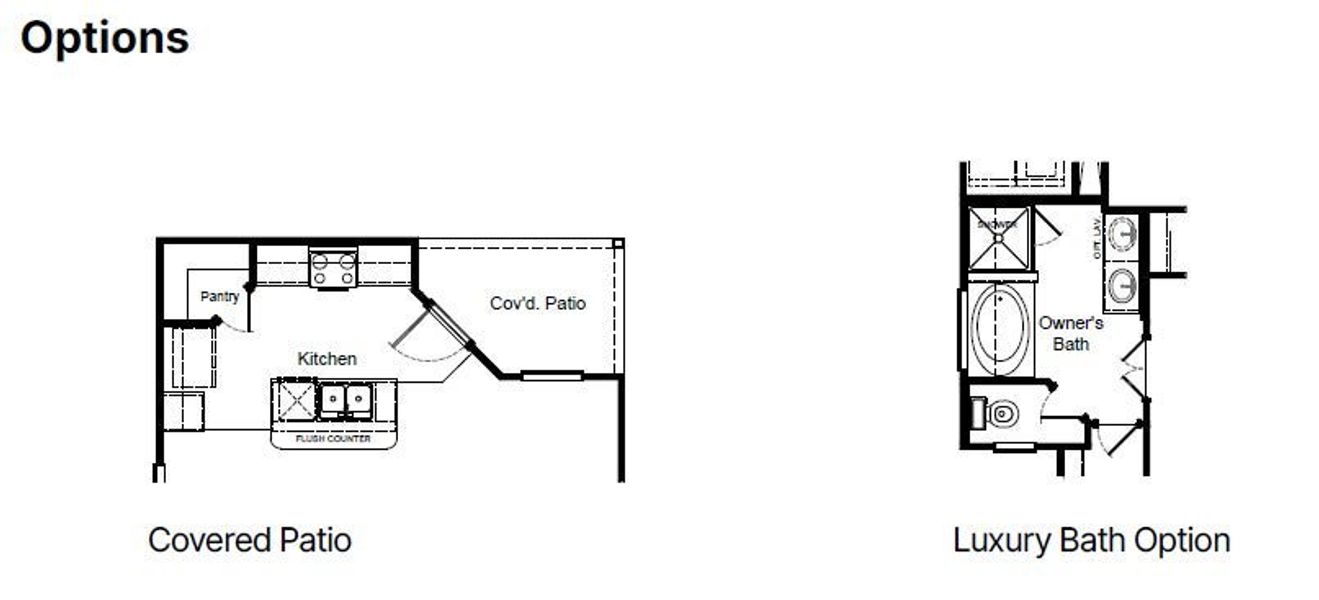
- Upgrade Options:
- Covered Patio

Get a consultation with our New Homes Expert
- See how your home builds wealth
- Plan your home-buying roadmap
- Discover hidden gems

Community details
Alicante
by First America Homes, Houston, TX
- 5 homes
- 4 plans
- 1,630 - 1,802 sqft
View Alicante details
Want to know more about what's around here?
The Rembrandt floor plan is part of Alicante, a new home community by First America Homes, located in Houston, TX. Visit the Alicante community page for full neighborhood insights, including nearby schools, shopping, walk & bike-scores, commuting, air quality & natural hazards.

Available homes in Alicante
- Home at address 3011 La Rambla Dr, Houston, TX 77047

Van Gogh
$343,358
- 3 bd
- 2.5 ba
- 1,724 sqft
3011 La Rambla Dr, Houston, TX 77047
- Home at address 3010 La Rambla Dr, Houston, TX 77047

Van Gogh
$343,358
- 3 bd
- 2.5 ba
- 1,727 sqft
3010 La Rambla Dr, Houston, TX 77047
- Home at address 3008 La Rambla Dr, Houston, TX 77047

DaVinci
$346,322
- 3 bd
- 2.5 ba
- 1,746 sqft
3008 La Rambla Dr, Houston, TX 77047
- Home at address 3014 La Rambla Dr, Houston, TX 77047

DaVinci
$349,838
- 3 bd
- 2.5 ba
- 1,746 sqft
3014 La Rambla Dr, Houston, TX 77047
- Home at address 3009 La Rambla Dr, Houston, TX 77047

Picasso
$355,637
- 4 bd
- 2.5 ba
- 1,802 sqft
3009 La Rambla Dr, Houston, TX 77047
More floor plans in Alicante

Considering this plan?
Our expert will guide your tour, in-person or virtual
Need more information?
Text or call (888) 488-9243
Financials
Estimated monthly payment
Let us help you find your dream home
How many bedrooms are you looking for?
Similar homes nearby
Recently added communities in this area
Nearby communities in Houston
New homes in nearby cities
More New Homes in Houston, TX
- Jome
- New homes search
- Texas
- Greater Houston Area
- Harris County
- Houston
- Alicante
- 3105 La Latina Dr, Houston, TX 77047




























